Außen robust und innen flexibel: Urban Environment House in Helsinki
Foto: Kuvatoimisto Kuvio
Das ehemalige Hafen- und Industrieareal Verkkosaari im Osten von Helsinki hat sich zu einem der wichtigsten Wachstumsareale in der finnischen Hauptstadt entwickelt. Bis 2040 sollen hier rund 25.000 Personen wohnen und 10.000 arbeiten.
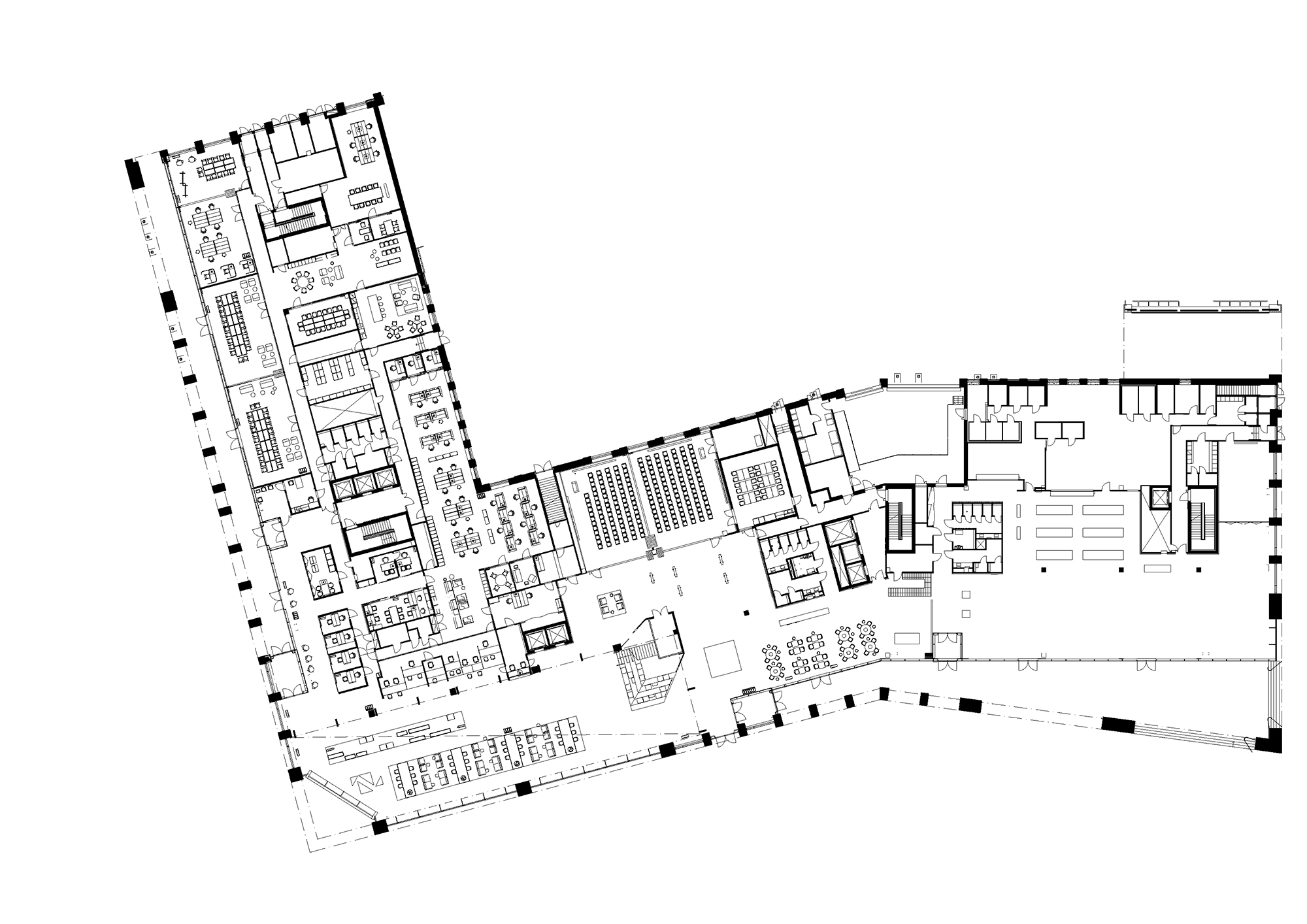
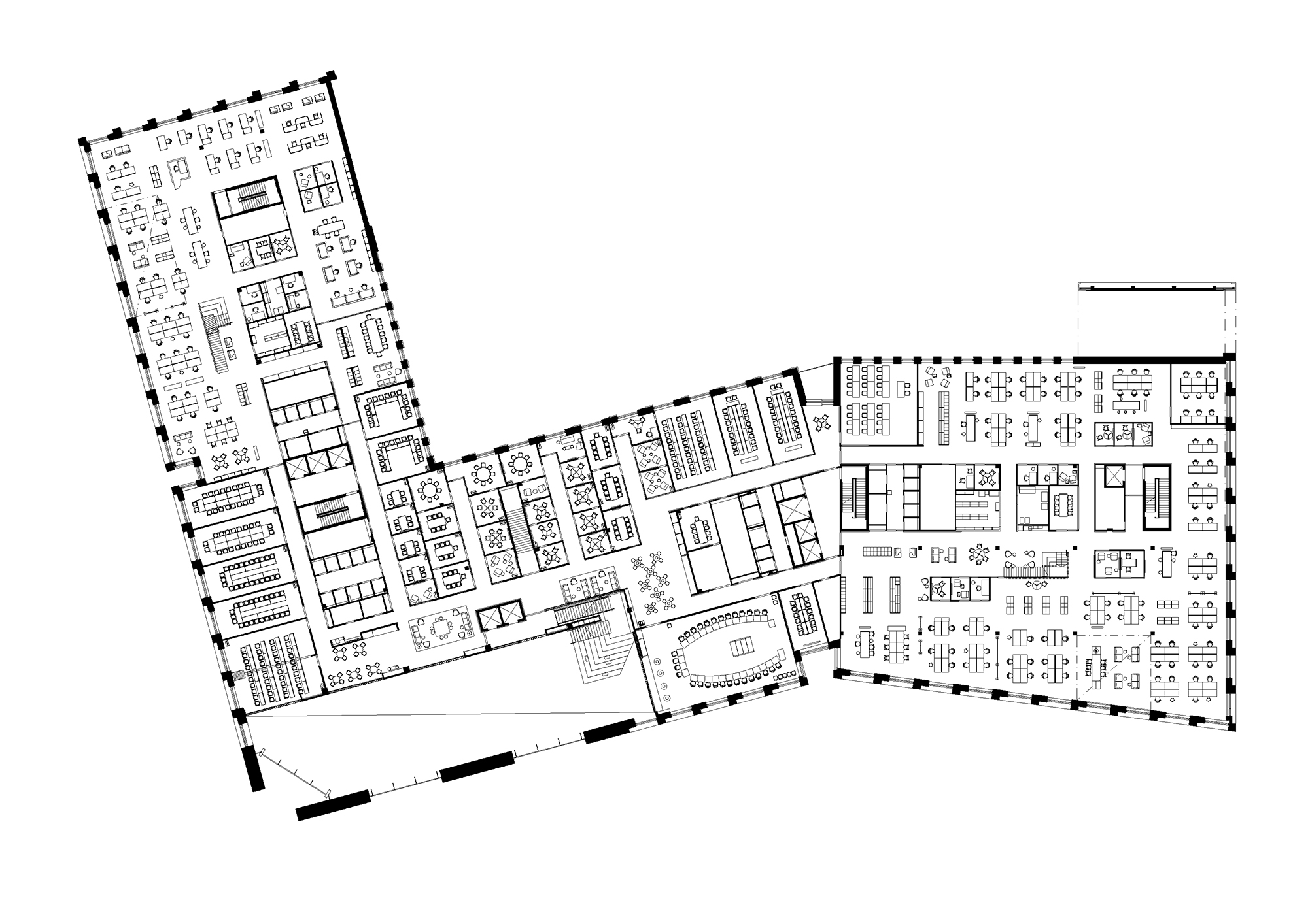
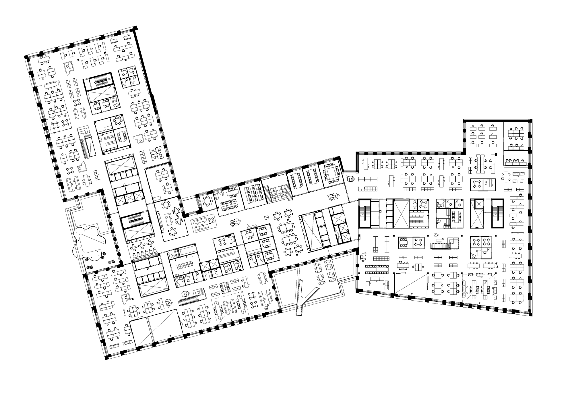
Für die Stadt Helsinki bot sich hier die Gelegenheit, ihre Behörden für Stadtplanung, Wohnungsbau und Umwelt erstmals unter einem Dach zusammenzufassen. Der L-förmige Neubau des Urban Environment House von Lahdelma & Mahlamäki schließt einen Blockrand und bietet auf seinen 41.000 m2 Fläche Platz für rund 1500 Mitarbeiter und Mitarbeiterinnen. Mit seiner Lochfassade aus braunen Ziegeln, Glas und Kupferblech fügt es sich nahtlos in das Quartier ein, das sich seinen etwas rauen Charakter dank einiger erhalten gebliebener Industriebauten nach wie vor bewahrt hat. Die gleiche Materialpalette, ergänzt durch helles Holz und Sichtbeton, prägt auch die Innenräume. Hier liegen die Installationsleitungen, nur gelegentlich verdeckt durch Akustikpaneele und abgehängte Holzlamellen, offen unter der Decke.
Die beiden unteren der acht Geschosse enthalten die öffentlich zugänglichen Bereiche wie Café, Restaurant, eine Ausstellungsfläche, einen Vortragssaal und mehrere Konferenzräume. Äußerlich erkennbar ist ihre Sonderrolle durch große verglaste Arkaden an den Gebäudeecken. Die Büroetagen sind mit fast 30 m außerordentlich tief und mit rund 4,50 m höher als üblich. Um sie adäquat nutzen zu können, sind die Flächen als Dreibund organisiert, wobei die breite Mittelzone neben WCs und Nebenräumen auch kleine, abtrennbare Bereiche für die Einzel- und Gruppenarbeit enthält. Zweigeschossige Lufträume und breite Treppen mit Sitzstufen stellen immer wieder Verbindungen zwischen den Ebenen her.
Zugunsten einer besseren Tageslichtversorgung gliedern ab dem 3. Obergeschoss mehrere Einschnitte den massigen Baukörper. Die so entstehenden Dachterrassen haben jeweils einen eigenen Charakter und sind mit kleinen Pavillons besetzt, die als Pausenbereiche oder für das Arbeiten im Freien genutzt werden können. Passend dazu sind auch die Brandabschnitte und die technische Gebäudeausstattung so ausgelegt, dass sich das Haus im Inneren in drei unabhängige Teile auftrennen lässt.
Über das Projekt berichten wir in Detail 11.2021.
































