Robust on the Outside, Flexible Within: Urban Environment House in Helsinki
Foto: Kuvatoimisto Kuvio
The former harbour and industrial district of Verkkosaari in eastern Helsinki has developed into one of the Finnish capital’s most important areas of growth. By 2040, around 25,000 people will live here; 10,000 will come here to work.
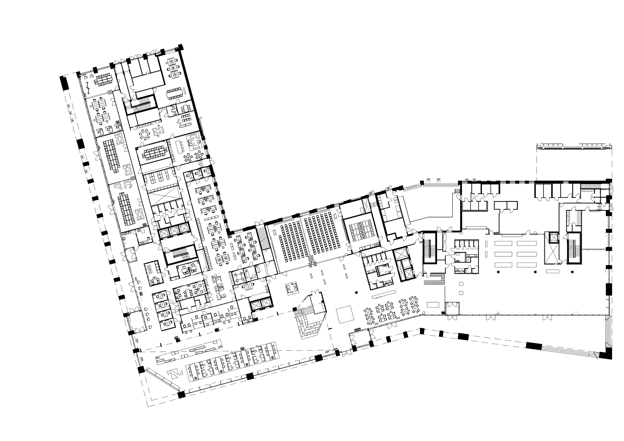
For the City of Helsinki, this was an opportunity to unite the authorities for urban planning, residential construction and the environment under a single roof. The L-shaped new Urban Environment House, designed by Lahdelma & Mahlamäki, occupies the edge of a block, while its 41,000 square metres offer space for around 1,500 employees. With its punctuated façade of brown brick, glass and copper sheeting, it fits seamlessly into a quarter that has kept its somewhat rough disposition thanks to a number of preserved industrial buildings. The same material palette, complemented with light-coloured wood and exposed concrete, also characterizes the interior spaces. For instance, the installation ducts beneath the ceiling are for the most part exposed and covered only here and there by acoustic panels and suspended wooden slats.
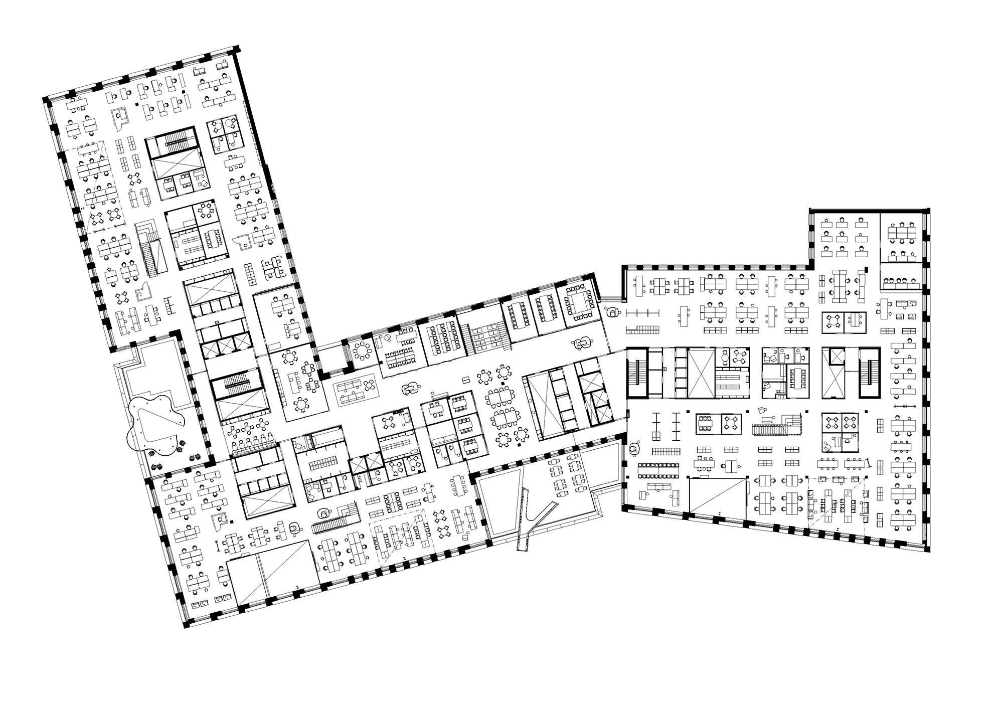
The lowest two of the eight storeys encompass the publicly accessible areas such as a café, restaurant, exhibition space, lecture hall and several conference rooms. The particular role played by this area can be discerned from outside by the large, glazed arcades at the corners of the building. The office levels are unusually deep − nearly 30 m − and unexpectedly high at about 4.50 m. In order to be able to make the most of these areas, the areas have been organized as a triad whose broad central zone features WCs and ancillary spaces as well as small, delimitable zones for individual and group work. Two-storey atria and wide stairways with seating steps constantly form connections between the levels.
In order to let more daylight in, several cut-ins divide the imposing structure from the third upper storey. Each of the resulting rooftop terraces has its own character; all have small pavilions that can be used as break areas or for working outdoors. Fittingly, the fire compartments and technical equipment are also arranged in such a way that the interior of the building can be divided into three autonomous parts as well.
We feature this project in Detail 11.2021.
































