Backstein mit Erlebnisdach: Europäische Schule in Kopenhagen
Foto: Adam Mørk
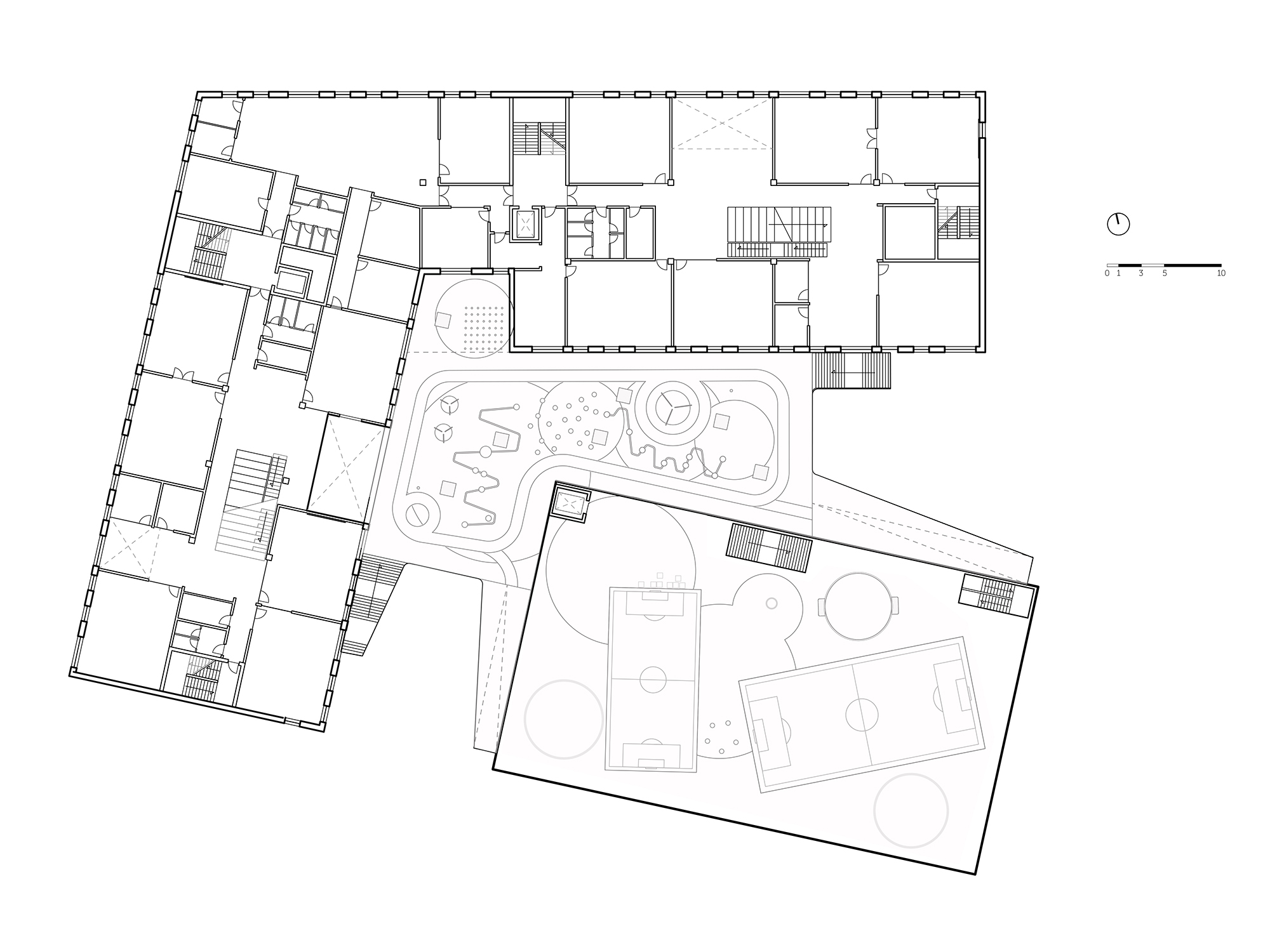
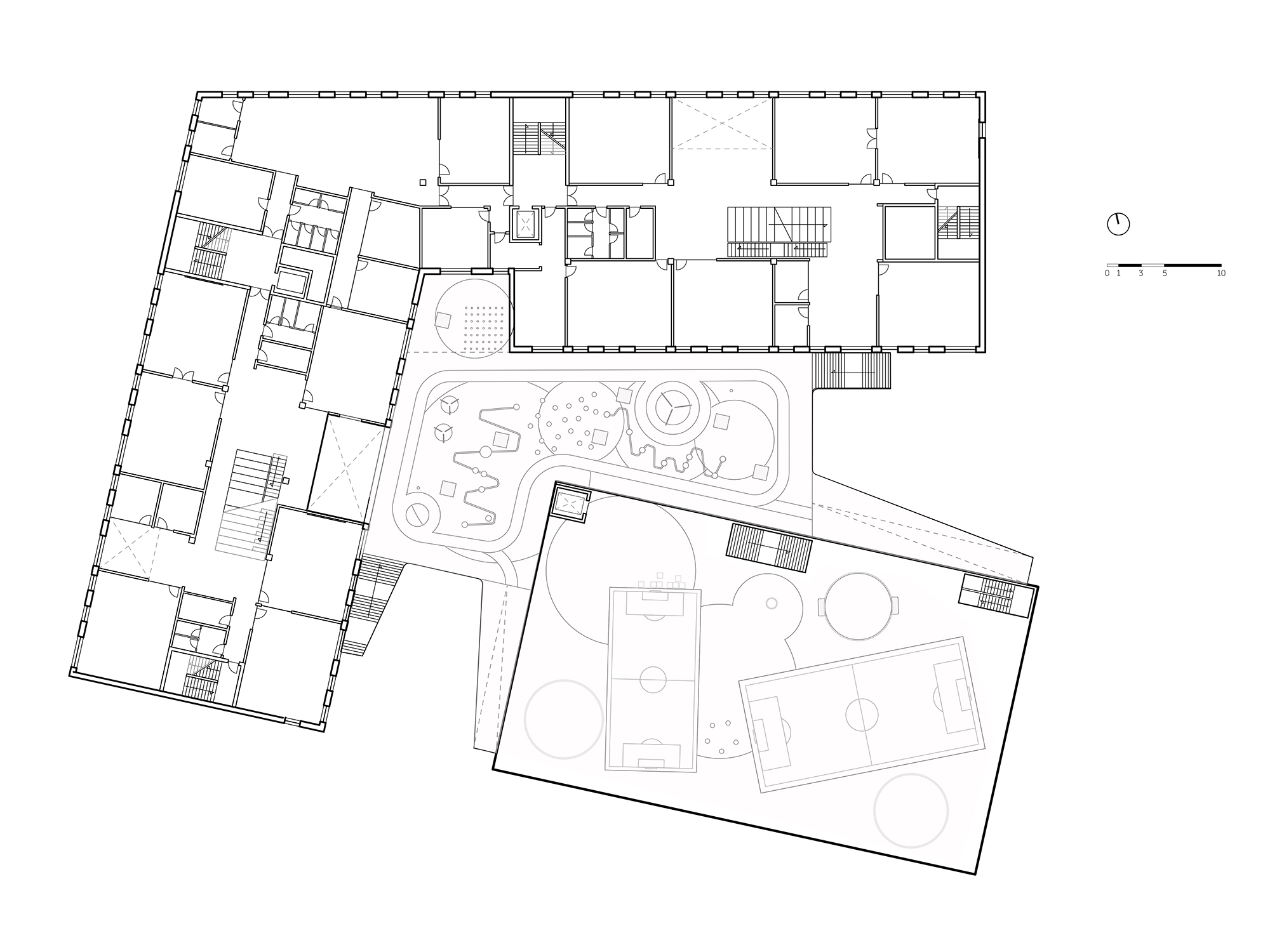
Das Carlsberg-Quartier, mit seinen Bauten aus dem frühen 19. und 20. Jahrhundert, durchzieht ein historisches Flair. In dieses Setting gliedern die beiden dänischen Architekturbüros Nord und Vilhelm Lauritzen die europäische Schule ein und bemühen sich dabei um Durchgängigkeit und größtmögliche Interaktion mit dem urbanen Gefüge. Sie entwerfen einen mehrgeschossigen, L-förmigen Baukörper, dessen Außenseiten zur Straße hin orientiert sind. Nach innen hin spannt das Volumen, gemeinsam mit einer rechteckigen Turnhalle, einen Zwischenbereich auf. Dieser ist als eingeschossiger Sockel ausgeführt, beinhaltet Cafeteria und Auditorium und verbindet die beiden Trakte. Sein Dach wird, gemeinsam mit dem der Sporthalle, als geschützter Freibereich, Pausenhof und Erlebnisspielplatz genutzt.
In seinem Aussehen nimmt der Bildungsbau Bezug auf die direkte Umgebung. Sämtliche Fassaden sind in typisch, rostrotem Backstein gestaltet. Durch abwechslungsreiche Setzmuster der Ziegel verleihen die Architekten den Ansichten Textur und einen fast verspielten Touch. Große Fenster mit schmalen Rahmen komplettieren die schlichte Hülle der europäischen Schule.
Die Innenräume organisieren sich im Haupttrakt rund um zwei Lerntreppen. Diese eint nicht nur die unterschiedlichen Niveaus, sondern mit ihnen auch die einzelnen Schulstufen. Nord Architekts und Vilhelm Lauritzen Arkitekter konzipieren die Erschließungsbereiche als vielfältige Lern- und Entspannungsorte, an denen Unterricht und Erholung nebeneinander stattfinden können. Das Design folgt einer hellen Linie und sorgt für eine angenehme Atmosphäre, in der entspannt gelernt und gelehrt werden kann.
Im Gegensatz zu bestehenden internationalen Bildungsstätten in Kopenhagen ist die europäische Schule öffentlich und gratis. Mit Kindergarten, Primar- und Sekundarstufe bietet sie Platz für rund 900 Kinder. Der 14.000 m2 Neubau wird mit der multifunktionalen Sporthalle außerdem zum gemeinschaftlichen Treffpunkt und Veranstaltungsort für das gesamte Viertel.























