Bricks with an Adventure Roof: European School in Copenhagen
Foto: Adam Mørk
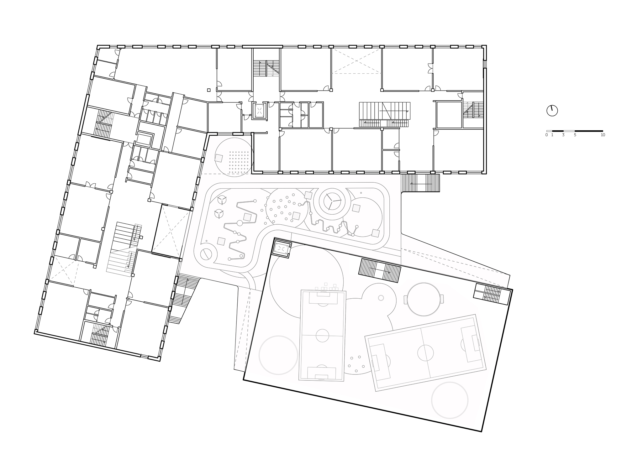
The Carlsberg district, with its buildings from the late 19th and early 20th centuries, has a certain historical flair. The two Danish architecture studios Nord and Vilhelm Lauritzen have added the European School to this setting. In doing so, they have laid great value on consistency and the greatest possible interaction with the urban surroundings. They have designed a multi-storey, L-shaped edifice whose exterior sides face the street. On the other side, the volume and a rectangular gymnasium work together to frame an intermediate area. This area is a single-storey base that connects the two tracts and is home to the cafeteria and an auditorium. The roof, along with that of the gym, is used as a sheltered outdoor area, recess yard and adventure playground.
The appearance of the educational building gives a nod to its immediate surroundings. All the façades are in the typical rust-red brick. With diverse patterns in the bricks, the architects have given the views of the school texture and a rather playful touch. Large windows with narrow frames complete the simple shell of the European School.
In the main wing, the interior spaces are organized around two learning stairways. These unite not only the various levels of the building, but the individual school levels as well. Nord Architects and Vilhelm Lauritzen Arkitekter conceived the access areas as multifaceted places of learning and relaxation where lessons and recreation can take place side by side. The design follows a bright line and creates a pleasant ambience where people can learn and teach in a laid-back atmosphere.
Unlike other international educational institutions in Copenhagen, the European School is public and free of charge. With a kindergarten, primary and secondary levels, it offers place for around 900 children. In conjunction with the multifunctional gymnasium the new building, which measures 14,000 m², is slated to become a community meeting point and venue for the entire neighbourhood.























