// Check if the article Layout ?>
Balance der Bücher: Community Library in La Molina von Gonzalez Moix Arquitectura
Foto: Ramiro Del Carpio Fotografía
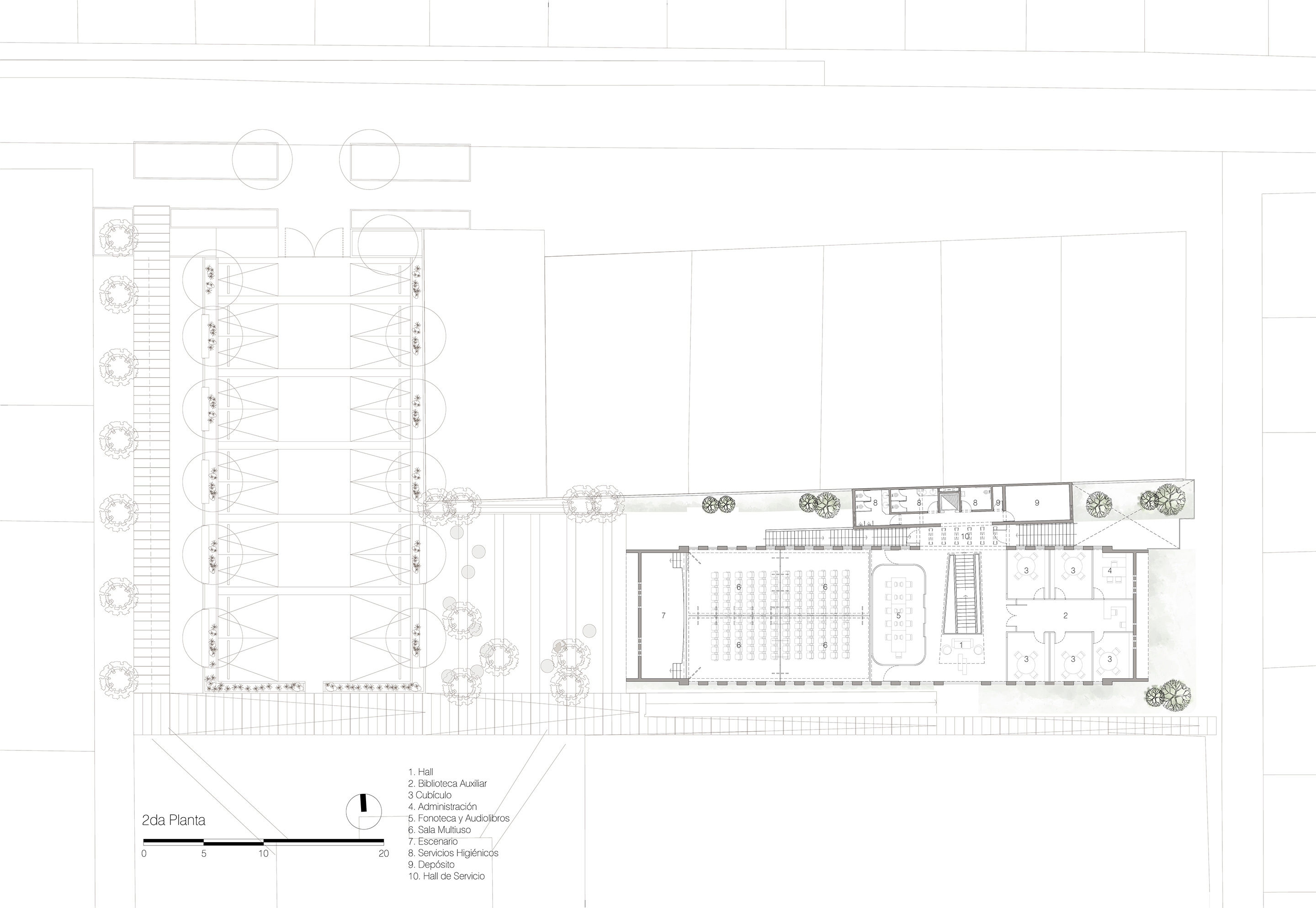
Gonzalez Moix Arquitectura konzipierten die »Community Library in La Molina«, die sich in ein Wohngebiet in Lima, Peru, einfügt, mit dem sitzenden, lesenden Besucher als Ausgangspunkt. Direkt an einem Park gelegen, versuchten die Architekten das Licht optimal einzufangen, um die bestmöglichste Aussicht auf die Umgebung zu ermöglichen.
Der längst gestreckte Bau ist durch exponierte Betonpfeiler unterteilt. Die Abstände zwischen den Pfeilern entsprechen der Breite der Tische im Inneren und tragen damit nicht nur das Äußere ins Innere, sondern auch das Innere nach außen. In ihrer Regelmäßigkeit erinnern die Pfeiler dezent an die Rücken aufgereihter Bücher. Wenn zwei von ihnen kippen, so die Architekten, bricht die Ordnung und signalisiert damit den Eingang zur Bibliothek. Zwei Boxen aus furniertem heimischem Holz umschließen die jeweiligen Enden des Baus, die dem Gebäude einen warmen Charakter verleihen.
Die »Community Library in La Molina« wurde nach einer achtjährigen Design- und Bauphase fertiggestellt und entstand in kontinuierlicher Zusammenarbeit mit der Kommune und den Einwohnern. Dieser kommunale Austausch soll auch nach der Eröffnung der Bibliothek bestehen bleiben.
Weitere Informationen:
Lead Architect: Oscar Gonzalez Moix
Collaborators Gonzalez Moix Arquitectura - Lima: Ernesto Bartra, Dieter Brunner, Beatriz Rodriguez, Daniela Chang, Jorge Sandoval, Betzabé Gutiérrez, Rodolfo Re, Gonzalez Moix Arquitectura - Spain: Alejandro Esposito
Consultant: Eliana Maldonado


























