Lesen und Lernen fördern
Bibliothek für Kinder von Yukawa Design Lab
Große Holzstufen mit angrenzenden Bücherregalen laden die Kinder zum Lesen ein. © Tanaka Katsu
In einem Wohngebiet der japanischen Stadt Sakai realisierte das Architekturbüro Yukawa Design Lab eine Kinderbibliothek mit integrierter Cafeteria für die Gemeinschaft. Der aus privaten Mitteln finanzierte Neubau wird mit Hilfe von Spenden betrieben und zielt darauf ab, die Lese- und Lernaktivitäten der Kinder zu fördern.


Insgesamt bietet die Bibliothek Platz für 3000 Bücher. © Tanaka Katsu
Offene Innenraumgestaltung
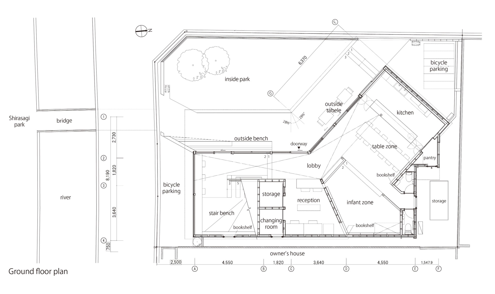
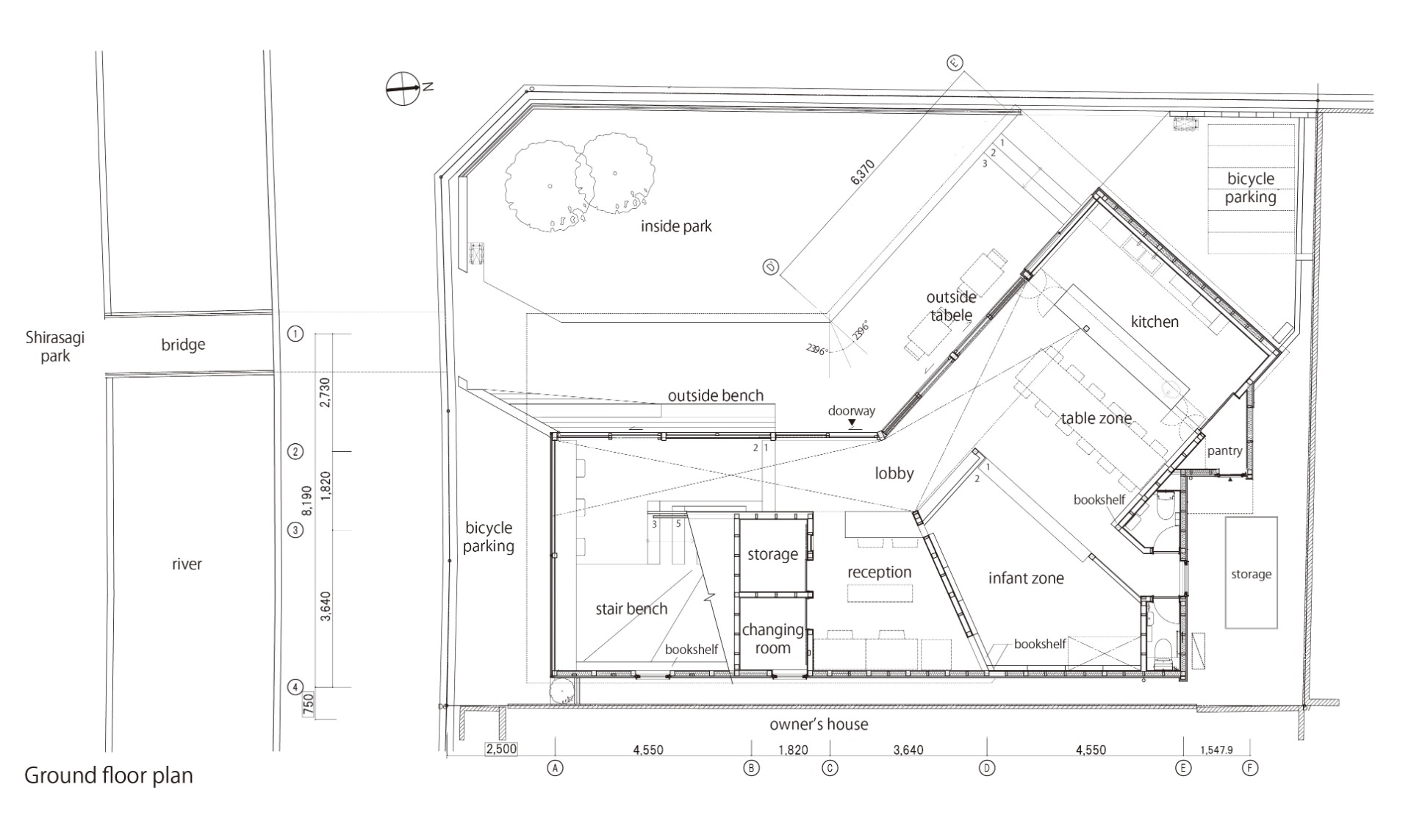
Der L-förmige Holzbau liegt direkt gegenüber des Shirasagi-Parks. Große Glasfenster in der Fassade öffnen den Blick gen Grün und sorgen gleichzeitig für ausreichend Tageslicht im Inneren der Bibliothek. Ein mit Schindeln bedecktes Holzdach vereint die offen gestalteten Zonen unter einer großen Fläche. Laut den Architekten wurde das Dach so konzipiert, dass die Kinder als weitere Lernerfahrung die „Kräfte der Natur“ – wechselndes Sonnenlicht, Regen oder Wind – wahrnehmen können.
Im Erdgeschoss verfügt die Bibliothek über einen Kleinkinderbereich, der als Podest angelegt ist und durch einen roten Teppich farblich klar von den anderen Bereichen abgetrennt ist. Angrenzend liegt das Café mit Bistro, das auch Sitzgelegenheiten unter dem auskragenden Dach im Freien anbietet.


Der Kleinkinderbereich ist durch einen roten Teppich farblich gekennzeichnet. © Tanaka Katsu
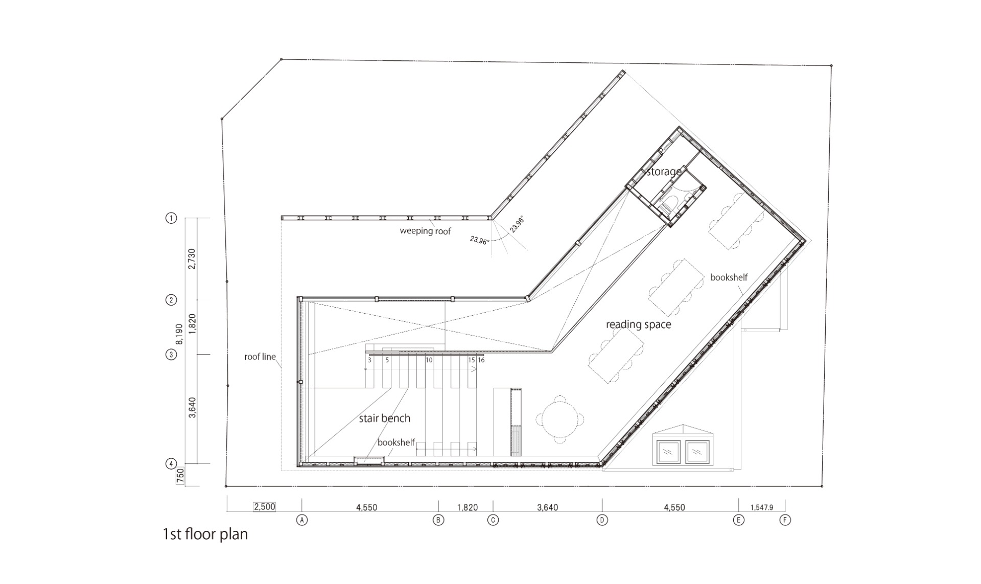
Im vorderen Bereich führt eine breite Treppe in das Obergeschoss. Große Holzstufen sind mit grünem Teppich belegt und dienen für die Kinder als zusätzliche Sitzmöglichkeit zum Lesen. Ein großes Bücherregal erstreckt sich über die angrenzende Wandfläche. In den unteren Bücherregalen ist es den Kindern möglich, selbst auf Entdeckungsreise zu gehen. Die oberen Regale sind nur mit Hilfe von Erwachsenen zu erreichen.


Ein großes Bücherregal erstreckt sich über die angrenzende Wandfläche der breiten Treppe. © Tanaka Katsu


Die großen Holzstufen sind mit grünem Teppich belegt und dienen den Kinder als Sitzmöglichkeit zum Lesen. © Tanaka Katsu


Im Obergeschoss befindet sich ein ruhiger Lese- und Lernraum. © Tanaka Katsu
Das Obergeschoss ist als Galerie angelegt und soll als ruhiger Lese- und Lernraum dienen. Allerdings liegt dieser Rückzugsort direkt über den belebten Gemeinschaftsräumen der Bibliothek – der Cafeteria und dem Kleinkinderbereich. Konzentriertes Lesen und Arbeiten wird von der Lautstärke im Erdgeschoss abhängen.
Architektur: Yukawa design lab
Standort: Sakai city (JP)
Tragwerksplanung: Jun Yanagimuro Structual Design
Baumanagement: Vico Office




























