Putz als Gestaltungsmittel
Branchenzentrum für Ausbau und Fassade
Brigida González
Lorem Ipsum: Zwischenüberschrift
Im baden-württembergischen Rutesheim haben a+r Architekten den Neubau für die zentrale Geschäftsstelle des Stuckateur-Fachverbands und dessen Kompetenzzentrum realisiert, das auch die Ausbau-Akademie beherbergt. Edle Putze können am Gebäude bewundert werden. Wie man sie verarbeitet, wird unter anderem in den neuen Seminarräumen gelehrt.


© Brigida González
Lorem Ipsum: Zwischenüberschrift
„Kompetenz aus einer Hand – hier ist sie zu Hause“ wirbt das Branchenzentrum auf seiner Website. Doch was genau verbirgt sich hinter dem diffusen Begriff?
Lorem Ipsum: Zwischenüberschrift
Beratung, Interessensvertretung, Qualifizierung und Weiterentwicklung im Handwerk für Raum und Fassade. Konkret heißt das, hier ist der Fachverband der Stuckateure zu Hause – und das Kompetenzzentrum für Ausbau und Fassade, das Schulungen, Aus- und Fortbildungen anbietet.


© Brigida González
Lorem Ipsum: Zwischenüberschrift
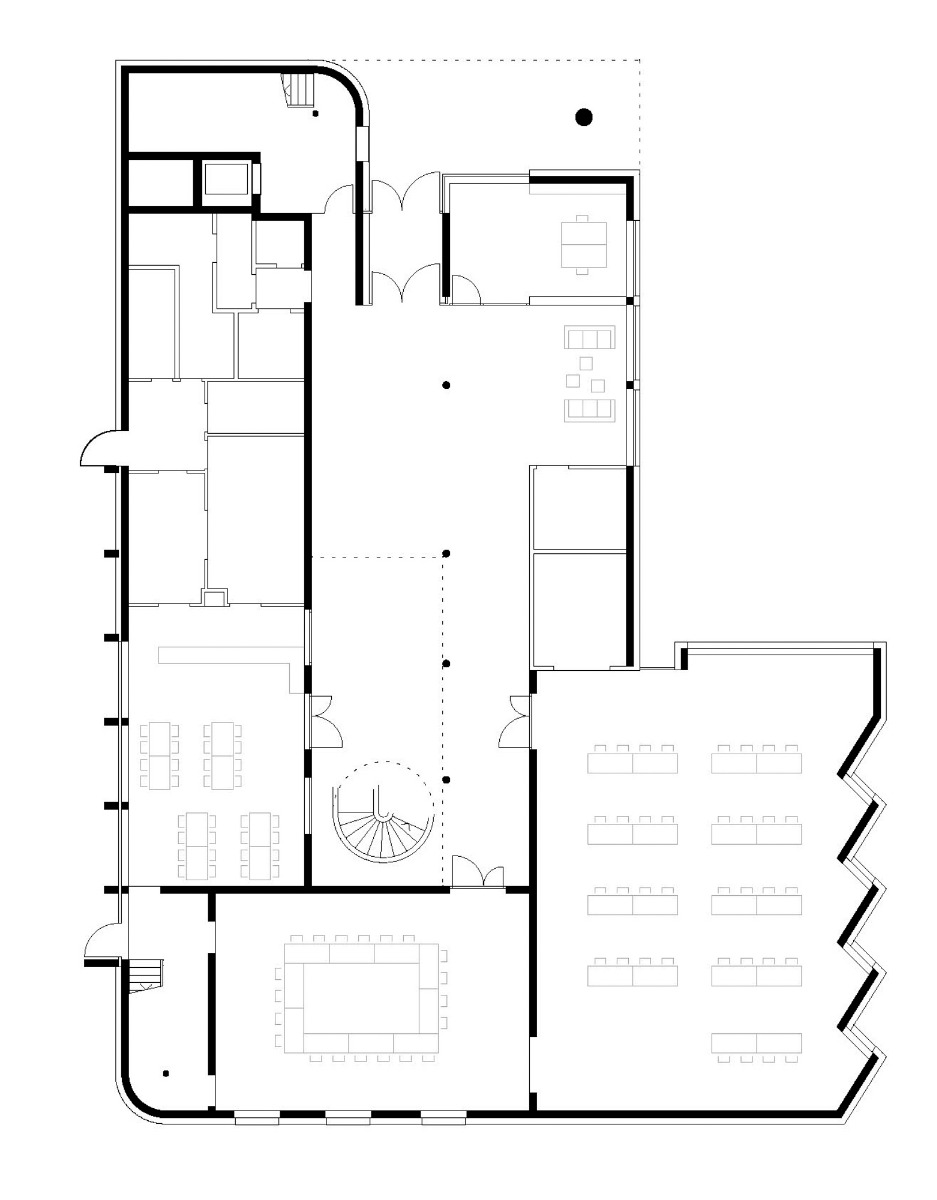
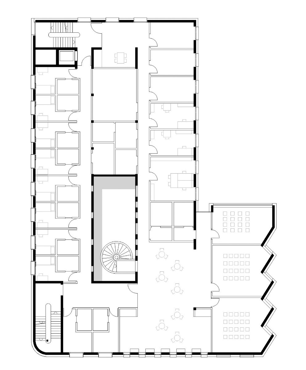
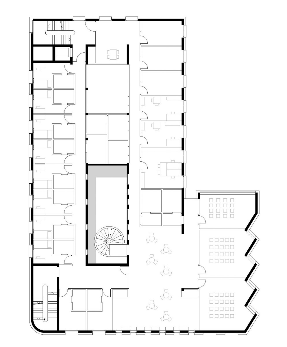
Darum umfasst das Raumprogramm Büro-, Seminar-, und Konferenzräume, eine kleine Bibliothek sowie 20 kleine Hotelzimmer, eine Kantine und eine Hausmeisterwohnung. Alle Einheiten gruppieren sich um das zentrale Atrium mit seiner skulpturalen Wendeltreppe. Ihre Wangen und Treppenläufe sind mit einem Kalkputz versehen. Er wurde zweilagig auf Rabitzdraht aufgezogen, gefilzt, geglättet, mehrfach geschliffen und schließlich wurden die Poren mit Stuckmörtel geschlossen. Nach dem Finalschliff wurde die Oberfläche gewachst und auf Hochglanz poliert.


© Brigida González


© Brigida González
Lorem Ipsum: Zwischenüberschrift
Wahre Handwerkskunst zeigt sich auch an der Fassade: Der komplette Baukörper ist mit einer einheitlichen Kratzputz-Fassade versehen. Dieser etwa 20 mm dicke, einlagige Edelputz wird nur noch selten verwendet, ist aber viel langlebiger und ökologischer als die meisten heute gängigen Putzsorten. Den Sockelbereich betont ein anthrazitfarbener 9 mm starker Kellenwurfputz – bei dessen Verarbeitung mehrere Vorstandsmitglieder des Verbands mit Hand angelegt haben.


© Brigida González
Lorem Ipsum: Zwischenüberschrift
Der kompakte Neubau erinnert an Bauten der Klassischen Moderne – auch damals war Putz ein wichtiges Gestaltungsmittel. Daran knüpfen auch a+r für das Branchenzentrum an und thematisieren so das Leistungsspektrum der Stuckateure.
Architekten: a+r Architekten
Bauherr: Berufförderungsgesellschaft des Stuckateurhandwerks
Standort: Siemensstr. 6-8, 71277 Rutesheim (DE)












