Fünf Geschosse stützenfrei
Bürogebäude aus Holz in Brisbane von Kirk
© Scott Burrows Photography
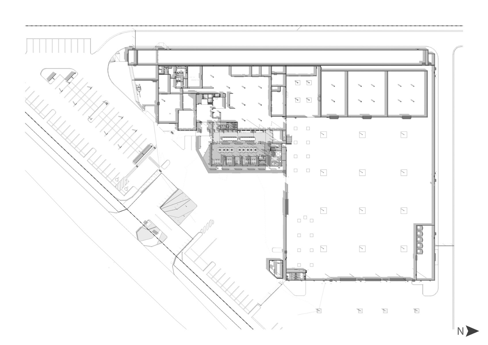
Auf einem schwer zu bebauenden Restgrundstück am Flughafen Brisbane ist eines der ersten Bürogebäude aus Brettsperrholz in Australien entstanden. Genutzt wird es von den 90 Mitarbeitern eines Schusswaffenherstellers.


© Scott Burrows Photography
Nur 26 Tage – sechs weniger als prognostiziert – dauerte das Aufrichten der Holzkonstruktion. Inklusive Innenausbau war das Projekt in nur 7 Monaten fertiggestellt. Wegen der dichten Bebauung auf dem Firmengrundstück mit entsprechend wenig Rangierfläche lag ein vorgefertigter Holzbau nahe.
Das schmale Baugrundstück führte die Architekten schließlich zu einer unkonventionellen Lösung: Beide Längswände bestehen aus tragenden Brettsperrholztafeln. Darauf liegen Unterzüge aus Brettschichtholz und darauf wiederum die Geschossdecken aus Brettsperrholz auf. Markante K-förmige Diagonalstreben hinter der verglasten Stirnseite steifen das Gebäude aus.


© Scott Burrows Photography
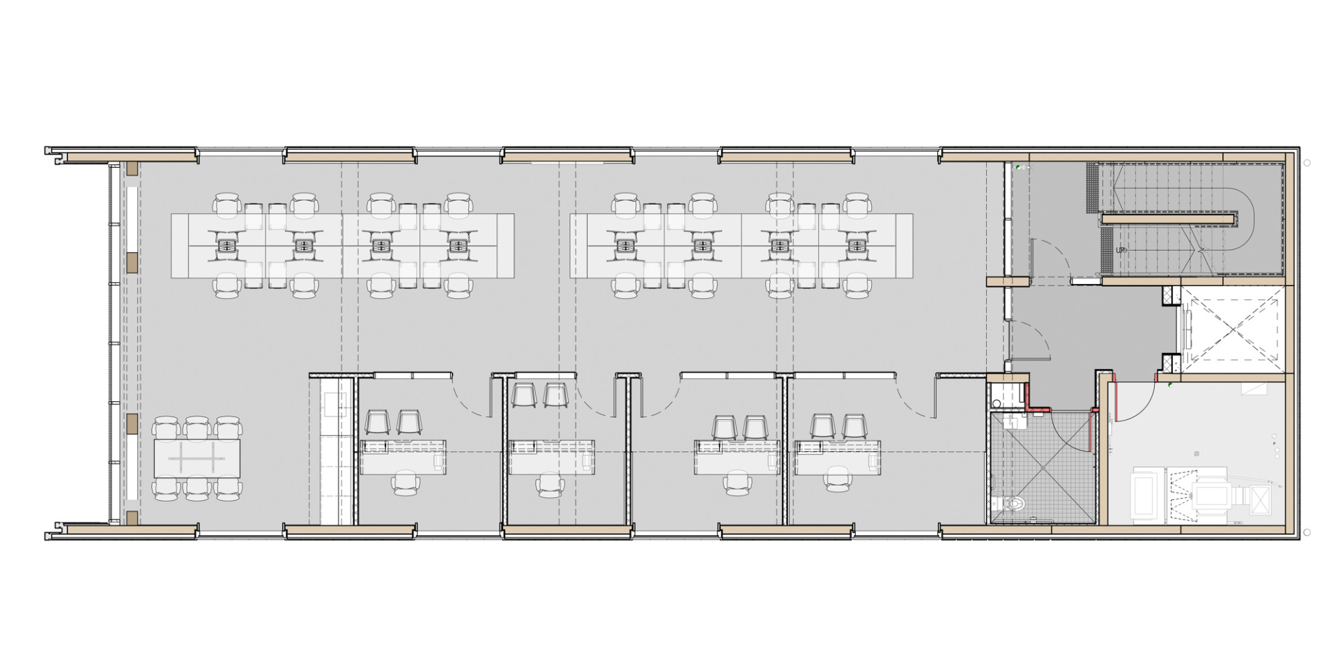
In den Innenräumen blieb das Holztragwerk unverkleidet, was entscheidend zur Büroatmosphäre beiträgt. Dunkel lasierte Sperrholzeinbauten sowie eine dunkle Massivholz-Trennwand im Treppenhaus komplettieren die holzsichtige Materialpalette.


© Scott Burrows Photography


© Scott Burrows Photography
Außen ist das Gebäude – nicht zuletzt aufgrund der Abgase des nahen Flugfelds – mit einer robusten Zinkblechhülle verkleidet. Da die komplette Werkstattplanung der Holzstruktur vor Baubeginn abgeschlossen war, konnten Stillstandzeiten auf der Baustelle weitgehend vermieden werden. Sonst betragen diese nach Schätzung der Architekten bei vergleichbaren Projekten leicht einmal 12 Wochen.
Architektur: KIRK
Bauherr: NIOA
Standort: Flughafen Brisbane (AU)
Tragwerksplanung: Aurecon
Brandschutz: Sotera














