Korallenrote Hülle im 3D-Druck
Bürogebäude in Regensburg von Berschneider + Berschneider
Mit seiner orangeroten „Korallenfassade“ sticht der fünfgeschossige Bürobau unweit des Regensburger Hauptbahnhofs sofort ins Auge. © Erich Spahn
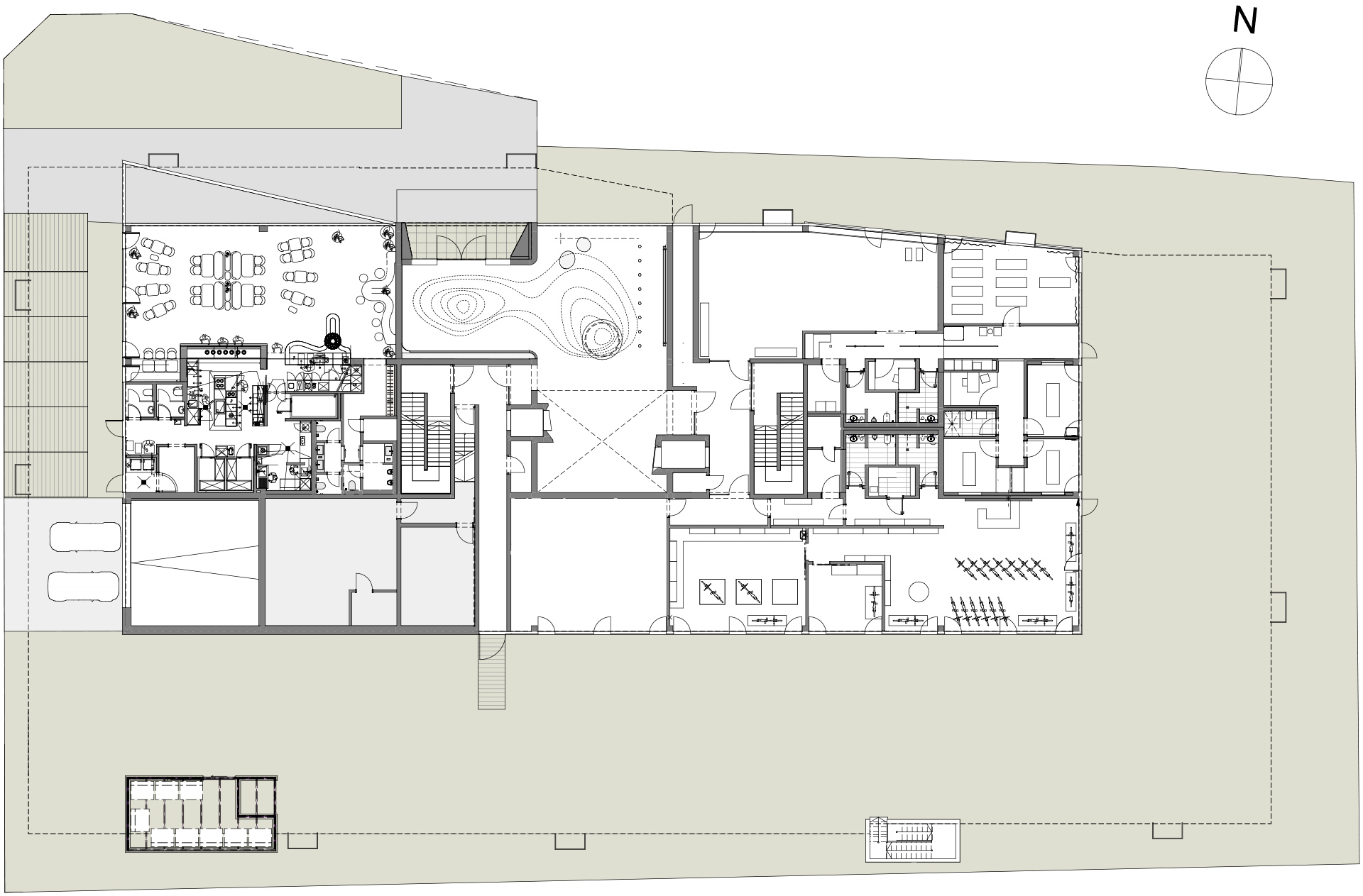
Lange Zeit war das Baugrundstück eines Vermögensverwalters nahe dem Regensburger Hauptbahnhof leer gestanden. Nun haben die Architekten Berschneider + Berschneider darauf ein fünfgeschossiges Bürogebäude errichtet, dessen weitgehend verglaste Hülle sich hinter einer Brise-Soleil-Struktur aus orangeroten Polyester-Verbundelementen verbirgt. Als Reaktion auf den ohnehin heterogenen Gebäudebestand ringsum akzeptierte der örtliche Gestaltungsbeirat den Entwurf nach einigen Diskussionen. Die Grünanlagen rund um die Regensburger Altstadt sind zwar nur einen Steinwurf entfernt. Das unmittelbare Umfeld des Neubaus bestimmen jedoch die Verkehrsstränge der Bahn und einer Haupt-Einfallstraße, die vor und hinter dem Haus vorbeiführen.


Das gebäudehohe Atrium und die Eingangshalle wurden nach den Prinzipien des chinesischen Feng Shui gestaltet. © Erich Spahn


Eingangshalle, © Erich Spahn
Feng-Shui im Atrium
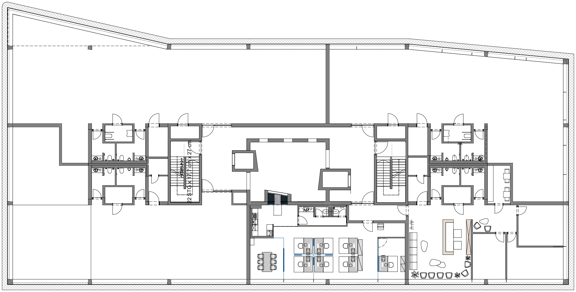
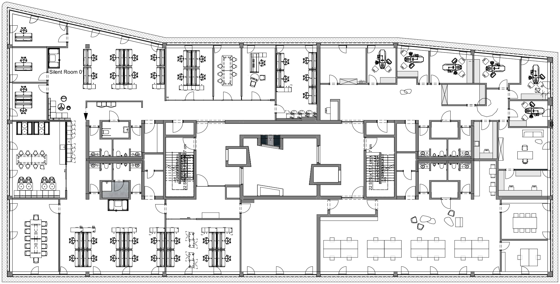
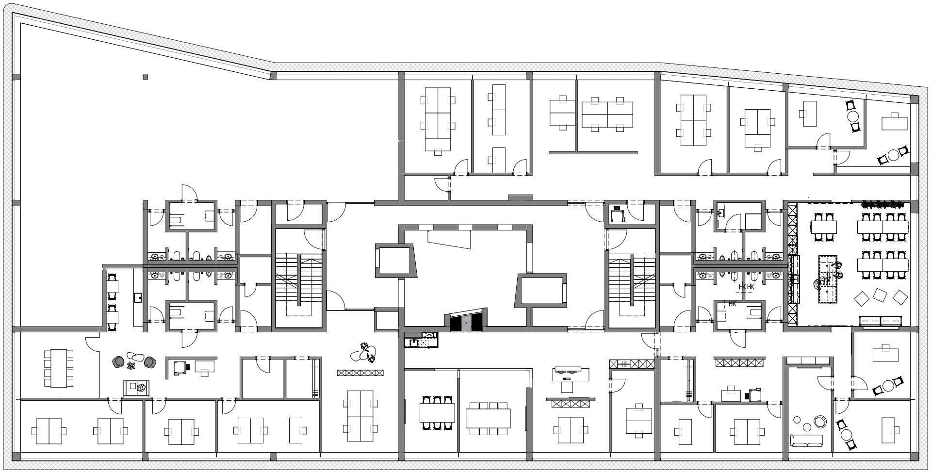
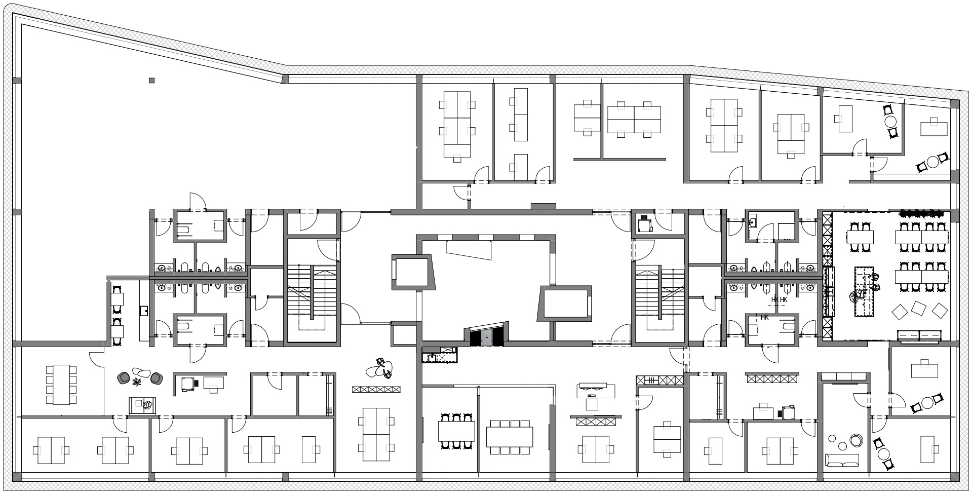
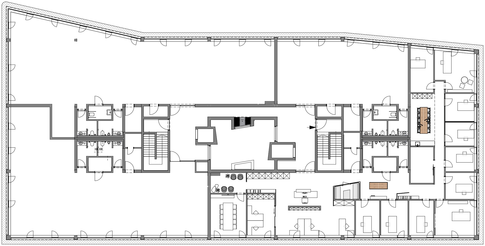
Die Mietflächen im Haus sind so konzipiert, dass sie für Büros, Arztpraxen und Coworking-Anbieter gleichermaßen nutzbar sind. Im Zentrum des Grundrisses liegt ein alle Geschosse übergreifendes Atrium mit Glasdach, das auf expliziten Wunsch der Bauherrin nach Feng-Shui-Prinzipien gestaltet wurde. Der eindeutige Blickfang ist jedoch die Fassadenhülle aus einzelnen, rund 2,30 x 1,50 m großen Modulen. Sie wurden mit einem parametrischen Algorithmus entworfen und mit unterschiedlicher Drehung an den Fassaden angebracht. So mussten insgesamt nur acht unterschiedliche Module hergestellt werden, die an den Übergängen nahtlos ineinander übergehen. Hinzu kamen noch gekrümmte Anschlusselemente für die Gebäudeecken und die Attika.


Fassadendetail, Grafik © Berschneider + Berschneider
Nur 25 Kilo Gewicht
Die Brise-Soleil-Fassade hängt an stählernen Kragbalken über dem vierten Obergeschoss. Umlaufende Wartungsgänge auf jeder Ebene erleichtern das Fensterputzen. Jedes der Fassadenmodule wiegt nur 20 bis 25 kg und kann daher von einer Person getragen werden. Möglich wurde dies durch das Knowhow eines Automobilzulieferers, der sich mit der Fassade neue Geschäftsfelder erschließen will.


Die Verschattungsmodule von innen. © Erich Spahn
Die Module wurden jeweils als Halbschalen aus einem fünflagigen Polyester-Glasfaserverbund hergestellt und anschließend zu Hohlkörpern verklebt. Weil die Konstruktion bisher präzedenzlos ist, war eine Zulassung im Einzelfall erforderlich, für die unter anderem die Einhaltung aller Brandschutzanforderungen nachgewiesen werden musste. Nach Angaben der Architekten mindert die Korallenstruktur die Sonneinstrahlung auf die Fassade um durchschnittlich 40 %, sodass auf einen beweglichen Sonnenschutz verzichtet werden konnte.
Weitere Projekte von Berschneider + Berschneider finden Sie in unserer Datenbank Detail Inspiration.
Architektur: Berschneider + Berschneider Architekten und Innenarchitekten
Bauherr: V.I.S. Vermögensverwaltung
Standort: Fritz-Fend-Straße 4, 93047 Regensburg (DE)
Tragwerksplanung: IB Steinhofer
Herstellung der Verschattungselemente: Christian Karl Siebenwurst
Fassadenstatik: Ingenieurbüro Dr. Siebert
HLS-Planung: Planungsbüro Schießl
Elektroplanung: IB Schrödl
Landschaftsarchitektur: G+2S I Garnhartner + Schober + Spörl Landschaftsarchitekten
Feng Shui: Büro für angewandtes Feng Shui, Elke-Katharina Landerer























