Coral-red shell in 3D printing
Office Building in Regensburg by Berschneider + Berschneider
With its orange-red "coral facade", the five-storey office building near Regensburg's main railway station is an immediate eye-catcher. © Erich Spahn
For a long time, the plot of land owned by an asset manager near Regensburg's main railway station stood empty. Now, architects Berschneider + Berschneider have erected a five-storey office building on the site whose largely glazed shell is concealed behind an orange-red brise soleil structure made of polyester composite elements. In response to the heterogeneous surrounding buildings, the local design advisory board accepted the design after some discussion. The green spaces around the old town of Regensburg are only a stone's throw away. However, the immediate surroundings of the new building are dominated by railway lines and a main access road running in front of and behind it.


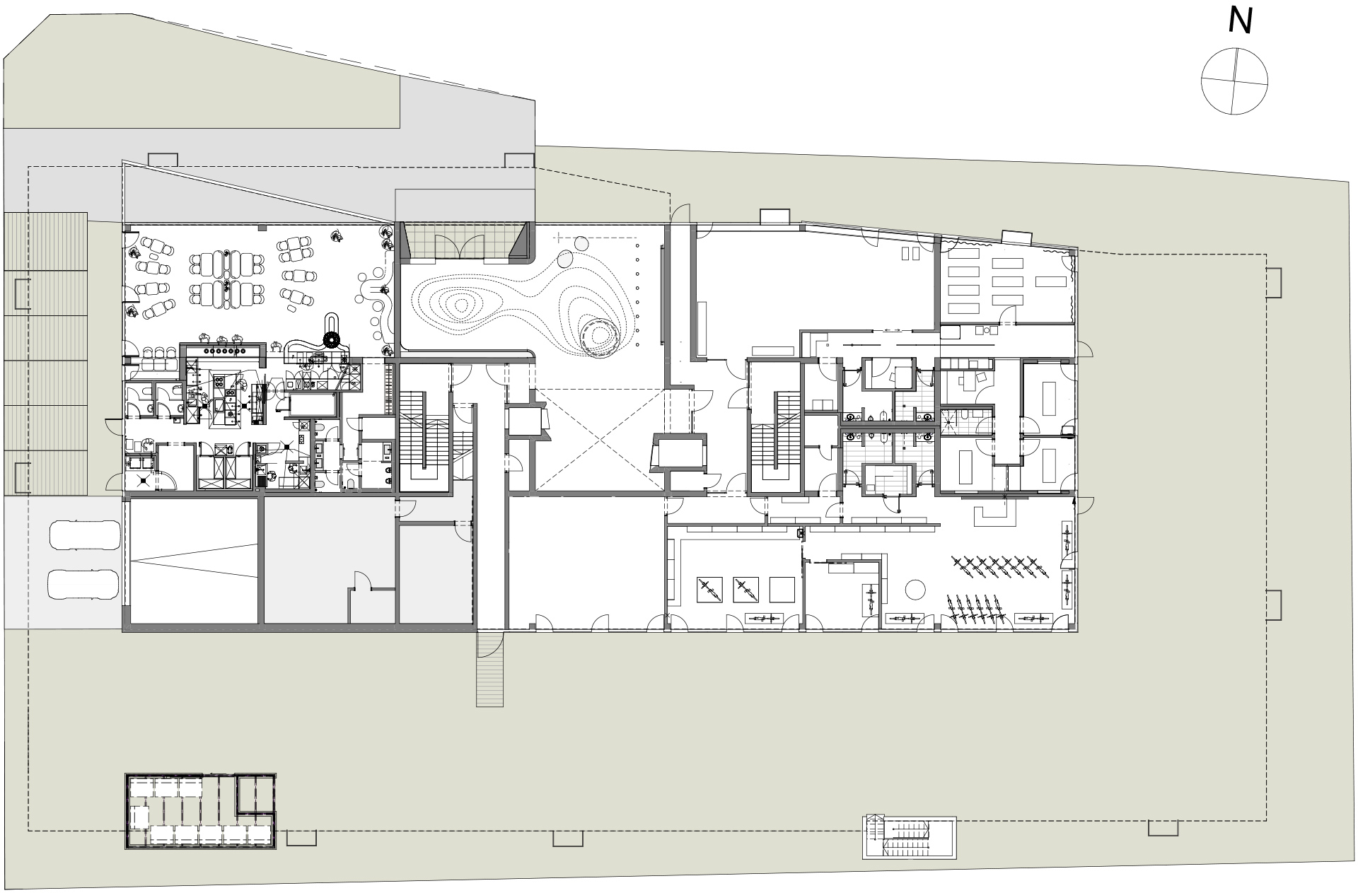
The building-high atrium and entrance hall were designed according to the principles of Chinese feng shui. © Erich Spahn


Entrance hall, © Erich Spahn
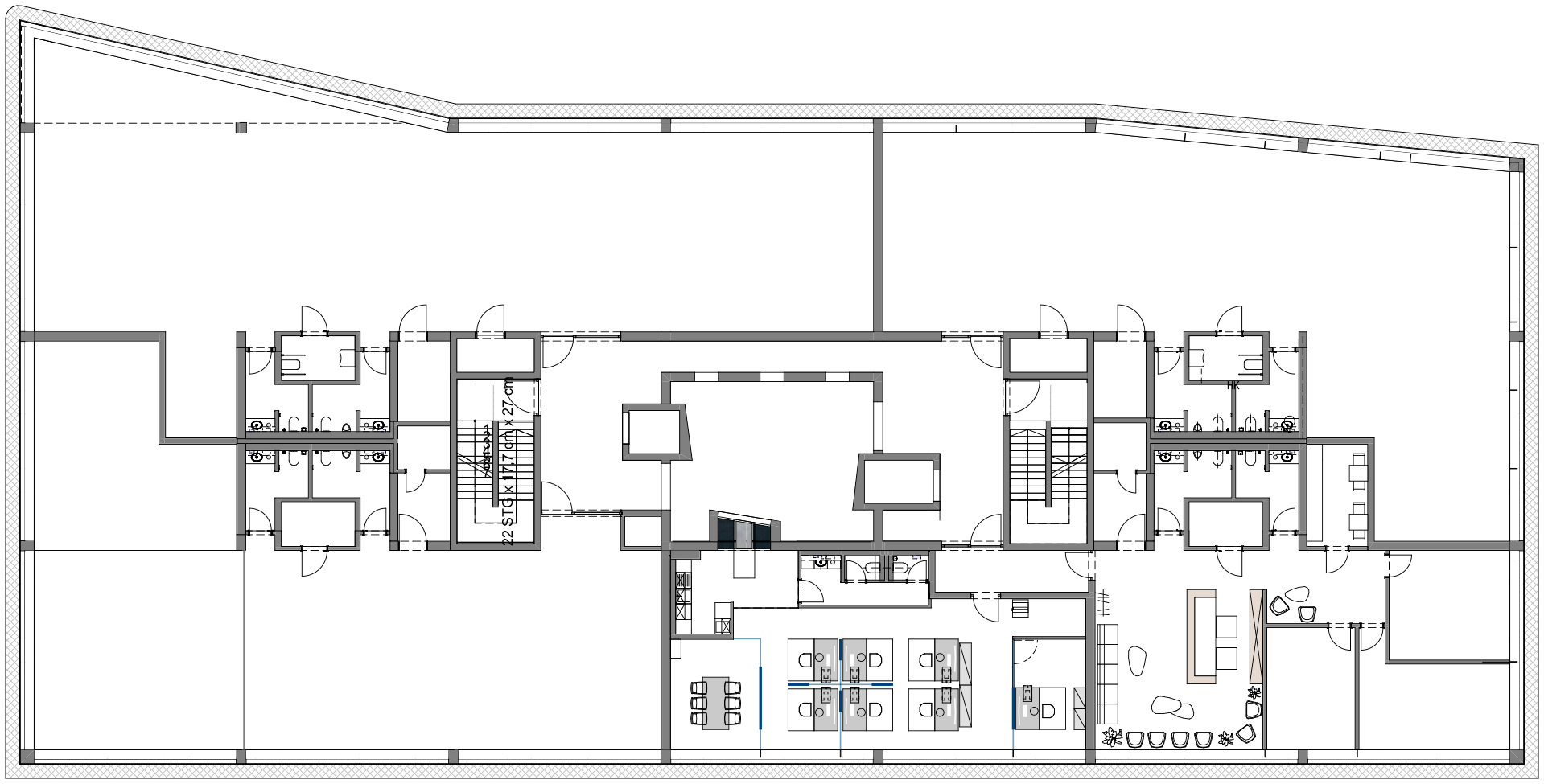
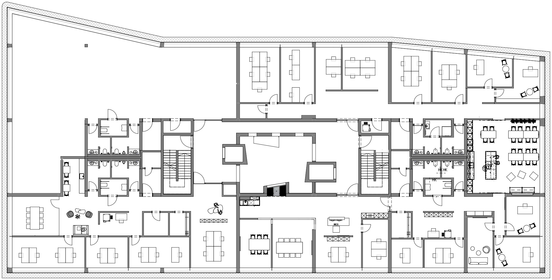
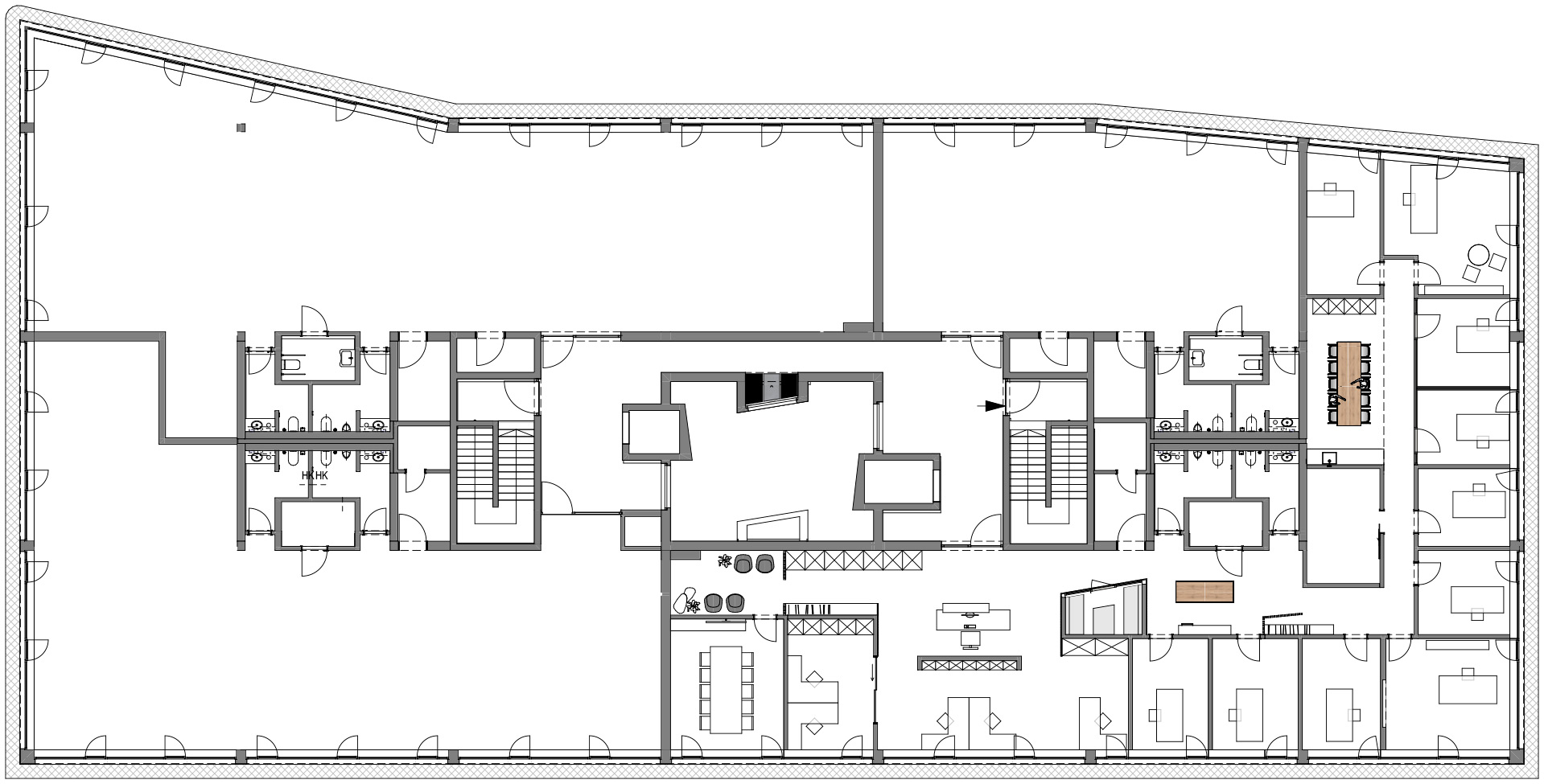
Feng Shui in the Atrium
The building's rental spaces are designed to be equally suitable for offices, medical practices, and co-working providers. At the centre of the floor plan is an atrium with a glass roof spanning all floors. This was designed according to feng shui principles at the client's explicit request. However, the clear eye-catcher is the facade cladding, which consists of individual modules measuring approximately 2.30 x 1.50 m. These were designed using a parametric algorithm and attached to the facade at different angles. This meant that only eight different modules had to be manufactured, which merge seamlessly at the transitions. Curved connecting elements were added for the corners of the building and the parapet.


Facade detail, Graphic © Berschneider + Berschneider
Weighing only 25 kilograms
The brise soleil facade is suspended from steel cantilever beams above the fourth floor. Circumferential maintenance walkways on each level facilitate window cleaning. Each facade module weighs between 20 and 25 kg, meaning it can be carried by one person. This was made possible by the expertise of an automotive supplier looking to expand into new business areas with this facade.


The shading modules from the inside. © Erich Spahn
Each module was manufactured as a half-shell from a five-layer polyester glass fibre composite, which was then bonded to form a hollow body. As this construction was unprecedented, approval had to be obtained on a case-by-case basis, including proof of compliance with all fire safety requirements. According to the architects, the coral structure reduces solar radiation on the facade by an average of 40 %, thus eliminating the need for movable sun protection.
You can find more projects by Berschneider + Berschneider in our Detail Inspiration database.
Architecture: Berschneider + Berschneider Architekten und Innenarchitekten
Client: V.I.S. Vermögensverwaltung
Location: Fritz-Fend-Straße 4, 93047 Regensburg (DE)
Structural engineering: IB Steinhofer
Manufacture of shading elements: Christian Karl Siebenwurst
Facade statics: Ingenieurbüro Dr. Siebert
HVAC planning: Planungsbüro Schießl
Electrical planning: IB Schrödl
Landscape architecture: G+2S I Garnhartner + Schober + Spörl Landschaftsarchitekten
Feng Shui: Büro für angewandtes Feng Shui, Elke-Katharina Landerer























