Flexible Flächen
Bürogebäude Next Delft von Ector Hoogstad Architects
© Marcel van der Burg
Der Neubau mit großem, begrüntem Atrium bietet flexible Flächen vor allem für Spin-offs der Technischen Universität Delft.


© Marcel van der Burg
Perforierte Metallhülle
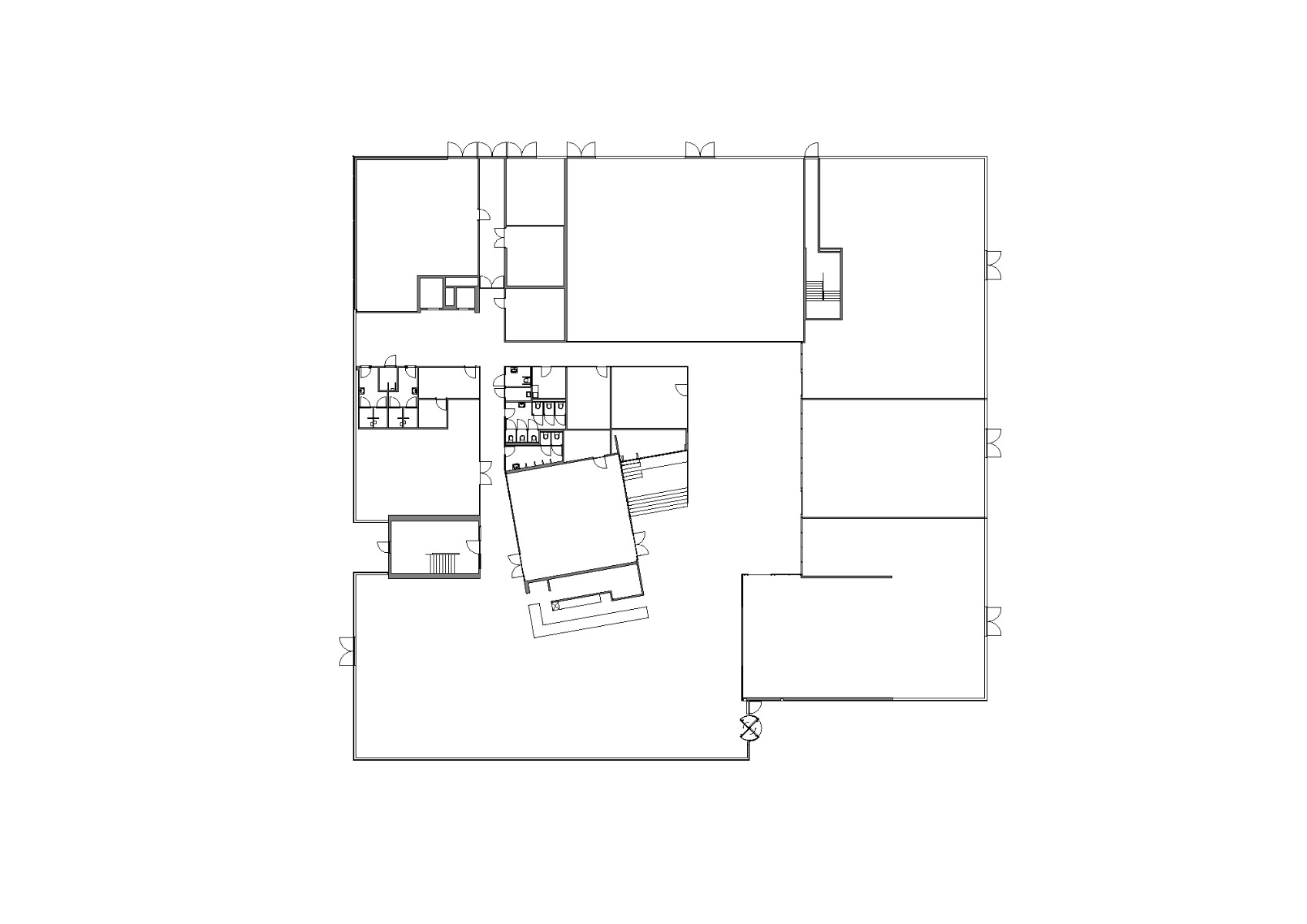
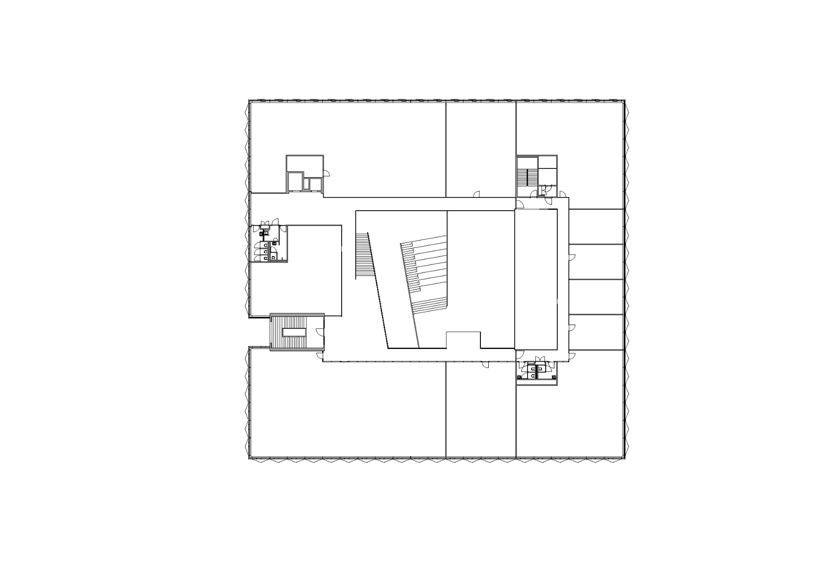
Wie viele Hochschulen in Europa fördert auch die Technische Universität Delft systematisch die Gründung von Start-up-Unternehmen. Next Delft ist nun bereits das dritte Gebäude mit Räumen für diese Firmen. Der Neubau von Ector Hoogstad Architects steht etwas südlich des TU-Campus in einem Gewerbegebiet am Stadtrand: ein viergeschossiger Kubus mit Quadratgrundriss, verglaster Erdgeschosszone und einer perforierten Metallhülle in den oberen Geschossen. Jeweils im oberen Bereich der Fenster faltet sich diese zu markanten, pyramidenförmigen Brise-soleils auf.
Folienkissen überspannen grünes Atrium
Der Wunsch nach Flexibilität stand ganz oben im Pflichtenheft bei der Planung. Während das Erdgeschoss mit seiner größeren Deckenhöhe für Werkstätten und Maker Spaces konzipiert ist, sind die beiden obersten Etagen als Bürogeschosse entworfen.


© Marcel van der Burg
Das erste Obergeschoss ist wahlweise für produzierendes Gewerbe oder Büros nutzbar. Die gemeinsame Mitte aller Bereiche bildet ein großzügiges, grünes Atrium mit Dachtragwerk aus Holz und transparenten Folienkissen. Während dieser Raum mit seinen Balkonen, umlaufenden Galerien, offenen Plattformen und der breiten Sitztreppe ins erste Obergeschoss vor allem den Austausch zwischen den Unternehmen im Haus befördern soll, ist das Erdgeschoss mit seinem öffentlichen Food Court und der Freiterrasse eher nach außen orientiert.


© Marcel van der Burg
Schon im Entwurfskonzept der Architekten war vorgesehen, Next Delft künftig um einen zweiten Bauabschnitt mit ähnlichem Grundrisskonzept und annähernd gleicher Fläche zu erweitern. Aufgrund des hohen Vermietungsstands ist zu hören, dass dieser demnächst in Angriff genommen werden soll. Ebenfalls angestrebt ist eine Breeam Excellent-Zertifizierung, die die Nachhaltigkeit von Next Delft belegt.
Architektur: Ector Hoogstad Architects
Bauherr: Stone22
Standort: Molengraaffsingel 8, 2629 JD Delft (NL)
Tragwerksplanung, TGA-Planung, Brandschutz: Nieman Raadgevende Ingenieurs
Bauingenieure: IMd Consulting Engineers
Innenarchitektur: Ector Hoogstad Architects, Up Architects
Kostenplanung: IGG Building Economics
Eigentümer: ASR Dutch Science Park Fund















