Attraktive Arbeitsumgebung
Büroumbau in Berlin von Ester Bruzkus Architekten
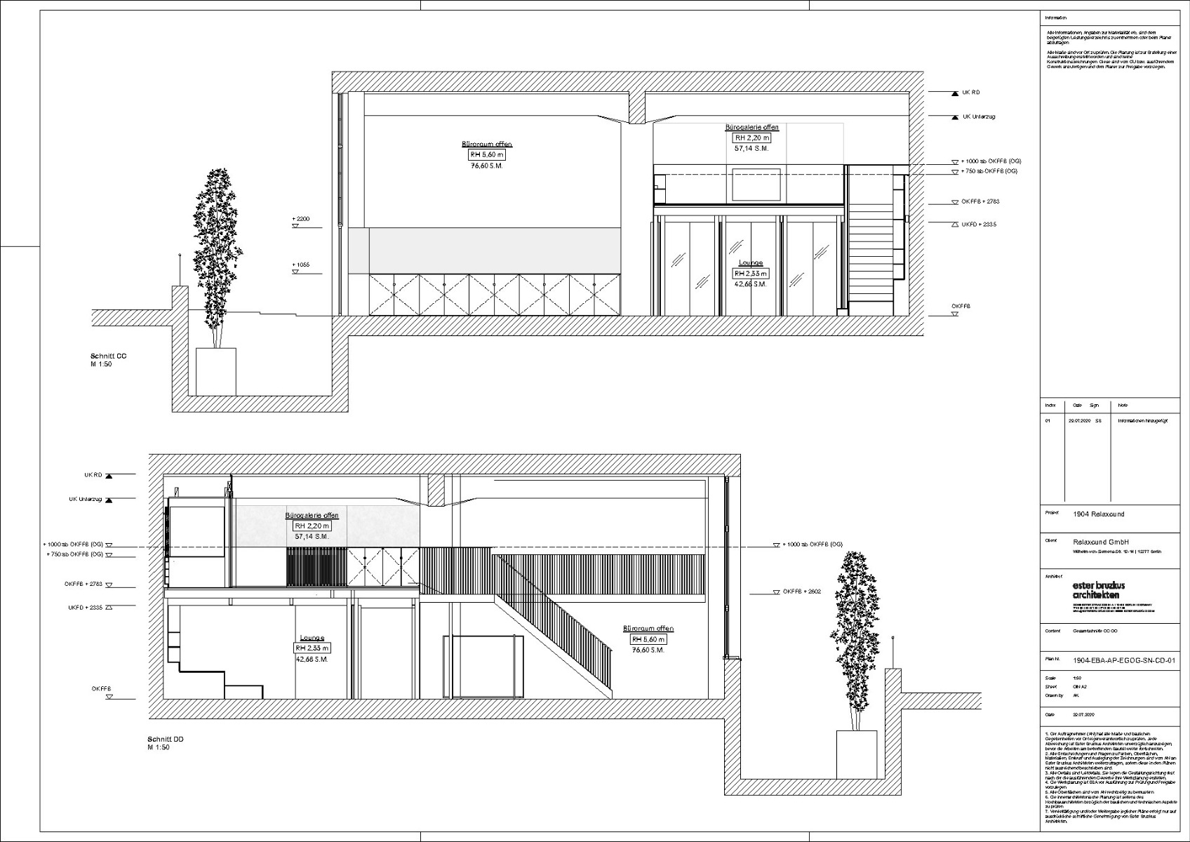
Unter der neu eingezogenen Galerie entstand ein gemütlicher Loungebereich. Hinter den Schiebetüren befinden sich akustisch optimierte Arbeitsplätze. © Noshe
Für das Berliner Unternehmen Relaxound planten Ester Bruzkus Architekten eine Arbeitsumgebung, die unterschiedliche räumliche Szenarien und Atmosphären bietet – alles in einem offenen Raumkontinuum auf rund 500 m² Altbaufläche. Die Gestaltung der Innenräume vereint gegensätzliche Anforderungen moderner Büroarbeit: Austausch und Konzentration, Gemeinschaft und Privatsphäre.
Angenehme Akustik
Der Standort von Relaxound befindet sich im Gewerbegebiet von Mariendorf, am südlichen Rand Berlins – weit entfernt von den Wohnorten der meisten Angestellten. Umso wichtiger war es, die Büros attraktiv zu gestalten, um den Mitarbeitenden einen Mehrwert zu bieten. Gearbeitet wird auf zwei Ebenen in einem etwa 5,60 m hohen Raum. Trotz des Potenzials für Lärm herrscht hier eine angenehme Akustik. Für Besprechungen und Fokusarbeit gibt es kleine, akustisch entkoppelte Räume aus schalldämpfenden Materialien: Die Trennwände sind zwar dünn, um Platz zu sparen, bestehen aber aus massiven MDF-Platten, die dank ihrer Dichte Geräusche gut absorbieren. Akustik war für das Projekt entscheidend, denn Relaxound produziert kleine Lautsprecher, die entspannende Geräusche wie Vogelgezwitscher oder Meeresrauschen abspielen.


Der zweigeschossige Hauptraum wird von einer L-förmigen Galerie flankiert. © Noshe
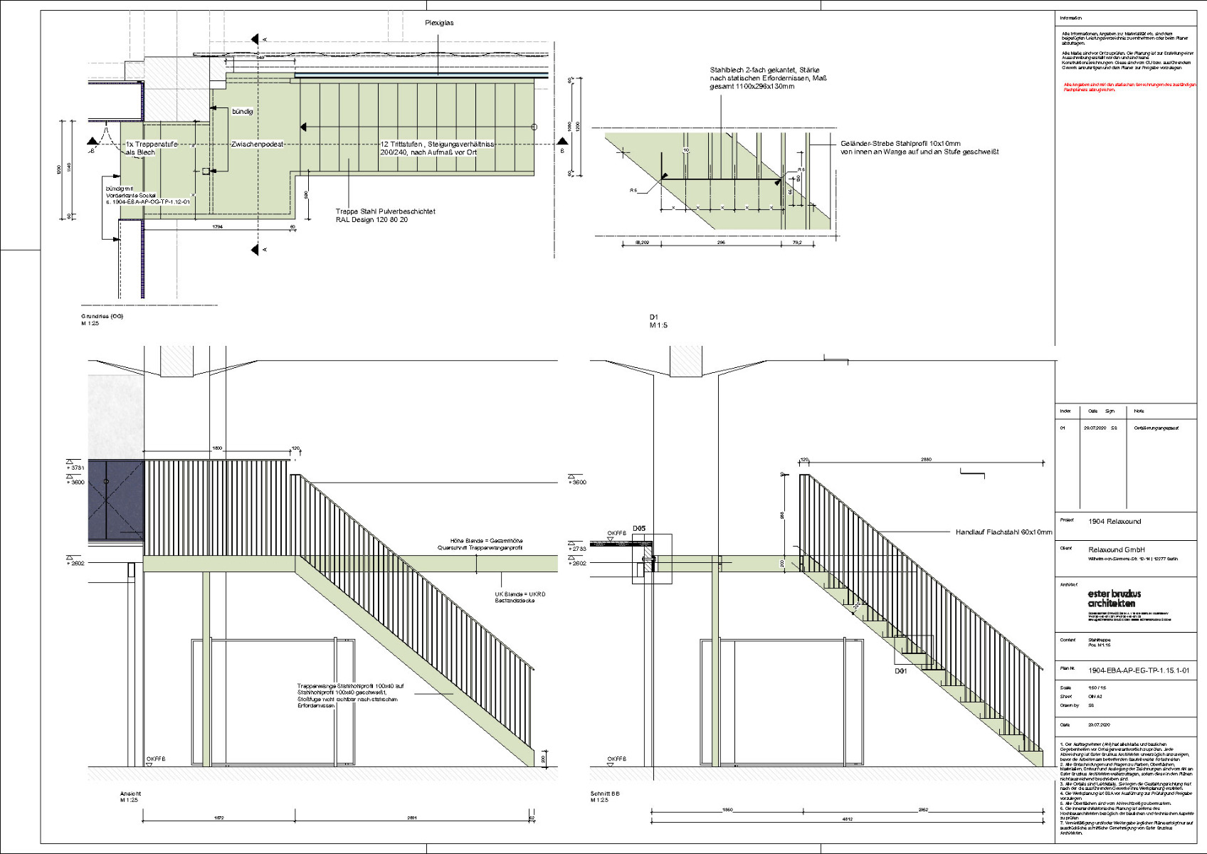
Reversible Einbauten
Die vorhandene Galerieebene wurde erweitert, auf Stahl- und Holzträgern ruht nun eine zweite Ebene mit zusätzlichen Arbeitsplätzen. Wichtig war, dass alle Einbauten reversibel sind und sich leicht wieder abbauen lassen. Die Architekten vermieden beschichtete Materialien und setzten stattdessen auf unbehandeltes Holz, durchgefärbtes MDF und Akustikpaneele aus Aluminiumschaum.


Nach dem Umbau bietet das Relaxound-Büro vielfältige Raumqualitäten. © Noshe


Spielerische Wandgestaltung mit hauseigenen Zwitscherboxen im Sanitärbereich, © Noshe
Durchdachte Farbgebung
Neben der Akustik stand auch die visuelle Gestaltung im Fokus. Um den Raum zu beruhigen und den Mitarbeitern Orientierung zu bieten, wählten die Architekten eine durchdachte Farbgebung. Bereiche mit niedriger Raumhöhe sind in einem dunklen Blauton gehalten und bieten Platz für Konzentration und Entspannung. Die Arbeitsplätze sind hell und zurückhaltend gestaltet, während soziale Bereiche durch kräftige Farbakzente belebt werden. Ein gelber Teppich trifft auf rote Sessel, ein blaues Sofa auf einen gelben Stuhl. So entsteht eine angenehme Balance zwischen Ruhe und Lebendigkeit.
Mehr dazu in Detail 10.2024 und in unserer Datenbank Detail Inspiration.
Innenarchitektur, Akustik: Ester Bruzkus Architekten
Bauherr: Relaxound
Standort: Wilhelm-von-Siemens-Straße 12, 12277 Berlin (DE)
Projektleitung: Ester Bruzkus, Peter Greenberg
Mitarbeitende: Arianna Petrulli, Svenja Bechtel, Giulia Di Marco
Brandschutzplanung: Tim Janowitz Brandschutzplanung
Lichtplanung: Dinnebier Licht, XAL
Beleuchtung: XAL
Beschläge: FSB, Hewi
Mobiliar: Studio Coucou, llot llov – Artwork Shop, Blå Station, Sofacompany, Relaxound, HAY
Sanitärobjekte: Duravit, Grohe
Teppiche: Nomad

































