Mehr Licht, besser isoliert
Camberwell Cork House in London von Delve Architects
Eine Fassade aus Kork ziert das viktorianische Reihenhaus in Camberwell. © Fred Howarth


Grün gestrichene Fensterrahmen kontrastieren mit der Fassade aus Kork auf der Rückseite des Hauses. © Fred Howarth
Fassade und Isolierung aus Kork
Die neuen Elemente des Hauses bestehen aus nachhaltigen, langlebigen und biologisch abbaubaren Materialien. Sowohl bei der Fassade als auch bei der Isolierung kommt Kork zum Einsatz. Durch die Verwendung einer Korkverkleidung und einer Korkisolierung verbessert sich die thermische und ökologische Gesamtleistung des Hauses erheblich. Dreifach verglaste Fenster mit grün gestrichenen Fensterrahmen sorgen in den neuen Räumlichkeiten für eine hohe Luftdichtheit und einen hohen Wärmewert.
Gestaltung der neuen Innenräume
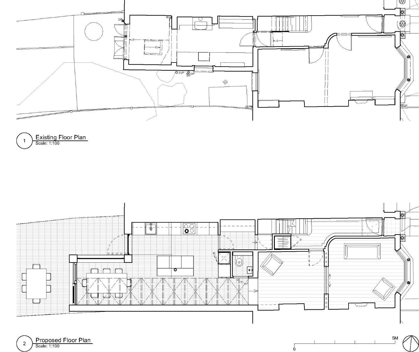
Für den neuen offen gestalteten Raum haben die Architekten den Anbau versenkt. Dies erforderte eine Abstufung von den bestehenden Hauptwohnräumen im vorderen Bereich des Hauses in die neue Küche samt Essbereich. Strapazierfähige Terrakotta-Fliesen in der Küche schaffen eine Verbindung zum Außenraum, da diese auch auf der Terrasse verlegt sind. Neben den großen Fensterflächen bringen Oberlichter Tageslicht in den Erweiterungsbau.


Ein langes Oberlicht bringt Tageslicht in den Küchen- und Essbereich. © Fred Howarth


Terrakotta-Fliesen sind in der Küche und auf der Terrasse verlegt. © Fred Howarth


Der Loungebereich im vorderen Teil des Hauses ist in venezianischem Rot gestrichen. © Fred Howarth
Renovierung des Bestands
Im vorderen Bereich des Hauses haben Delve Architects einen Hauswirtschaftsraum eingerichtet sowie einen neuen Loungebereich geschaffen. Die Wände der Lounge sind in venezianischem Rot gestrichen, um eine warme Wohnatmosphäre zu erzeugen.
Architektur: Delve Architects
Bauherr: Privat
Standort: Camberwell, London (GB)
Bauzeit: 26 Wochen
Bauunternehmen: CSC Build It
Tragwerksplanung: Cogley Strukturelle Lösungen
Korkwände/ Isolierung: Mike Wye















