Leuchtkörper auf dem Dachboden
Schulsanierung in Biberach von Florian Scheytt
Auf dem historischen Dachboden der Grundschule findet sich nun ein neu eingebauter Lagerraum. © Zooey Braun
Bei der Sanierung der Braith-Grundschule setzen die Architekten auf klare Kontraste zwischen Alt und Neu – auch auf dem historischen Dachboden mit seinem neu eingebauten Lagerraum.


Braith-Grundschule in Biberach, © Articus Design
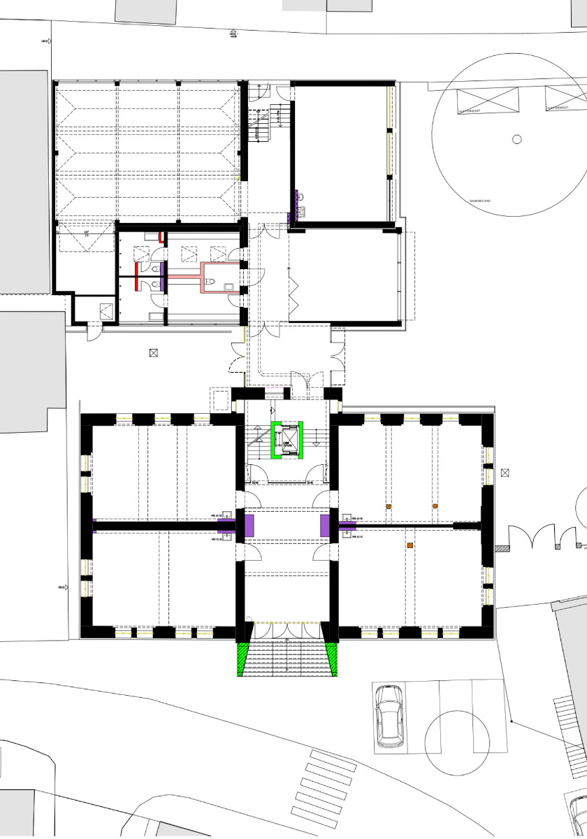
„Und erstens kommt es anders …“ – dieses Zitat von Wilhelm Busch wird vielen Menschen schon im Kopf herumgegangen sein, die sich professionell mit der Sanierung historischer Bausubstanz befassen. Auch auf die Braith-Schule in Biberach trifft es zu: „Die gesamte Schulanlage war augenscheinlich in Ordnung. Die üblichen Gebrauchsspuren gaben auch keine besonderen Anlässe zur Besorgnis“, berichtet Florian Scheytt über seinen ersten Eindruck, nachdem er mit der Sanierung beauftragt worden war. Die Stadt Biberach wollte das Schulhaus von 1848 renovieren, barrierefrei erschließen und den Brandschutz ertüchtigen.
Tragwerk birgt Überraschungen
„Und zweitens als man denkt“: Bei näherem Hinsehen offenbarte das Tragwerk des Altbaus immer mehr eklatante Schwächen. Einer der Hauptgründe: Anfang des 20. Jahrhunderts hatte man die Lehrerwohnungen, die bis dato ebenfalls im Haus untergebracht waren, zu Klassenzimmern umgebaut. Die dabei verwendeten Stützen, Wände und Decken waren nicht ausreichend dimensioniert.


Klassenzimmer, © Zooey Braun
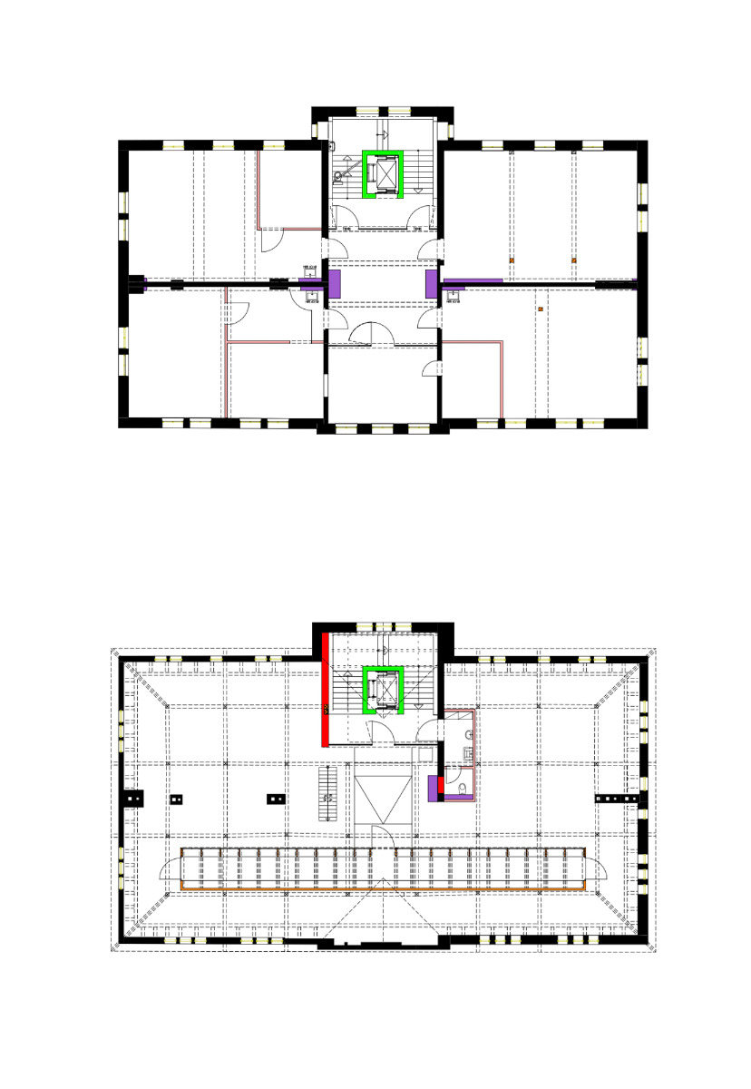
Klare Trennung zwischen Alt und Neu
Es blieb nichts anderes, als die alten Holzbalkendecken mit Stahlstützen und -trägern zu ertüchtigen. Auch das in den 1960er-Jahren ergänzte Treppenhaus wurde von Grund auf neu errichtet und ein Aufzug integriert. Bei alledem achteten die Architekten auf eine klare gestalterische Unterscheidung zwischen Alt und Neu.


Eine Box aus Holz dient der Aufbewahrung von Büchern, Bastel- und Arbeitsmaterialien. © Zooey Braun
Leuchtkörper auf dem Dachboden
Auch auf dem Dachboden der Schule: Statt eines konventionellen Dachausbaus legten sie die historische Holzkonstruktion frei, indem sie spätere Einbauten entfernten. In den großen Raum stellten sie eine freistehende Lagerbox aus Holz ein, die mit Polycarbonat-Stegplatten umhüllt ist. Dieser Raum im Raum, der zur Aufbewahrung von Büchern, Bastelarbeiten und Unterrichtsmaterialien dient, beginnt bei eingeschaltetem Licht effektvoll zu leuchten.
Architektur: Scheytt Architektur.Projektsteuerung
Bauherr: Stadt Biberach
Standort: Schulstraße 15, 88400 Biberach (DE)

















