// Check if the article Layout ?>
Charme der 60er-Jahre: »Magdas« Hotel in Wien
Bar, Foto: AllesWirdGut Architektur/Guilherme Silva Da Rosa
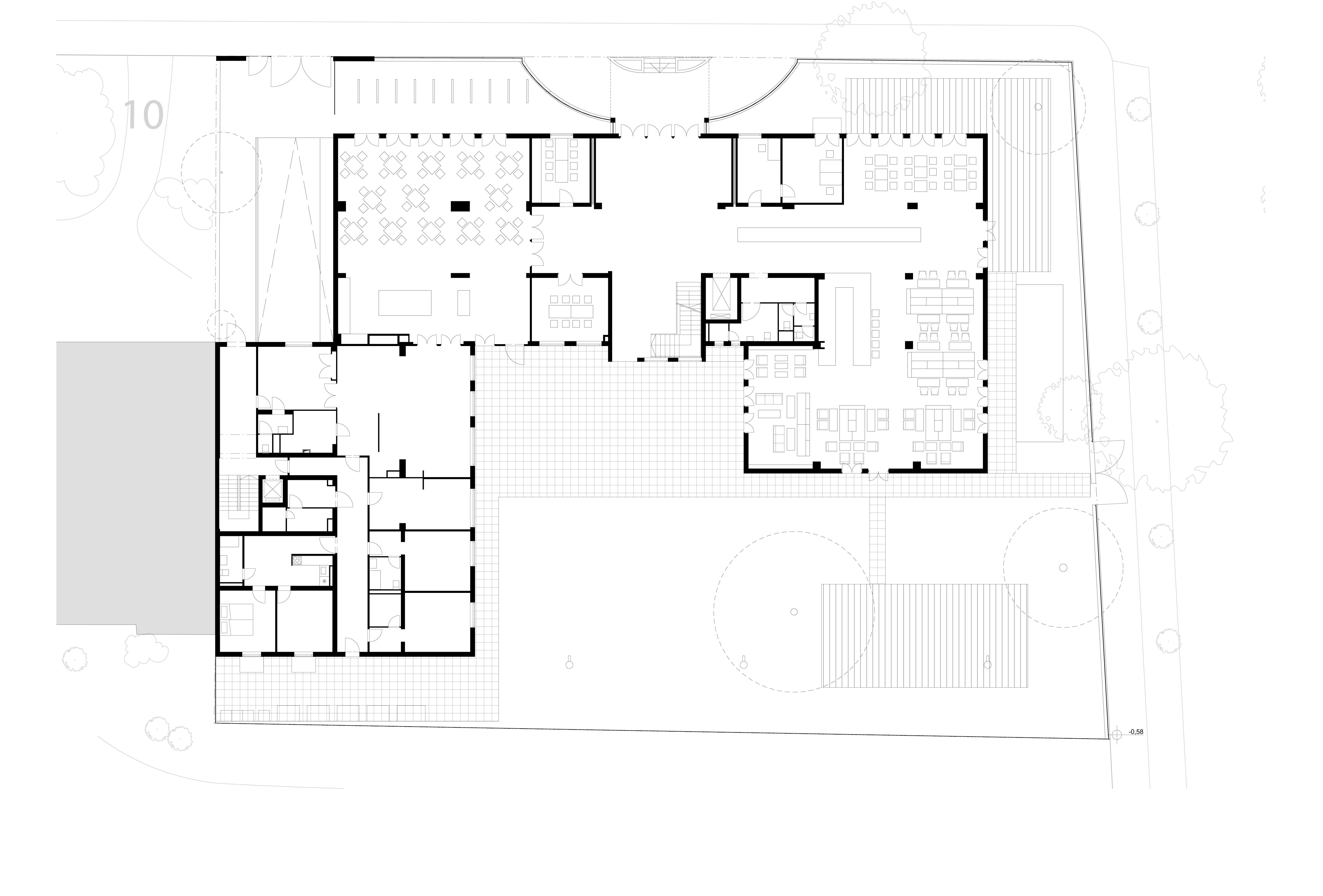
Geschickt haben die Architekten von AllesWirdGut ein Interieur geschaffen, das schlichte Möbel und Stoffe mit Retro-Design und Objekten aus den 1960er-Jahren kombiniert. So ist ein interessanter, aber unaufdringlicher Mix aus Alt und Neu entstanden, der sich durch alle Bereiche des Gebäudes zieht: vom großzügigen Erdgeschoss mit Lobby, Bar, Lounge, Bibliothek und Frühstücksraum bis in die oberen Etagen mit individuell eingerichteten Zimmern.
Die minimalen Eingriffe und der Vintage-Chic sind nicht zuletzt dem knappen Budget geschuldet, denn eigentlich ist »Magdas« ein Sozialprojekt der Caritas: Es umfasst nicht nur 78 Hotelzimmer, sondern auch zwei Wohngemeinschaften für 25 jugendliche Flüchtlinge, die auch einen Großteil des Personals stellen. Durch diese ungewöhnliche Mischung soll ein lebendiger Ort der Begegnung entstehen – getreu dem Motto des Hotels »Stay open-minded«. Die Innenräume jedenfalls strahlen schon die dazu passende Lässigkeit aus.
Weitere Informationen
Homepage AllesWirdGut Architektur
Einen Bericht zum Hotel Magdas finden Sie in unserer Ausgabe DETAIL inside 1/2015.
Homepage AllesWirdGut Architektur
Einen Bericht zum Hotel Magdas finden Sie in unserer Ausgabe DETAIL inside 1/2015.













