Wohnen in Gemeinschaft
CO2-neutrales Wohnhaus ParkLife in Melbourne
Das Dach bietet wind- und sonnengeschützte Gemeinschaftsflächen mit Wäscheraum und einer breiten Treppe mit Sitzstufen aus Holz. © Tom Ross, Austin Maynard Architects
Der gemeinschaftsorientierte, kostenoptimierte Wohnungsbau mit 37 Apartments ist eines der nachhaltigsten Wohngebäude Australiens. Austin Maynard Architects sind nicht nur die Entwurfsverfasser, sie haben als Architektenkooperative das Projekt auch selbst entwickelt. So konnten sie von der Konzeption bis ins Detail ein maßgeschneidertes Gebäude errichten, das die Hausgemeinschaft fördert, kostengünstig und nachhaltig ist.


ParkLife liegt im Stadtteil Brunswick und reagiert mit seiner gestaffelten Südfassade auf die kleinteiligere Bebauung der Duckett Street. © Tom Ross, Austin Maynard Architects
Bezahlbarer Wohnraum
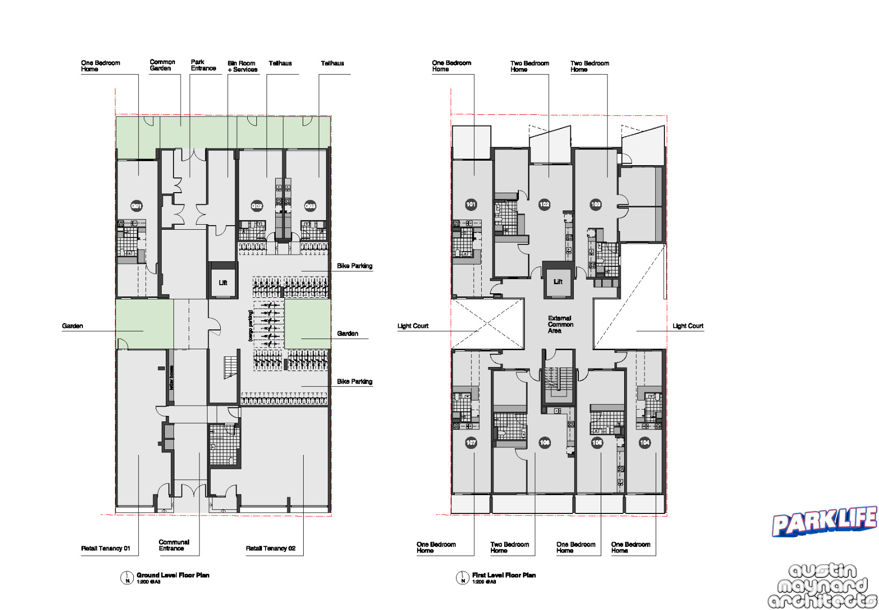
Parklife liegt im Stadtteil Brunswick und reagiert mit seiner gestaffelten Südfassade auf die kleinteiligere Bebauung der Duckett Street, nach Norden wo auf der Südhalbkugel die Sonne scheint, öffnen sich die Wohnungen mit Balkonen zu einem kleinen Park. Das Wohnhaus ist Teil des Gesamtprojekts The Village das aus sechs Gebäuden besteht und von einer Architektenkooperative entwickelt und gebaut wurde. Ziel der Kooperative war es, als Gegenbewegung zum kommerziellen profitgetriebenen Immobilienmarkt Australiens, bezahlbare Eigentumswohnungen anzubieten, die Gemeinschaft des Quartiers zu fördern, Ziele der Nachhaltigkeit umfassend umzusetzen und die Befindlichkeiten der ursprünglichen Landbesitzer, der Ureinwohner zu respektieren. Jedes der sechs Häuser von The Village ist von einem anderen preisgekrönten Architekturbüro geplant. So war es Austin Maynard Architects möglich in enger Abstimmung mit dem Architekten des Nachbargebäudes anstelle einer Brandmauer einen gemeinsamen Innenhof zur natürlichen Belichtung und Kühlung der tiefen Grundstücke zu verwirklichen.
Privateigentum mit Gemeinschaftssinn
Im Erdgeschoss ermöglicht eine Fußgängerpassage durchs gesamte Gebäude auch den Bewohnern der Nachbargebäude einen Durchgang von der Duckett Street zum Park. Der Durchgang schafft auch Platz für 95 Fahrradabstellplätze der 37 Wohneinheiten im zweiten begrünten Lichthof und einen großzügigen witterungsgeschützen Bereich vor der Haustüre. Auf private Stellplätze haben die Planer gänzlich verzichtet.


Das Erdgeschoss bietet 95 Fahrradabstellplätze sowie begrünte Lichthöfe. © Tom Ross, Austin Maynard Architects
Als Symbol für das freundliche Strahlen der Sonne beschreiben Austin Maynard die gelben Oberflächen auf Böden, Wänden, Fensterrahmen und Balkongeländern, die wie sich wie ein Band der Gemeinschaft vom Erdgeschoss zur Dachterrasse ziehen. Anstelle innenliegender dunkler Gänge sind die Erschließungsflächen zweiseitig durch die Innenhöfe belichtet und belüftet und aufgrund großzügiger Dimensionierung kommunikative Begegnungsräume. Wassersprüher und Pflanzen in den Höfen sorgen für zusätzliche Kühlung in den heißen Monaten. Außer dem Garten zum Park gibt es wind- und sonnengeschützte Gemeinschaftsflächen auf dem Dach mit Wäscheraum und einer breiten Treppe mit Sitzstufen aus Holz.


Die gelben Erschließungsflächen sind zweiseitig durch Innenhöfe belichtet. © Tom Ross, Austin Maynard Architects


Gelbe Oberflächen an den Balkonen, © Tom Ross, Austin Maynard Architects
Nachhaltigkeit mit Low-Tech
Im Gegensatz zu den Stahlbetonfertigteilen konventioneller Wohnungsbauten sind die Fassaden aus hochgedämmten Sandwichpaneelen aus weißem Stahlblech, mit hohem Reflexionsgrad gegen die aggressive Sonnenstrahlung. Austin Maynard haben die Glasflächen auf das erforderliche Maß gegrenzt, um unnötige Überhitzung durch Sonneneinstrahlung zu vermeiden. Daher sind die Höhen der Balkonfenster auf 2,10 m limitiert, darüber schafft ein Regal zusätzlichen Stauraum. Die Lochfenster sind mit weit vorstehenden Umrandungen aus Lochblech verschattet, was der Fassade eine skulpturale Qualität verleiht.


Die Lochfenster sind mit weit vorstehenden Umrandungen aus Lochblech verschattet. © Tom Ross, Austin Maynard Architects
Fossile Brennstoffe werden nicht eingesetzt, die gesamte Wärmeversorgung erfolgt über elektrischen Strom. Sogar der Barbecue Grill auf der Dachterrasse wird elektrisch betrieben. Anstatt einer Klimaanlage sorgt eine Wohnraumlüftung mit Wärmerückgewinnung für thermische Behaglichkeit. Die Photovoltaikanlage liefert 28,8kW und produziert auch den Strom für die Wärmepumpe. Eine Regenwasserzisterne mit einem Fassungsvermögen von 20 000 l garantiert die autarke Bewässerung der Pflanzen und dient als Auffangbecken bei Starkregen. ParkLife steht in einer Entwicklungsreihe mehrerer nachhaltiger Wohnbauten von Austin Maynard und nimmt im Dachbereich die Satteldächer des Vorgängerprojekts Terrace House auf. Als Nachfolgeprojekt ist bereits ParkLife 2 in Planung.
Mehr dazu in Detail 4.2024 und in unserer Datenbank Detail Inspiration.
Architektur, Projektentwicklung: Austin Maynard Architects
Indigene Landbesitzer: Wurundjeri Clan des Woi Wurrung Volks der Kulin Nation
Standort: Australien (AU)
Tragwerksplanung: Irwin Consult
Landschaftsplanung: Openwork
Generalunternehmer: Hacer Group


























