Umbau bringt Klarheit und Zusammenhalt
Collège Maryse Bastié in Dole von Tectoniques Architectes
Das Collège Maryse Bastie stammt aus den 1970er-Jahren. Bei der Sanierung erhielt es eine neue, einheitliche Hülle aus grünem Stehfalzblech, grau lasierter Lärchenholzschalung und markanten gelben Fensterrahmen. © Maxime Verret
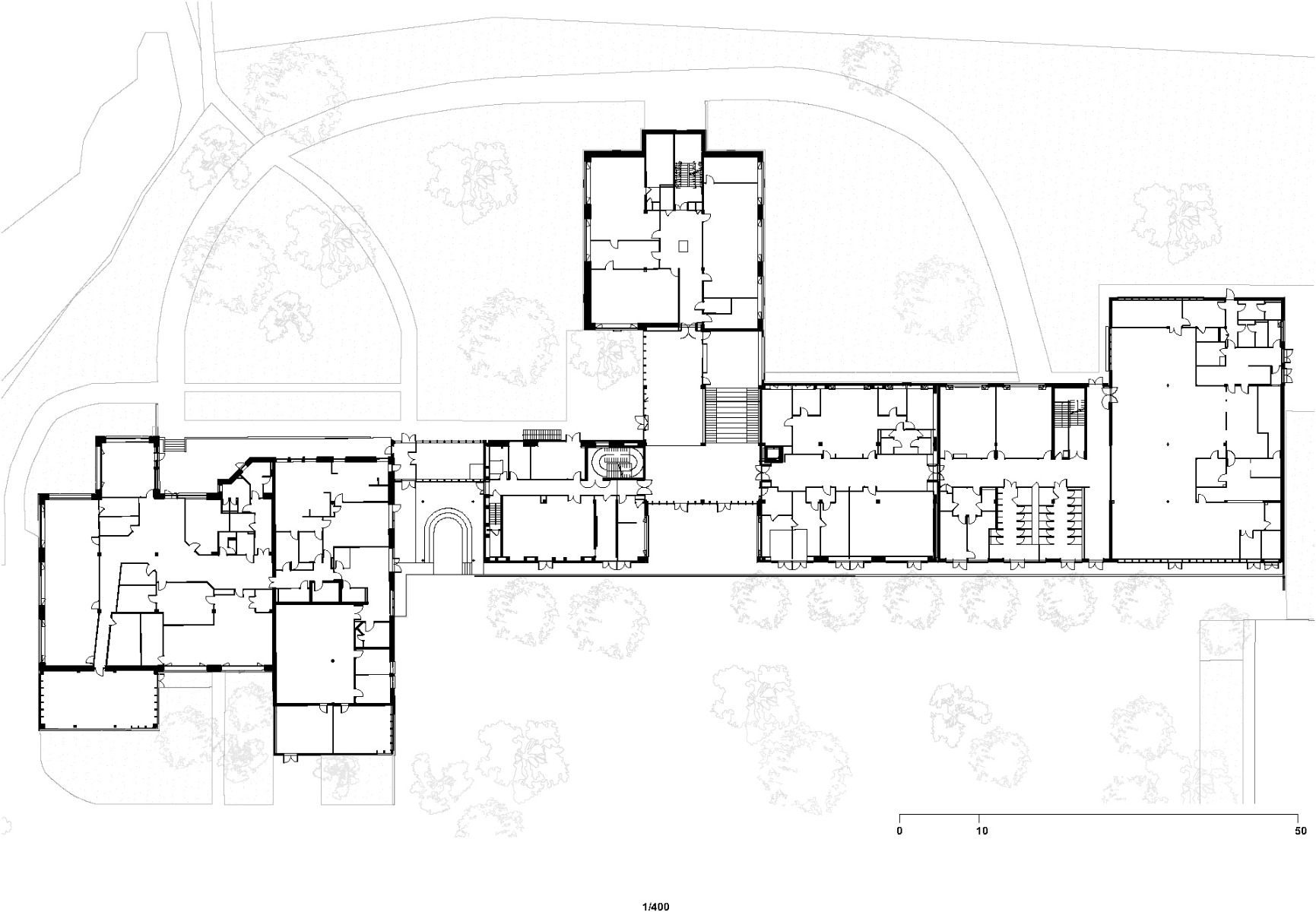
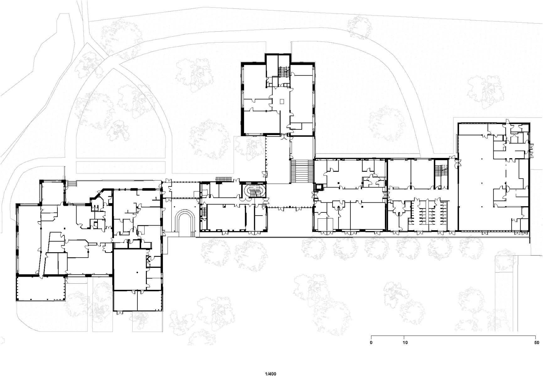
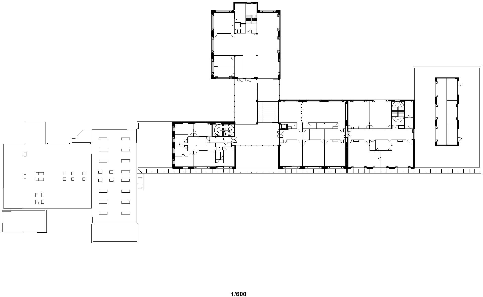
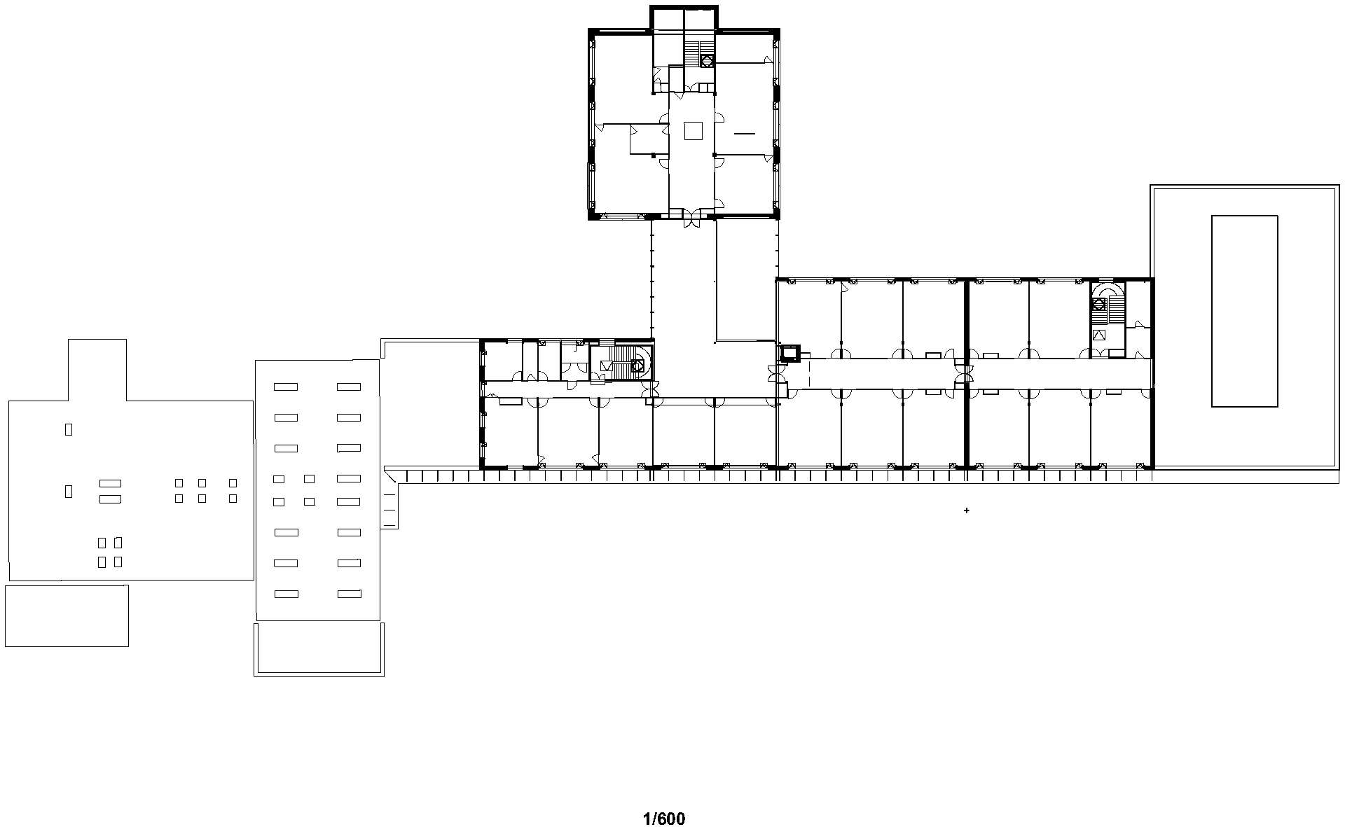
Das Collège Maryse Bastié entstand Mitte der 1970er-Jahre an der südwestlichen Stadteinfahrt von Dole. Wegen des starken Bevölkerungswachstums in der Gegend wurde es in der Folgezeit immer wieder erweitert. Über die Jahre entstand daraus ein unübersichtliches und im Inneren labyrinthisches Gebäudekonglomerat. Den Wettbewerb um die längst überfällige Sanierung gewannen Tectoniques Architectes aus Lyon mit ihrem Plan, die Bestandsgebäude baulich zusammenzulegen und gestalterisch zu vereinheitlichen.


In der Eingangshalle ließen die Architekten die Zwischendecken entfernen. Erstmals das Gebäude hier nun in seiner vollen Höhe erlebbar. © Maxime Verret
Betonstruktur wiederentdeckt
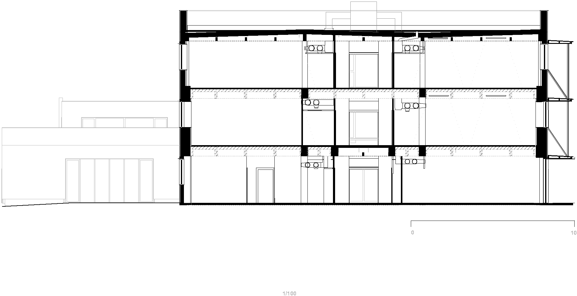
Das ursprüngliche Gebäude von 1974 bestand aus einem System von Fertigteilstützen, -trägern und -decken aus Beton. Die kassettierten Deckenelemente waren hinter abgehängten Decken verschwunden. Ihre Wiederentdeckung während einer Baubegehung in der Wettbewerbsphase lieferte dem Architekturbüro die Grundidee seines Entwurfs. Das Team ließ die Decken offenlegen und ergänzte den Betonbau durch Aufstockungen und Anbauten aus Holz, deren Kassettendecken das gleichen Rastermaß von 90 cm aufweisen. Auch die Betonstützen und -träger im Gebäudeinneren liegen nun weitestgehend offen.


In den Bestandsgeschossen wurde die gerasterte Betondecke offen gelegt. Darin dämpfen eingelegte Holzwolle-Leichtbauplatten den Schall. © Maxime Verret
Einheitliche Fassade
Holz- und Betonbau erhielten eine neue, einheitliche Hülle aus gedämmten Holzelementen und Verkleidungen aus grünen Aluminium-Stehfalzblechen, vorvergrautem Lärchenholz und gelb eloxierten Fensterrahmen. An der Südseite schützen weit auskragende Brise-Soleils die Fenster vor Sonne und die Fahrradabstellplätze im Erdgeschoss vor Regen. Nur der nördliche Gebäudeflügel musste aus Budgetgründen mit einem grün verputzten Wärmedämmverbundsystem vorliebnehmen.


Axonometrie und Ansicht der Fassade, Grafik © Tectoniques Architectes
Überraschungen inklusive
Da dem Planungsteam kaum Konstruktionspläne aus der Bauzeit vorlagen, blieben Überraschungen während des Umbaus nicht aus. Zum Beispiel war das ehemalige Flachdach der Schule nicht in der Lage, das zusätzliche Gewicht der Dachaufstockung aufzunehmen. Daher mussten die Unterzüge in der Fassadenebene durch Abfangkonstruktionen aus Stahl verstärkt werden, die ihre Lasten ebenfalls direkt in die Betonstützen einleiten. Es schien, als ob sich die Fertigteilkonstruktion der 1970er-Jahre gegen jeglichen Umbau und jede Erweiterung sperrte. Deshalb ist es der Improvisationsgabe aller Beteiligten zu verdanken, dass die Schulsanierung im laufenden Betrieb innerhalb von vier Jahren abgeschlossen werden konnte.
Mehr dazu in Detail 11.2025 sowie in unserer Datenbank Detail Inspiration.
Architektur, Innenarchitektur: Tectoniques Architectes
Bauherr: Departement du Jura
Standort: 130b rue Baraban, Dole (FR)
TGA-Planung, Bauphysik, Brandschutz, Lichtplanung, Bauüberwachung: Tectoniques Ingénieurs
Landschaftsarchitektur: Atelier du Bocal
Tragwerksplanung: Arborescence, Tectoniques Ingénieurs
Akustik: DBVIB























