Renovation brings clarity and cohesion
Collège Maryse Bastié in Dole by Tectoniques Architectes
The Collège Maryse Bastie dates back to the 1970s. During its renovation, it was given a new, uniform exterior comprising green standing seam metal, grey glazed larch wood cladding, and striking yellow window frames. © Maxime Verret
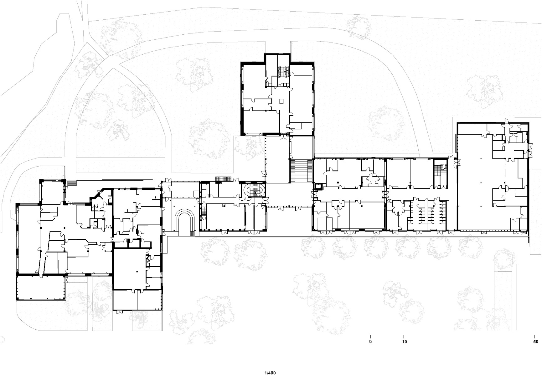
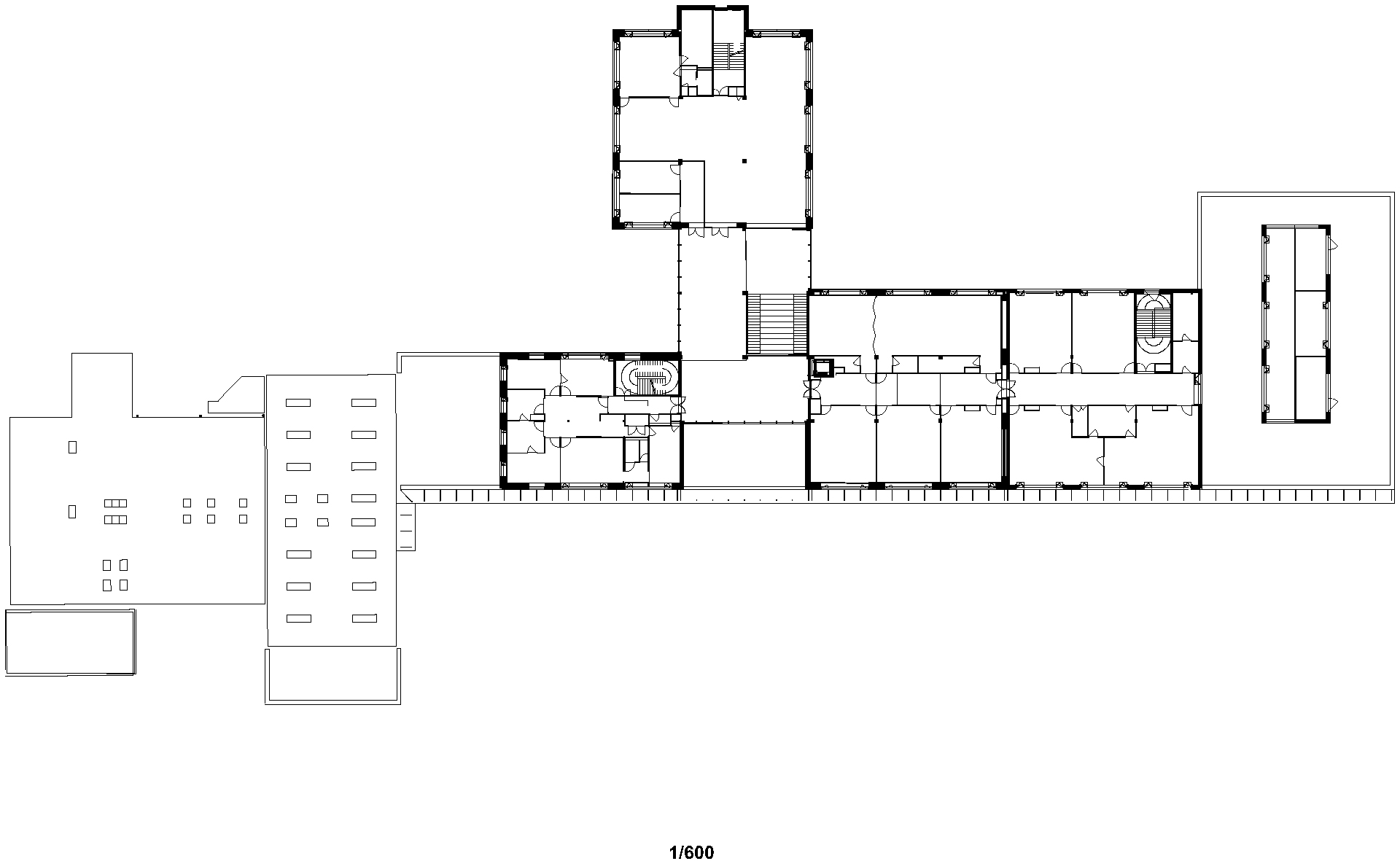
The Collège Maryse Bastié was built in the mid-1970s at the south-western entrance to Dole. Due to strong population growth in the area, it was repeatedly expanded in the following years. Over time, this resulted in a confusing, labyrinthine conglomeration of buildings. Tectoniques Architectes from Lyon won the competition for the long-overdue renovation with their plan to structurally merge the existing buildings and unify their design.


The architects removed the false ceilings in the entrance hall. For the first time, the building can now be experienced in all its full height. © Maxime Verret
Rediscovered concrete structure
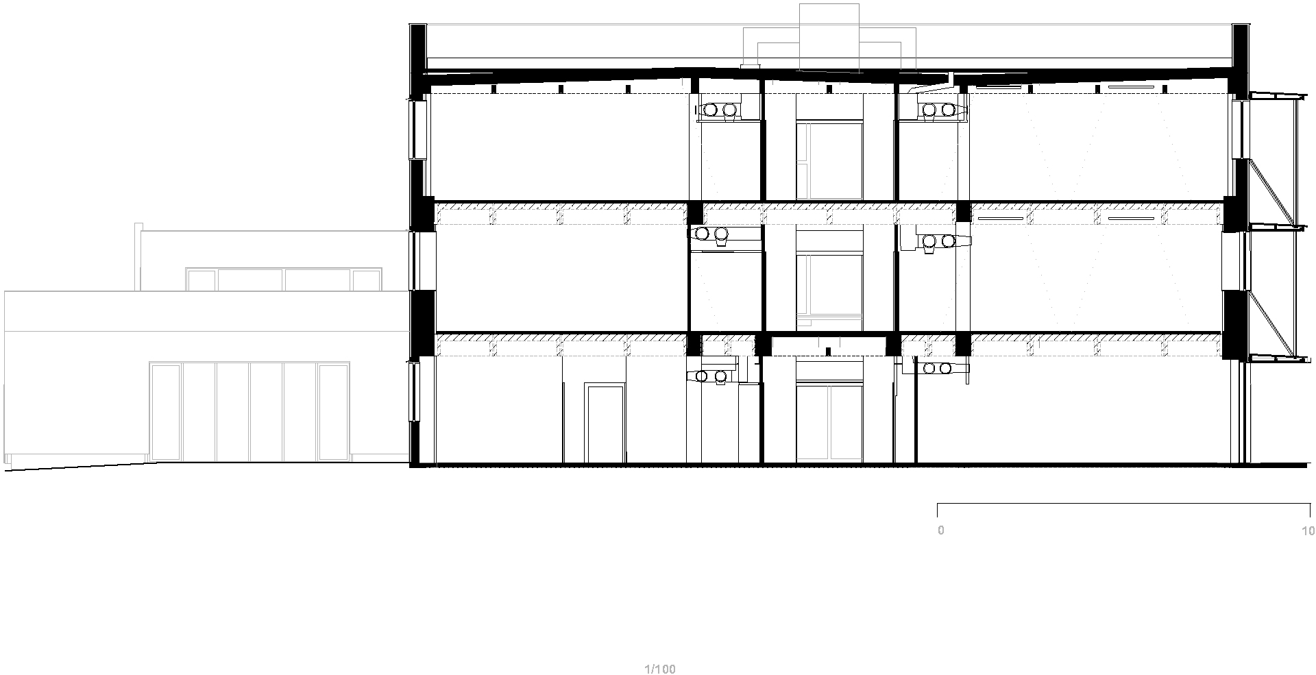
The original 1974 building consisted of a system of prefabricated concrete columns, beams, and slabs. The coffered ceiling elements had disappeared behind suspended ceilings. During a site inspection in the competition phase, the architectural firm rediscovered these elements and used them as inspiration for the design. The team exposed the ceilings and supplemented the concrete structure with wooden extensions and additions whose coffered ceilings have the same 90 cm grid dimension. The concrete columns and beams inside the building are now largely exposed too.


The grid-patterned concrete ceiling was exposed on the existing floors. Lightweight wood wool panels inserted into the ceiling help to dampen sound. © Maxime Verret
Uniform facade
The timber and concrete structure has been given new, uniform cladding made of insulated timber elements and green aluminium standing seam sheets, as well as pre-greyed larch wood and yellow anodised window frames. On the south side, widely projecting brise-soleils protect the windows from the sun and the bicycle parking spaces on the ground floor from rain. For budgetary reasons, the northern wing of the building was clad with a green plastered thermal insulation composite system instead.


Axonometric projection and view of the facade, Graphic © Tectoniques Architectes
Surprises included
As the planning team had hardly any construction plans from when the building was originally constructed, there were bound to be surprises during the renovation. For instance, the former flat roof of the school was unable to bear the additional weight of the roof extension. This meant that the joists in the facade had to be reinforced with steel support structures that transfer their loads directly into the concrete columns. The prefabricated construction of the 1970s seemed resistant to any conversion or extension. Thanks to the improvisational skills of all those involved, the school renovation was therefore completed within four years while the school remained in operation.
You can find out more in Detail 11.2025 and in our Detail Inspiration database.
Architecture, interior design: Tectoniques Architectes
Client: Departement du Jura
Location: 130b rue Baraban, Dole (FR)
Building services engineering, building physics, fire prevention safety, lighting design, construction supervision: Tectoniques Ingénieurs
Landscape architecture: Atelier du Bocal
Strctural engineering: Arborescence, Tectoniques Ingénieurs
Acoustics: DBVIB























