Revitalisierter Industriebau
Coworking-Center Base4Work von Studio Perspektiv
© BoysPlayNice
Lorem Ipsum: Zwischenüberschrift
Das Studio Perspektiv revitalisiert in Bratislava ein ehemaliges Heizwerk. Es verwandelt das Kulturdenkmal für Base4Work – einen Anbieter flexibler Arbeitsplätze – in ein Coworking-Center. Das Projekt erweckt ein Stück industrielles Erbe der slowakischen Hauptstadt zu neuem Leben. Bei der Umgestaltung arbeiteten mehrere Experten zusammen: Während Perspektiv die Innenarchitektur übernahm, plante das Team der DF Creative Group die baulichen Veränderungen. Für die denkmalgeschützte Gebäudehülle war Pamarch zuständig.


© BoysPlayNice
Lorem Ipsum: Zwischenüberschrift
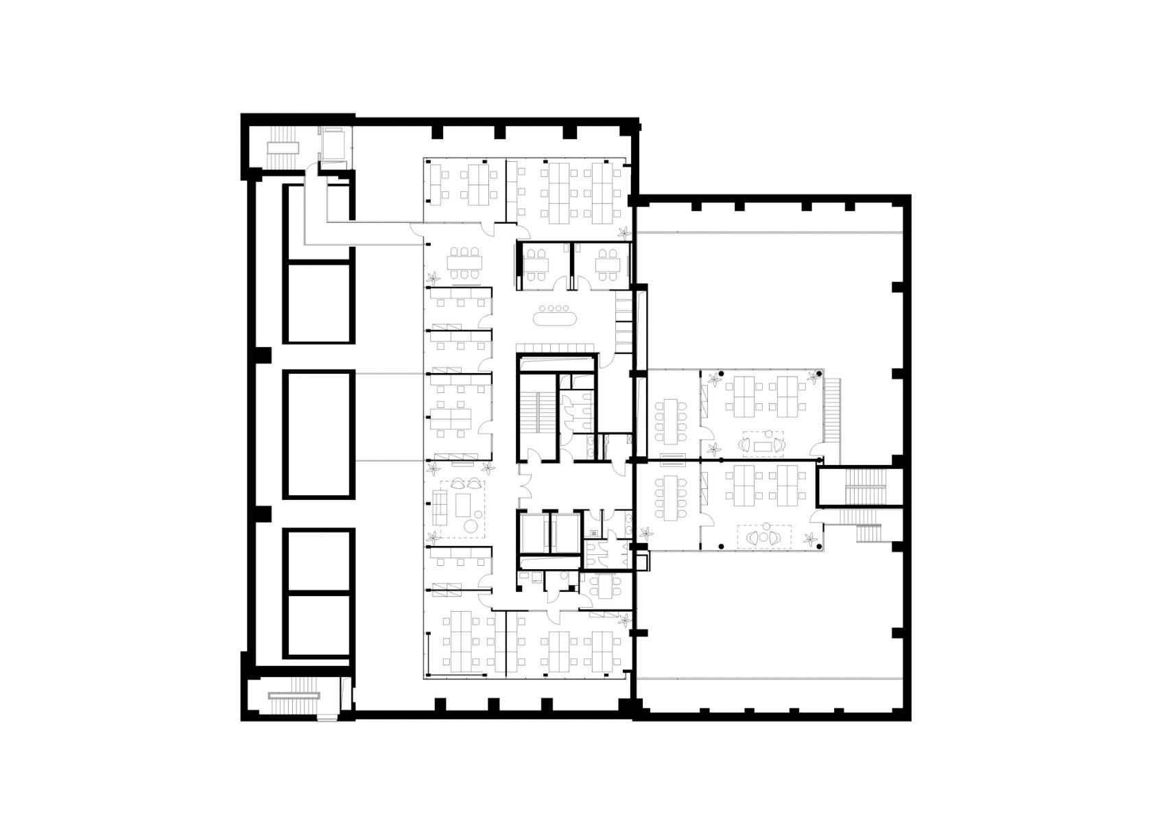
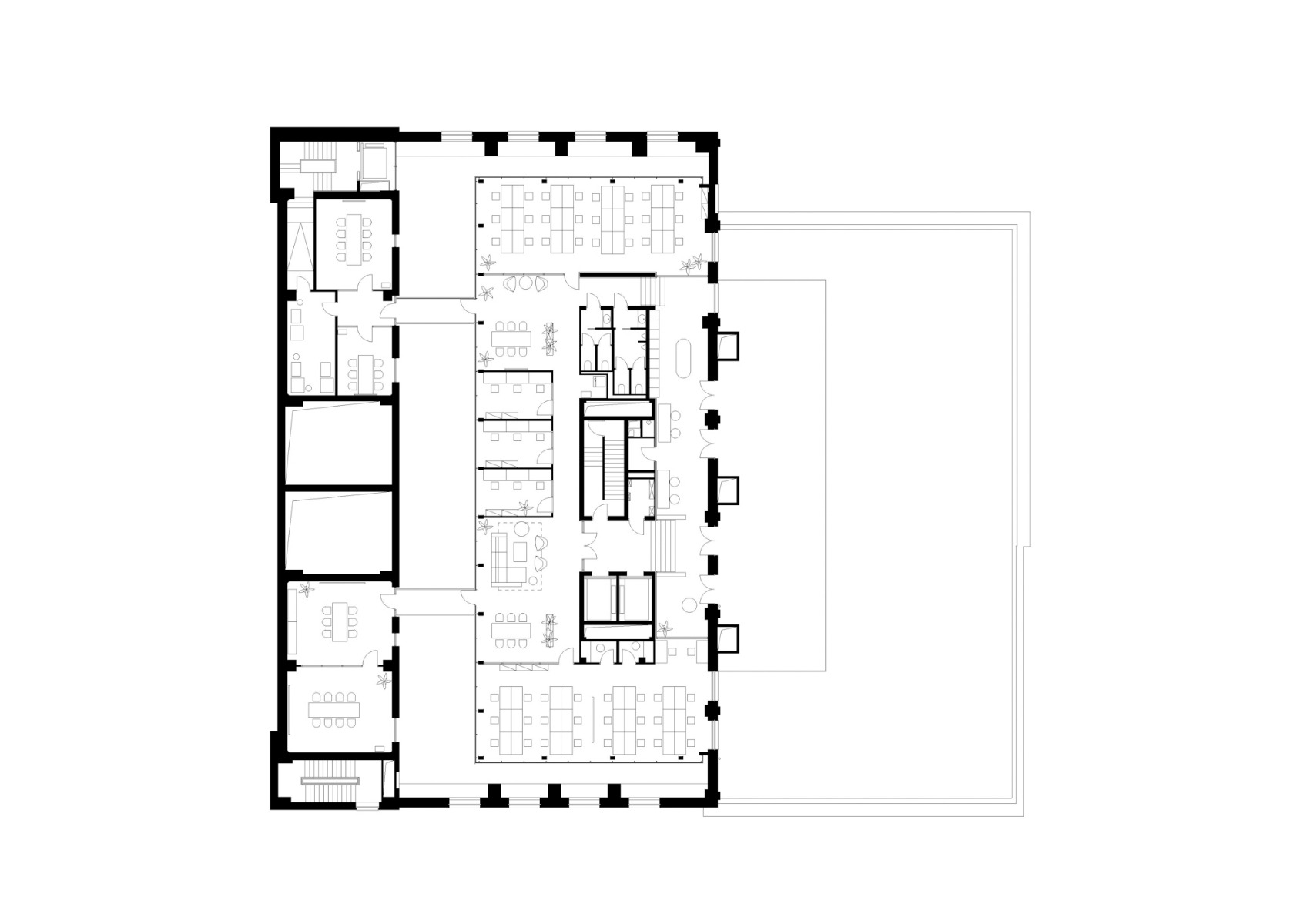
Als flexible Bürolandschaft erhält der Industriebau eine neue Funktion. Das Innenraumkonzept kombiniert dafür auf 3900 m² Teile der originalen Struktur mit neuen Elementen.
Lorem Ipsum: Zwischenüberschrift
In die einstige Kessel- und Turbinenhalle setzte man ein fünfstöckiges Gebäude ein. Ein zentraler Luftraum teilt den Haupttrakt in Längsrichtung und sorgt mit einem Oberlicht für lichtdurchflutete Bereiche.


© BoysPlayNice
Lorem Ipsum: Zwischenüberschrift
Rundherum ordnen sich die vielfältigen Arbeitsbereiche mit Platz für bis zu 450 Personen an. Sie sollen sowohl Firmenkunden als auch Start-ups und Freiberufler anziehen. Neben Büros und fix zugewiesenen Schreibtischen gibt es in allen Etagen Zonen für flexibles Arbeiten sowie Räume für Workshops und Meetings. Die Pausen kann man auf der Dachterrasse, im Café oder dem hauseigenen Restaurant verbringen. Flächen für Veranstaltungen und Kultur komplettieren das Raumprogramm des dynamisch gestalteten Coworking-Spaces.


© BoysPlayNice


© BoysPlayNice
Lorem Ipsum: Zwischenüberschrift
Die massiven Betontrichter des Bestands prägen das Gebäude bis heute: Wo früher Brennstoffe gelagert wurden, geben nun verglaste Böden den Blick ins Innere frei und ermöglichen Besprechungen in besonderer Atmosphäre. Auch sonst bestimmen rohe Betonoberflächen und Ziegelwände das Bild. Sie werden von Fenstern und Glastrennwänden mit Stahlsprossen, grafischen Akzenten und Lichtdetails ergänzt. Sämtliche neuen Materialien, die zum Einsatz kamen, sind entweder recycelt oder natürlichen Ursprungs und runden den modernen Hub im Industrial-Look stimmig ab.
Innenarchitektur: Studio Perspektiv
Architektur: DF Creative Group
Bauherr: Penta Real Estate
Standort: Bottova 1, 811 09 Bratislava (SK)
Sanierung Gebäudehülle: PAMARCH






















