Revitalized industrial building
Base4Work Coworking Centre by Studio Perspektiv
© BoysPlayNice
Lorem Ipsum: Zwischenüberschrift
In Bratislava, Studio Perspektiv have revitalized an old heating plant, transforming the cultural monument for Base4Work – a provider of flexible working spaces – into a coworking centre. The project has given new life to a piece of industrial heritage in the Slovak capital. Several experts collaborated in this transformation: while Perspektiv took on the interior design, the team from the DF Creative Group planned the constructive alterations, and Pamarch were responsible for the historically protected building shell.


© BoysPlayNice
Lorem Ipsum: Zwischenüberschrift
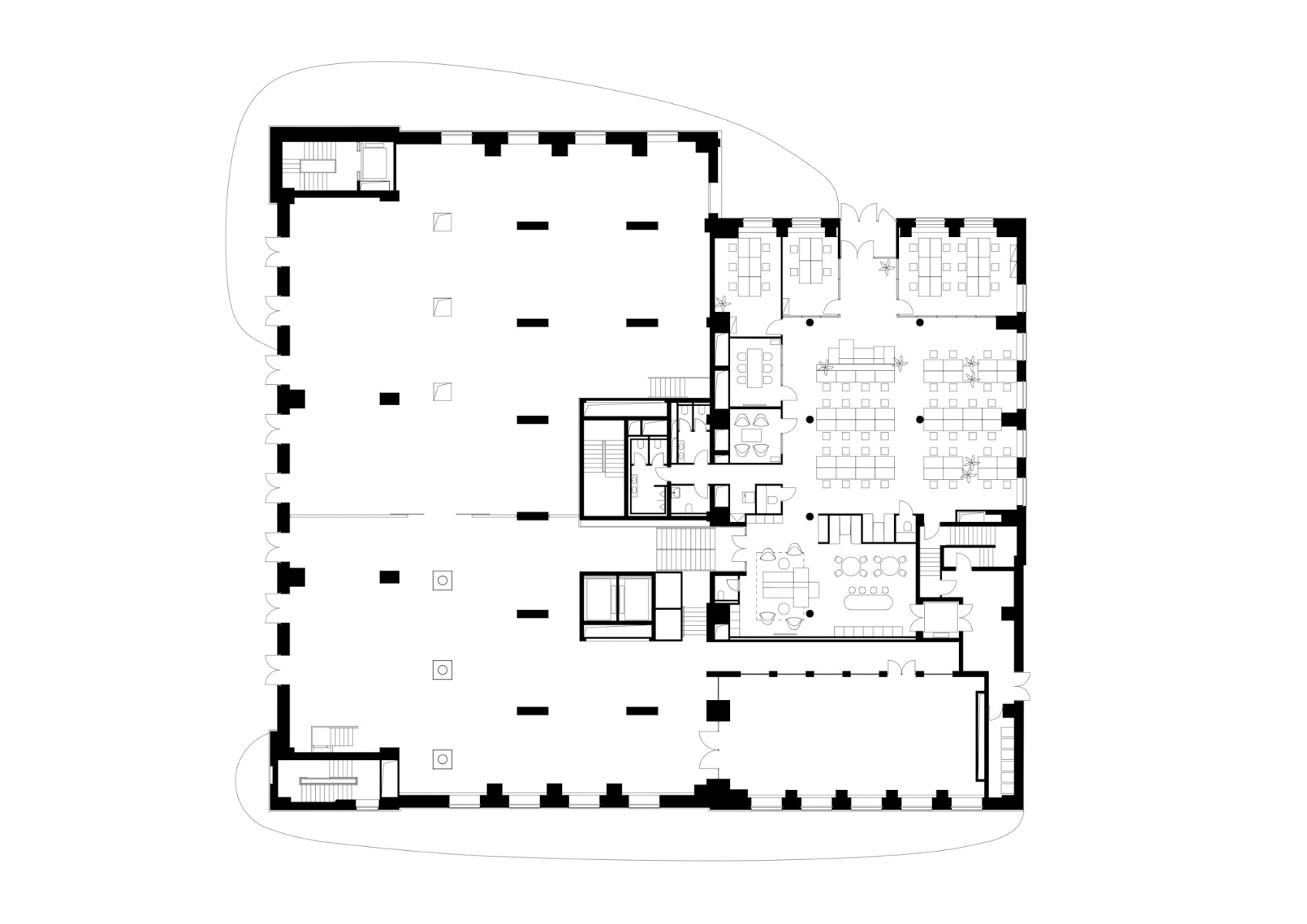
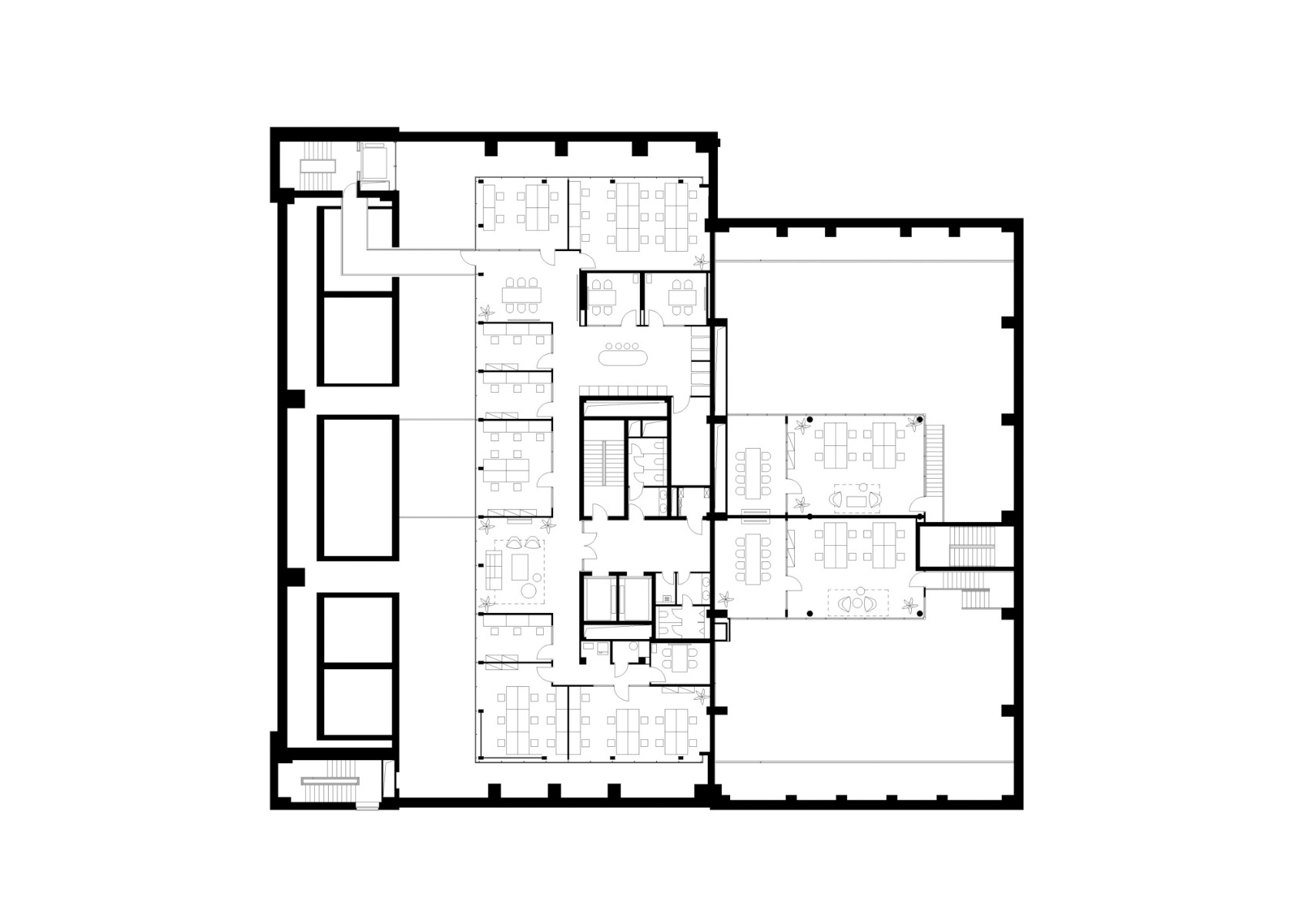
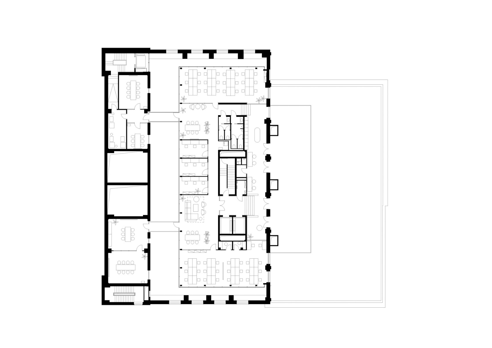
The industrial building has a new function as a flexible office landscape. To this end, the interior-design concept combines parts of the original structure with new elements distributed over 3900 m².
Lorem Ipsum: Zwischenüberschrift
A five-storey building has been placed in the former boiler rooms and turbine halls. A central atrium divides the main wing lengthwise; its skylight ensures light-flooded indoor areas.


© BoysPlayNice
Lorem Ipsum: Zwischenüberschrift
Diverse working zones with space for up to 450 people are arranged around the atrium. They are aimed at attracting not only corporate clients, but start-ups and freelancers as well. Along with offices and assigned desks, every level also offers areas for flexible work, workshops and meetings. Breaks can be enjoyed on the rooftop terrace, in the café or at the in-house restaurant. Room for events and culture completes the spatial program of this dynamic coworking space.


© BoysPlayNice


© BoysPlayNice
Lorem Ipsum: Zwischenüberschrift
The imposing concrete funnel from the existing structure still characterizes the building: where fuel was once stored, glazed floors now offer a view inside and enable meetings in a unique atmosphere. Rough concrete surfaces and brick walls add to the overall look; these are complemented by windows and glass partitions with steel mullions, graphic accents and lighting details. All the new materials used here are either recycled or naturally sourced. They harmonize to round out the industrial image of this modern hub.
Interior design: Studio Perspektiv
Architecture: DF Creative Group
Client: Penta Real Estate
Location: Bottova 1, 811 09 Bratislava (SK)
Refurbishment building envelope: PAMARCH






















