Transluzente Polycarbonathülle
Dangrove Art Space in Australien von Tzannes
© Ben Guthrie, The Guthrie Project
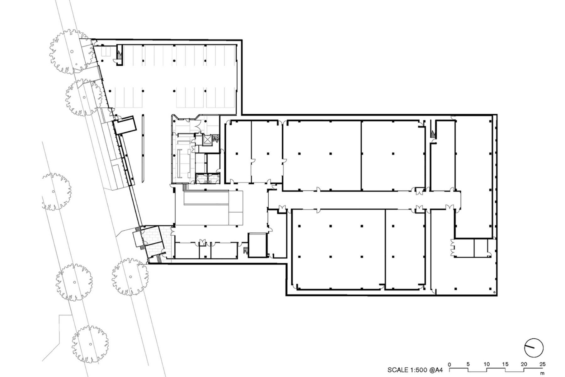
Für die Kunstsammlung der australischen Philanthropin Judith Neilson hat das Architekturbüro Tzannes ein modernes Kunstlager in Sydney realisiert. Der zweigeschossige Neubau hat eine Gesamtfläche von rund 10.500 m². Im Erdgeschoss befinden sich unter anderem der Fußgängereingang, die Anlieferung, ein Sicherheitsbereich sowie spezialisierte Lagerräume und Werkstätten.


Kunst unter freiem Himmel im Skulpturenhof
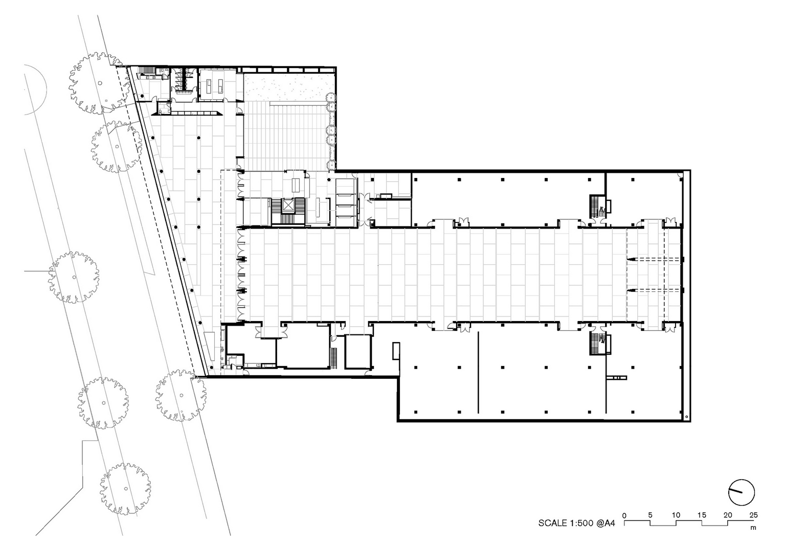
Im Obergeschoss sind der Empfang, die Verwaltung, die Bereiche Forschung und Konservierung, eine Bibliothek, ein Skulpturenhof sowie zwei große Räume für die Kunst untergebracht.
Hinter einer transluzenten Doppelfassade aus Polycarbonatpaneelen verbirgt sich die „Great Hall“ – das Herzstück der 10500 m² großen Dangrove Art Storage Facility. Der Raum ist 90 m lang, 20 m breit und an der höchsten Stelle 30 m hoch. Mit seinem großen Volumen bietet er ideale Voraussetzungen für temporäre Ausstellungen und das Kuratieren und Bewerten von Kunstwerken, aber auch für Theater, Konzerte und Performance-Kunst.


Die Polycarbonatpaneele sorgen für ein weiches und gleichmäßiges Licht in der Halle.
Hierzu hat Tzannes das Stahltragwerk der Halle mit einer doppelten Haut aus Polycarbonatpaneelen von Rodeca verkleiden lassen. Die Entscheidung fiel auf das 12-schalige Paneel PC 2560-12 in Opal auf der Außenseite und in DuoColor Kristall-Opal innen. Laut Hersteller blocken die Polycarbonatpaneele 99 % der UV-Strahlen bis 380 Nm ab und schützen die Kunstwerke so vor schädigenden Einflüssen.


Die Fassade mit Lichtbauelementen erhebt sich auf einer massiven Betonkonstruktion.
PC 2560-12 ist 60 Millimeter stark, weist eine Baubreite von 500 Millimetern auf und hat zwölf Schalen beziehungsweise zehn Luftkammern. Damit erzielt es einen Up-Wert von 0,75 W/(m²K). JS
Architektur: Tzannes
Standort:14 Mandible St, Alexandria NSW 2015 (AUS)
Fassade: Rodeca












