// Check if the article Layout ?>
Das Haus in der Landschaft und vice versa: Einfamilienhaus von HHF
Foto: Michael Christian Peters
Die Kräfteverhältnisse des Baukörpers manifestieren sich bei Haus H unkonventionell: Das Obergeschoss mit Satteldach ist von rauem Lärchenholz umhüllt und wirkt mit einzelnen Öffnungen eher verschlossen. So bietet es den Bewohnern Privatsphäre und Rückzugsmöglichkeiten. Sein größeres Volumen ragt rundherum über das kleinere Erdgeschoss heraus. Weil die Fassade im unteren Teil des Hauses zudem mit Glas und verchromtem Stahl bekleidet ist, spiegelt sie die Umgebung und verleiht dem Sockelgeschoss einen durchlässigen und leichten Ausdruck.
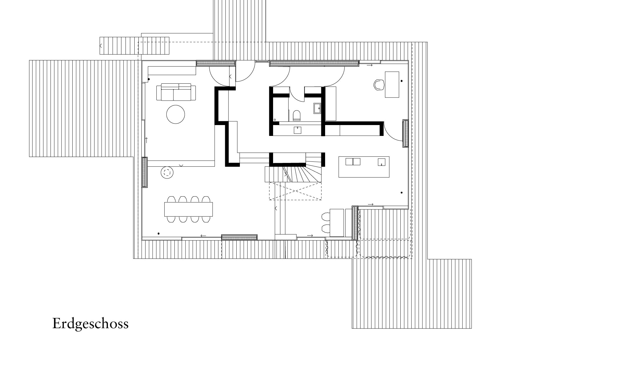
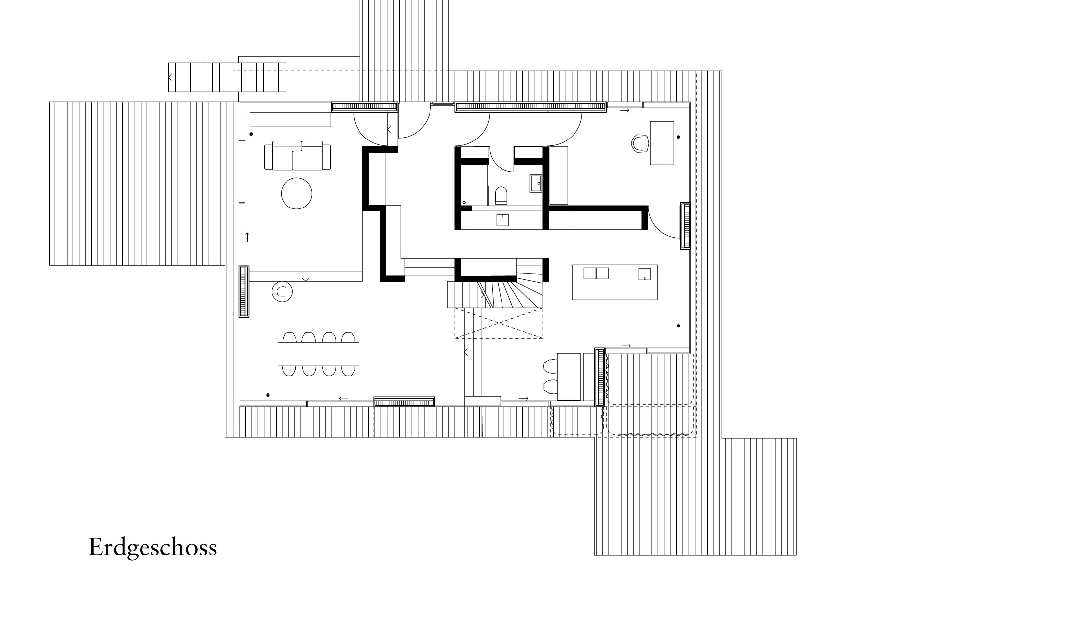
Der offene Grundriss im Erdgeschoss bildet auch die Raumgrenzen mit landschaftlichen Mitteln aus. Leichte Höhenunterschiede trennen das Wohn- vom Esszimmer und das Esszimmer wiederum von der Küche, einem Büro und dem Eingangsbereich. Die Landschaft kommt ins Haus und das Haus geht im ebenerdigen Wohnbereich in die Landschaft über. Unter der Auskragung des Obergeschosses liegen holzgedeckte Terrassen, die sich als Erweiterung des Wohnraumes lesen.
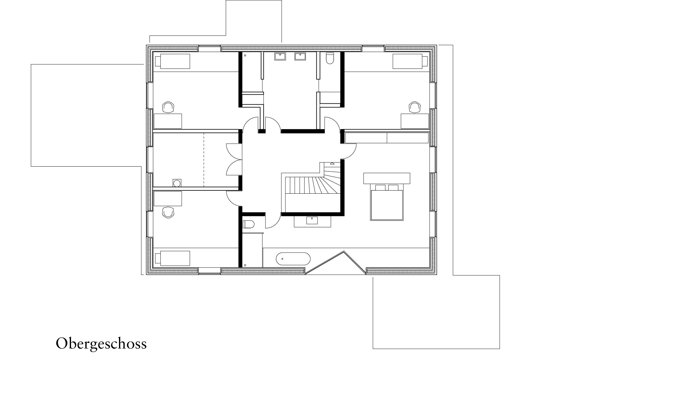
Für die fünfköpfige Familie finden sich im Obergeschoss drei Kinderschlafzimmer mit einem gemeinsamen Bad sowie ein Elternschlafzimmer mit eigenem Bad. Wo das Elternschlafzimmer in das Bad übergeht, liegt ein nach innen einknickendes Fenster in der Fassade. Dadurch besteht selbst von der Badewanne ein Ausblick in die Landschaft, ohne den Schutz einer massiven Außenwand aufzugeben.
Im Innenraum dominieren vor allem Sichtbeton und verschiedene Holzarten. Je nach Anforderungen wurden die integrierten Möbel und Bauteile in unterschiedlichen Hölzern ausgeführt. Für die Küche wählten die Architekten Ulme, die Wände wurden mit Weißtanne verkleidet und die Treppe aus Ahornholz gebaut. Sie windet sich im Kern des Hauses nach oben und mündet unter einem Oberlicht, wo die Brüstung außerdem ein Bücherregal ausbildet. Zusammen mit den Türen, dem Boden und der Decke haben nun im Obergeschoss die Holzoberflächen die Überhand.
















