// Check if the article Layout ?>
The House in the Landscape and Vice Versa: Single-Family Home by HHF
Foto: Michael Christian Peters
The balance of power of this structure is somewhat unusual: the upper storey, which features a saddle roof, is clad with rough larchwood and has few openings, making it seem closed off. It offers the inhabitants private space and the possibility to withdraw. Its larger volume juts all the way around the smaller ground floor. Because the façade of the lower portion of the house is clad with glass and chrome-plated steel, it reflects the surroundings and conveys a light, permeable impression.
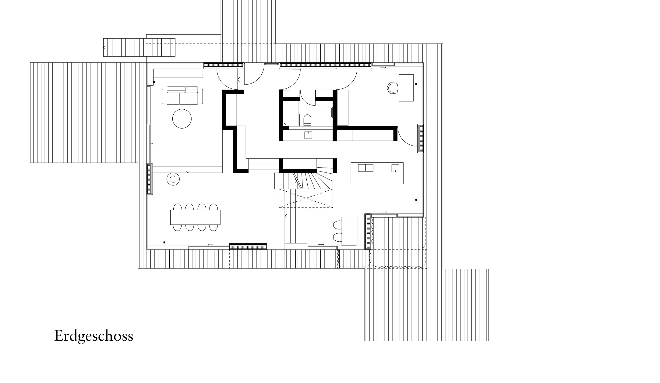
The open floor plan downstairs draws spatial boundaries with elements from the landscape. Slight differences in height separate the living room from the dining area and then the dining room from the kitchen, an office and the foyer. The landscape comes into the house and, in the ground-level living room, the house transitions into the landscape. Under the jut of the upper storey, wood-clad terraces can be read as extensions of the living space.
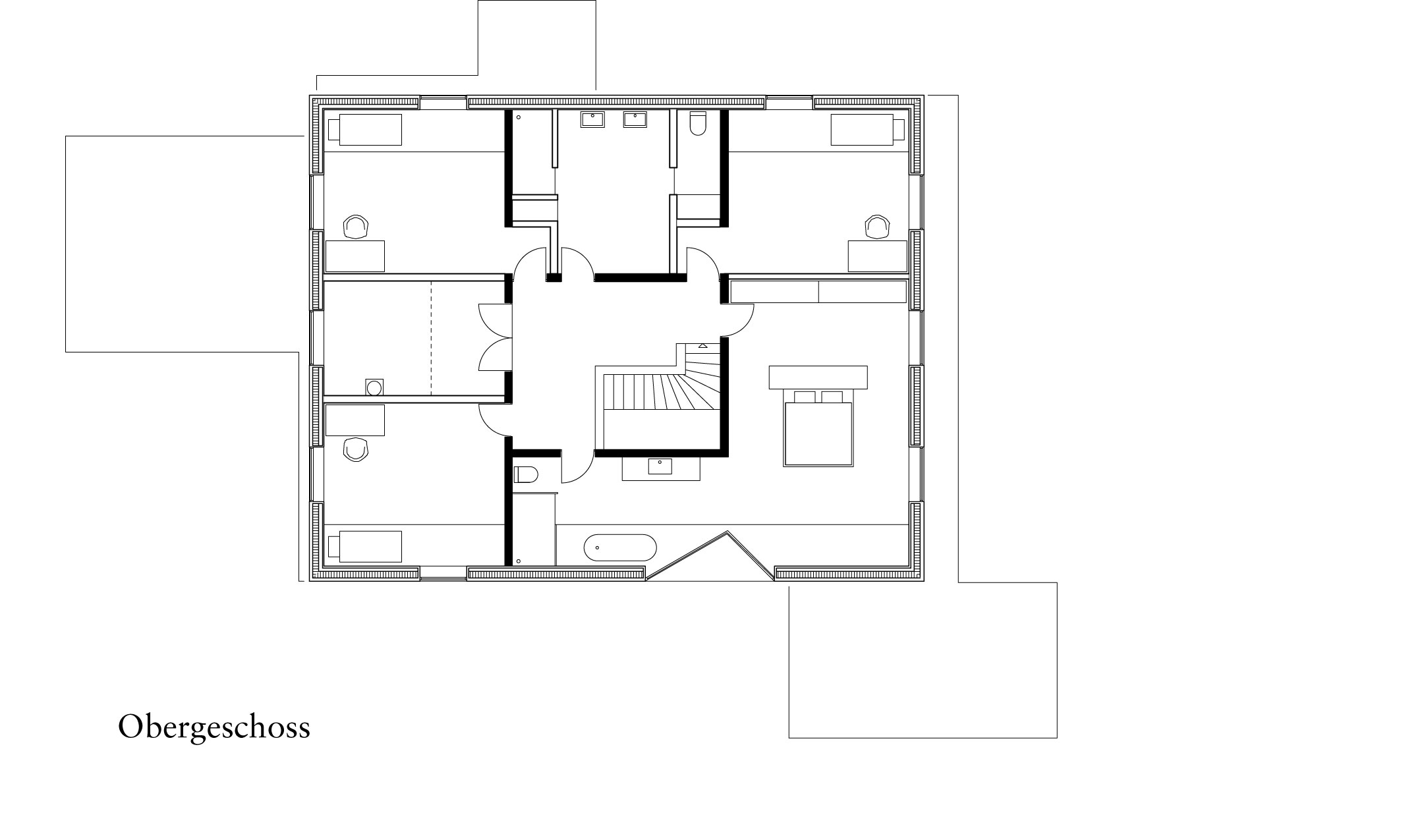
For the family of five who live here, the upper floor is home to three children’s bedrooms with a shared bathroom. There is also the master bedroom, which has an ensuite. Right where the master bedroom leads into the bathroom, a window folds itself into the façade. Because of this, even the bathtub can offer a view of the landscape without sacrificing the protection of a massive exterior wall.
Inside, exposed concrete and various types of wood dominate the design. As required, the integrated fittings and components have been made of various woods. For the kitchen, the architects chose elm; the walls are clad with silver fir and the stairs of maple. The stairway winds upwards in the heart of the house and ends underneath a skylight, where the balustrade functions as a bookcase as well. Along with the doors, the floor and the ceiling, wooden surfaces carry the tone on the upper storey.
The open floor plan downstairs draws spatial boundaries with elements from the landscape. Slight differences in height separate the living room from the dining area and then the dining room from the kitchen, an office and the foyer. The landscape comes into the house and, in the ground-level living room, the house transitions into the landscape. Under the jut of the upper storey, wood-clad terraces can be read as extensions of the living space.
For the family of five who live here, the upper floor is home to three children’s bedrooms with a shared bathroom. There is also the master bedroom, which has an ensuite. Right where the master bedroom leads into the bathroom, a window folds itself into the façade. Because of this, even the bathtub can offer a view of the landscape without sacrificing the protection of a massive exterior wall.
Inside, exposed concrete and various types of wood dominate the design. As required, the integrated fittings and components have been made of various woods. For the kitchen, the architects chose elm; the walls are clad with silver fir and the stairs of maple. The stairway winds upwards in the heart of the house and ends underneath a skylight, where the balustrade functions as a bookcase as well. Along with the doors, the floor and the ceiling, wooden surfaces carry the tone on the upper storey.
















