Speisen in maritimem Ambiente
Design-Bar La Más Rica in Madrid von Arquid
© Celia de Coca / Pati Nunez Agency
Das Team von Arquid Architects und die Designerin Olga Quintana verwandelten einen alten Basar im Stadtzentrum Madrids in eine Design-Bar. Im Mittelpunkt steht ein langer geschwungener Tresen aus Stahl und grauem Granit. Eine Familie aus Galizien, die im angesagten Fashion-Viertel Chamberí wohnt, hatte den Wunsch ein Stück ihrer Heimat mit in die Stadt zu nehmen.


© Celia de Coca / Pati Nunez Agency
Die Fusion spiegelt sich nicht nur im Menü des Restaurants wider, sondern auch in der Architektur. Sie verbindet den nautischen Charakter Galiziens mit der industriellen Vergangenheit des Viertels. Das Erdgeschoss des Gebäudes war zuvor mehrmals umgenutzt worden. Es diente als Reinigung, chinesisches Restaurant, Lebensmittelladen und zuletzt als Basar.
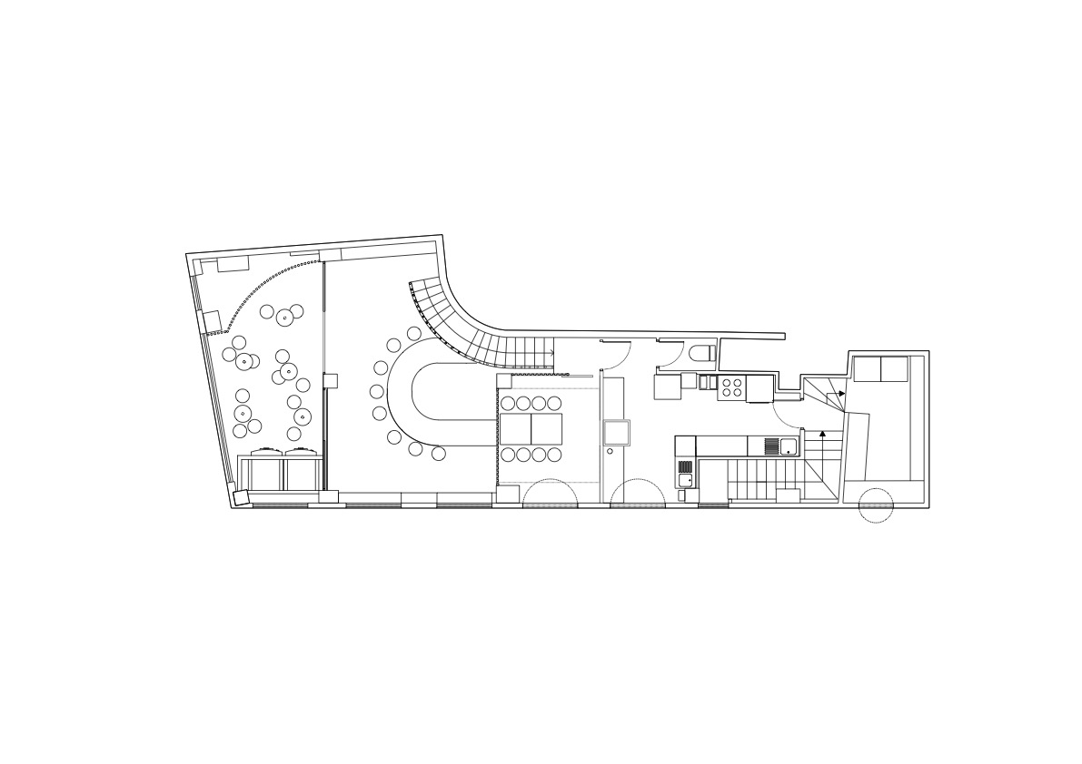
In den 140 m² großen Räumlichkeiten fanden die Architekten einen raumhohen, ungenutzten Bereich hinter der abgehängten Decke vor, der ihnen die Möglichkeit gab, ein Zwischengeschoss im hinteren Bereich und einen Luftraum am Eingang zu platzieren. Sie öffneten die Fassade mit großen Fenstern, die das Innere von außen sichtbar machen und gleichzeitig viel Licht in die Bar bringen. Große Falttüren am Eingang verbinden die überdeckte Terrasse im Sommer mit dem öffentlichen Raum.


© Celia de Coca / Pati Nunez Agency
Im Winter kann der Zwischenbereich bei geschlossenen Türen als Innenraum genutzt werden. Die Pflasterung des Gehsteigs setzt sich über die Terrasse bis in den Barbereich fort und unterstreicht die räumliche Kontinuität zwischen Innen und Außen. Auch der Bereich an der langen Fassade zur Straße kann im Sommer von den Gästen genutzt werden, dort sind Halbkreise aus Metall in die Scheiben integriert, die ausgeklappt als Tische im Außenbereich dienen.


© Celia de Coca / Pati Nunez Agency


© Celia de Coca / Pati Nunez Agency
In Zusammenarbeit mit der Designerin entstanden im Innenraum Details in vielfältigen Materialien. Jeder Bereich ist unterschiedlich gestaltet, bleibt aber überall dem maritimen und industriellen Charakter verhaftet. Stützen und Decken sind sichtbar belassen, der Beton unterstreicht den rohen Charme. Eine geschwungene Treppe führt nach oben ins Zwischengeschoss, wo intimere Treffen oder Veranstaltung stattfinden.


© Celia de Coca / Pati Nunez Agency
Ein wiederkehrendes Element sind die groben Seile, die als abgehängte Decke oder Wandverkleidung fungieren. Auch dunkler Stahl und Granit – ein allgegenwärtiges Material in Galizien – tauchen an verschiedenen Stellen auf. Eyecatcher der Bar ist eine große ringförmige Leuchte über dem Tresen, kleinere radförmige Wandleuchten spenden warmes Licht am Abend.
Innenarchitektur: ARQUID und Olga Quintana
Bauherr: privat
Standort: Calle de García de Paredes, 27, 28010 Madrid (ES)
Böden Innenraum: Azulejos Peña
Böden Außenraum: Breinco
Polycarbonat: Ceplasa
Stahlbau außen: Ballero e Hijos
Schlosserarbeiten: Hesa y Sousa
Beleuchtung: Aromas del Campo
Große Leuchte: ARQUID und Olga Quintana
Tische, Stühle: Crisal
Marmor: Maibi
































