Shopping im Spiegelkabinett
Verkaufsräume von Dongqi Design in Shanghai
@ Raitt Liu
Dongqi Design entwickelt in einer ehemaligen Fabrik in Shanghai ein einzigartiges Konzept, das Vergangenheit und Zukunft verschmelzen lässt und zugleich ein unvergessliches Einkaufserlebnis schafft. Inspiriert von der industriellen Geschichte des Ortes inmitten der chinesischen Metropole, renovieren die Architekten den dreistöckigen Bau in Kooperation mit Xcommons und verwandeln ihn in einen Shop mit dem Namen „XC273“.


@ Raitt Liu
Dafür legt das Planerduo in sämtlichen Bereichen die Originalstrukturen frei und kombiniert diese mit neuen Elementen. Das Ergebnis sind Verkaufsräume und Galerien für Produkte aus den Bereichen Lifestyle, Mode und Kunst.
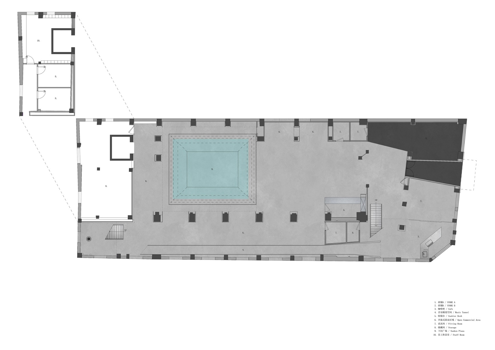
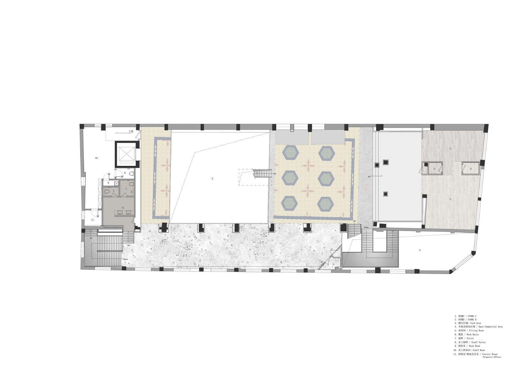
Sämtliche Erschließungsflächen organisieren sich rund um drei Hohlräume mit einem durchgängigen Zirkulationssystem, welches Kunden und Besucher durch die Räume leitet.


@ Raitt Liu
Neben einem tunnelartigen Gang mit besonderer Akustik ermöglichen Lufträume vielfältige Blickbeziehungen zwischen den einzelnen Geschossen. Die rohen Betonoberflächen, Säulen und Unterzüge in den Ausstellungsbereichen und Showrooms ergänzen verspiegelte Wände und Decken. Dazu kommen Materialien wie Stein, Holz und Metall, die für spannende Kontraste sorgen, sowie maßgeschneiderte Beleuchtungslösungen.


@ Raitt Liu


@ Raitt Liu
Zum Herzstück des Ladens wird ein großes Atrium mit einem flachen Wasserbecken. Dieses ist nahtlos in den Boden integriert und reflektiert sowohl den Raum als auch seine Nutzer. Über dem Wasser schwebt eine offene Treppe, welche die oberen beiden Etagen miteinander verbindet. Während im zweiten Stock ein Terrazzoboden von der Vergangenheit zeugt, werden unter dem Dach die Holzbalken der Tragstruktur zum besonderen Hingucker.


@ Raitt Liu


@ Raitt Liu
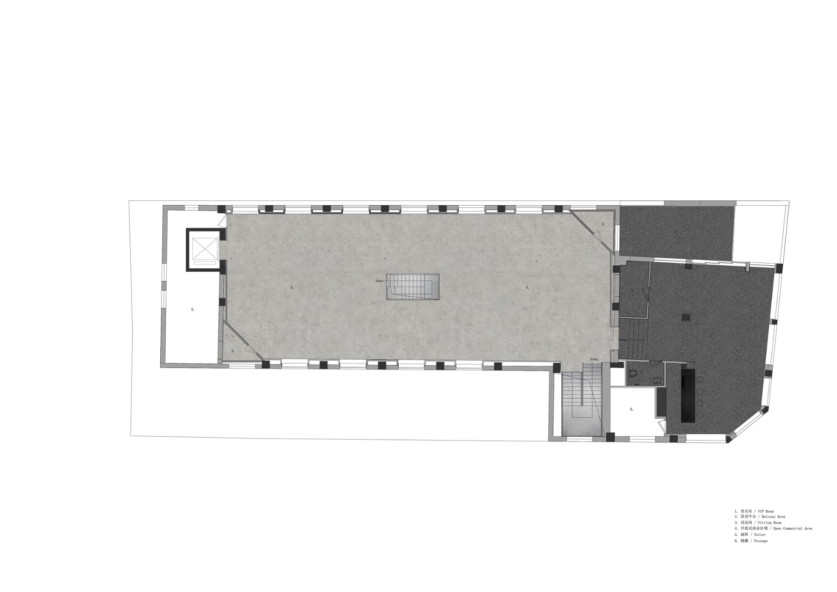
Im Dachgeschoss fungiert ein Mix aus weißen Flächen, Spiegeln und Glas als schlichter Hintergrund für Waren und Exponate. Den Abschluss bildet ein separater VIP-Bereich ganz in Schwarz. Er komplettiert die Verkaufsflächen, die zwischen Alt und Neu zum zeitlosen Shoppingtrip der anderen Art einladen.
Architektur: dongqi Design
Bauherr: Privat
Standort: No.12, Lane 273, Jiaozhou Rd, Shanghai (CN)
Tragwerksplanung: Shanghai Sanyao Structural Consulting & Design






















