Kindertagesstätte im Denkmal
Bâtiment Victoire Tinayre in Genf von Lacroix Chessex Architectes
© Olivier Di Giambattista
Lorem Ipsum: Zwischenüberschrift
Im Genfer Stadtteil Eaux-Vives haben Lacroix Chessex eine ehemalige Fabrikantenvilla zur Kita umgebaut. Vor allem die Öffnung der Kellergewölbe war dabei ein konstruktiver Kraftakt.


© Olivier Di Giambattista
Lorem Ipsum: Zwischenüberschrift
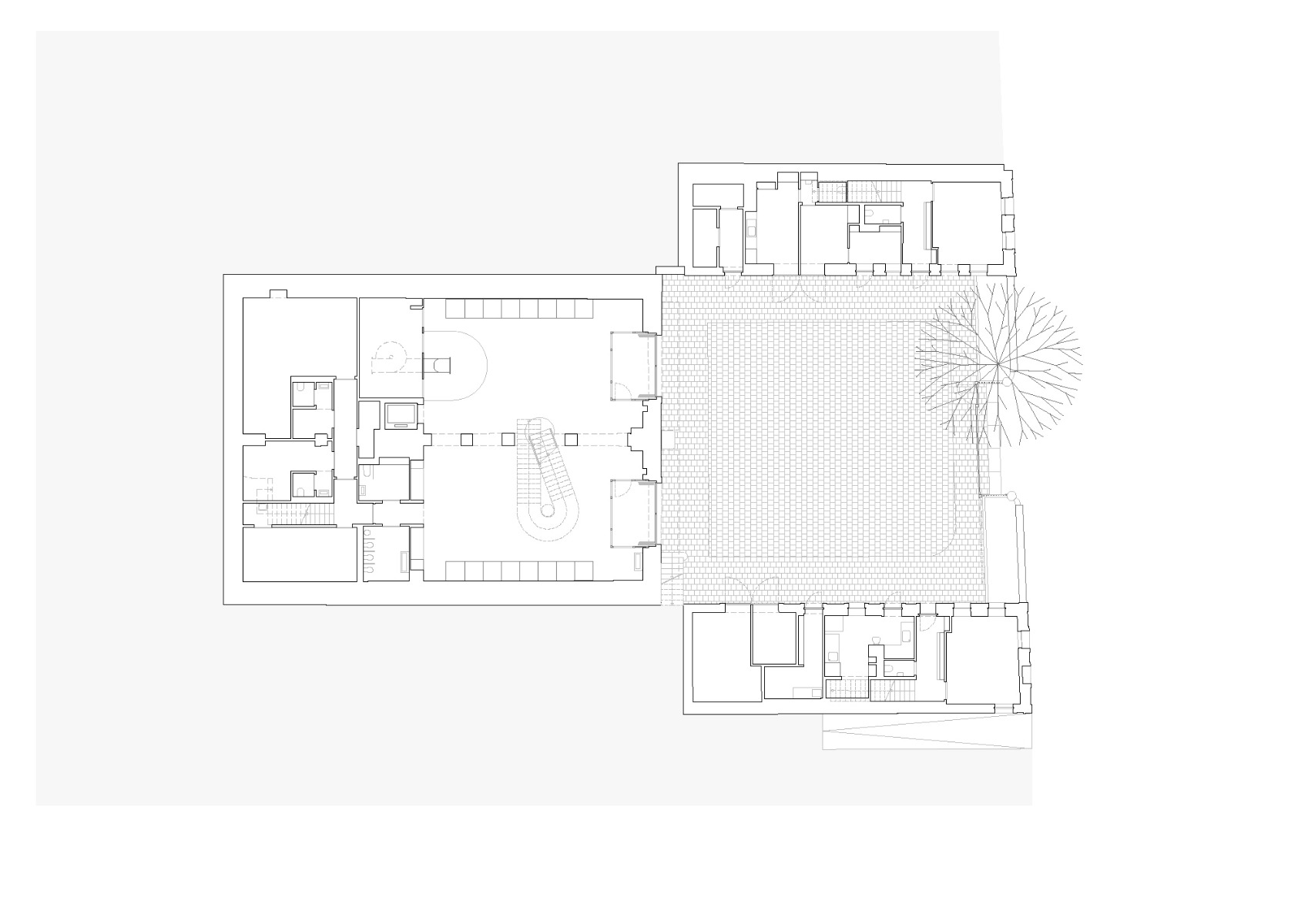
Die stattliche Dreiflügelanlage entstand 1868 im Auftrag des Wermutfabrikanten Jean-Francois Fert; der Architekt war Philippe Ami Goetz. Typologisch passt sie eher zum weiter südlich anschließenden Villenviertel von Eaux-Vives als in die Blockrandbebauung nahe des Genfer Seeufers.
Lorem Ipsum: Zwischenüberschrift
Nach dem Vorbild Pariser „Hôtel particuliers“ ist der Wohntrakt von der Straße zurückgesetzt und flankiert mit zwei Nebengebäuden einen Vorplatz. Aufgrund des nach Süden ansteigenden Terrains gelangt man von dort aus direkt in zwei tonnengewölbte Kellerräume, in denen früher der Wein gelagert wurde. Weiter oben schließen sich drei Wohngeschosse an.


© Olivier Di Giambattista
Lorem Ipsum: Zwischenüberschrift
Seit 1951 gehört das Haus nun der Stadt Genf. Vor dem jetzigen Umbau residierte im Erd- und ersten Obergeschoss ein Bauunternehmen. Die Seitenflügel waren an ein Architekturbüro und an Künstler vermietet. In den beiden Obergeschossen des Hauptgebäudes gibt es vier Wohnungen, die erhalten bleiben sollten.


© Olivier Di Giambattista


© Olivier Di Giambattista
Lorem Ipsum: Zwischenüberschrift
In den restlichen Bereichen sind durch den Umbau von Lacroix Chessex 96 Kitaplätze entstanden, gegliedert nach Altersgruppen: Die Krippenkinder nutzen das erste Obergeschoss des Hauptgebäudes mit direktem Zugang zum Garten auf der Rückseite, die etwas älteren Kinder die beiden Nebentrakte. Das einstige Kellergewölbe strukturierten die Architekten zu einer offenen Spiellandschaft um. Unter einer Zwischendecke im hinteren Bereich befinden sich WCs, Umkleiden und ein Abstellraum für Kinderwagen. Auf der Decke können sich die Kinder austoben, eine Rutsche führt hinunter in den Eingangsbereich.


© Olivier Di Giambattista
Lorem Ipsum: Zwischenüberschrift
Bis dato hatte es keine Verbindung zwischen Gewölbekeller und Obergeschossen im Gebäudeinneren gegeben. Dies galt es nun zu ändern. Aus statischen Gründen und um den Kindergartenbetrieb getrennt von den Wohnungen zu halten, verlängerten die Architekten nicht die bestehende Haupttreppe nach unten, sondern schufen eine separate, zweiläufige Treppenverbindung vom Eingangsbereich in den Obergeschossflur. Dafür mussten sie zunächst die Natursteingewölbe auf der Oberseite mit Stahlbeton verstärken und anschließend einen Durchbruch in den massiven Tonnengewölben schaffen. Die verbleibenden Deckengewölbe im einstigen Weinkeller erhielten einen Akustikputz, um auch dann für Ruhe zu sorgen, wenn es in den Räumen darunter einmal hoch hergeht.
Architektur: Lacroix Chessex Architectes
Bauherr: DPBA - Ville de Genève
Standort: Route de Frontenex 54, 1207 Genève (CH)
Tragwerksplanung: T-Ingénierie
Heizungs- und Lüftungsplanung: Weinmann Energies
Sanitärplanung: Ryser Eco
Elektroplanung: Srg engineering /Scherler
Akustik: Architecture et Acoustique
Bauphysik: Effin’art
Umweltingenieure: B+S Ingénieurs































