Neu gestaltetes Kulturzentrum
Site Verrier de Meisenthal von SO-IL und Freaks
© Iwan Baan
Das New Yorker Büro SO-IL und das Pariser Büro Freaks haben den 2015 ausgeschriebenen Wettbewerb gewonnen und in 2021 eine Glasfabrik aus dem 18. Jahrhundert umgestaltet. Versteckt in der idyllischen Landschaft des Naturparks Nordvogesen liegt die Site Verrier de Meisenthal und ist nun durch ein öffentlich finanziertes, aktives Kulturzentrum ins Rampenlicht gerückt.


© SO-IL, Freaks Arch
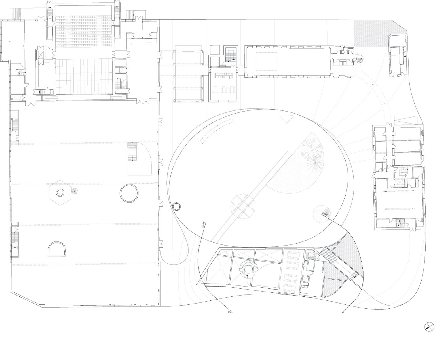
Der ehemalige Produktionsbereich der Glasfabrik wird von drei getrennten, aber miteinander verbundenen Einrichtungen genutzt, die sich beide mit Glasarbeiten befassen.
Das Glasmuseum (Musée du Verre et du cristal) – das die Geschichte des Glases an diesem Standort nachzeichnet; das CIAV (Centre International d'Art Verrier) – ein internationales Zentrum für Glaskunst, in dem traditionelles Handwerkskunst auf zeitgenössische Praktiken trifft; und das Cadhame (Halle verrière) – ein multidisziplinärer Kulturraum, in dem Kunstinstallationen und Konzerte auf verschiedenen Ebenen angesiedelt sind.


© Iwan Baan
Eine wellenförmige Oberfläche aus Ortbeton spielt auf die Glasproduktion an. Sie fungiert als Dach, Decke und Wand, verbindet die Erdgeschosse der Gebäude und rahmt einen öffentlichen Platz ein. Die bestehenden Gebäude stehen unter Denkmalschutz. Daher wurden die Eingriffe auf ein Minimum reduziert und durch Konstruktionen ergänzt, die einen Kontrast zu den alten Backsteinen bilden – wie zum Beispiel die Bürogebäude, die einen der Schornsteine der Fabrik umschließen.


© Iwan Baan
Darüber hinaus werden die Gebäudefunktionen und Versorgungseinrichtungen in den bestehenden Gebäuden neu konzipiert und für umfangreichere Programme erweitert. Zusammen mit der Einrichtung eines Blackbox-Theaters mit 500 Sitzplätzen, dass in ein Theater mit 700 Stehplätzen oder einen Konzertsaal für 3000 Personen umgewandelt werden kann, entsteht auch eine neue Eingangssituation in die Fabrikhalle, die durch ein bislang ungenutztes Kellergeschoss führt. In Verbindung mit den nutzbaren Dachflächen für kleinere Konzerte und Veranstaltungen wird der Aspekt der öffentlichen Beteiligung und der Pluralität des Komplexes noch verstärkt.
Architektur: SO-IL, Freaks Architecture
Bauherr: Communauté de communes du Pays de Bitche
Standort: Meisenthal (FR)
Tragwerksplanung: MHI
Akustik: Peutz
Szenographie: dUCKS
Bauunternehmen: C2Bi



















