Festung auf dem Felsen
Wohnsolitär bei Turin von Archisbang
© Aldo Amoretti
In der piemontesischen Kleinstadt Ivrea am nördlichen Rand der Po-Ebene verwandelte das Architekturbüro Archisbang ein in die Jahre gekommenes Wohnhaus in einen Solitär, der sich verschiedenen Wohnbedürfnissen flexibel anpasst. Die Arbeiten umfassten die energetische Sanierung des Bestands, die strukturelle Umgestaltung der Räumlichkeiten sowie eine substantielle Transformation des äußeren Erscheinungsbilds.


© Aldo Amoretti
Das Planungsteam befreite das bestehende Wohngebäude der 1960er-Jahre von sämtlichen Auskragungen und simplifizierte es auf sein kubisches Volumen. Leichte, mit Kalkmörtel verputzte Zementplatten verdecken die neu installierte Außendämmung. Die großformatigen, quadratischen Öffnungen sorgen für eine großzügige Belichtung der Innenräume. Die Fenster der Südseite eröffnen den Blick auf einen Felsen und inszenieren die Beziehung der Architektur zu ihrem Baugrund.
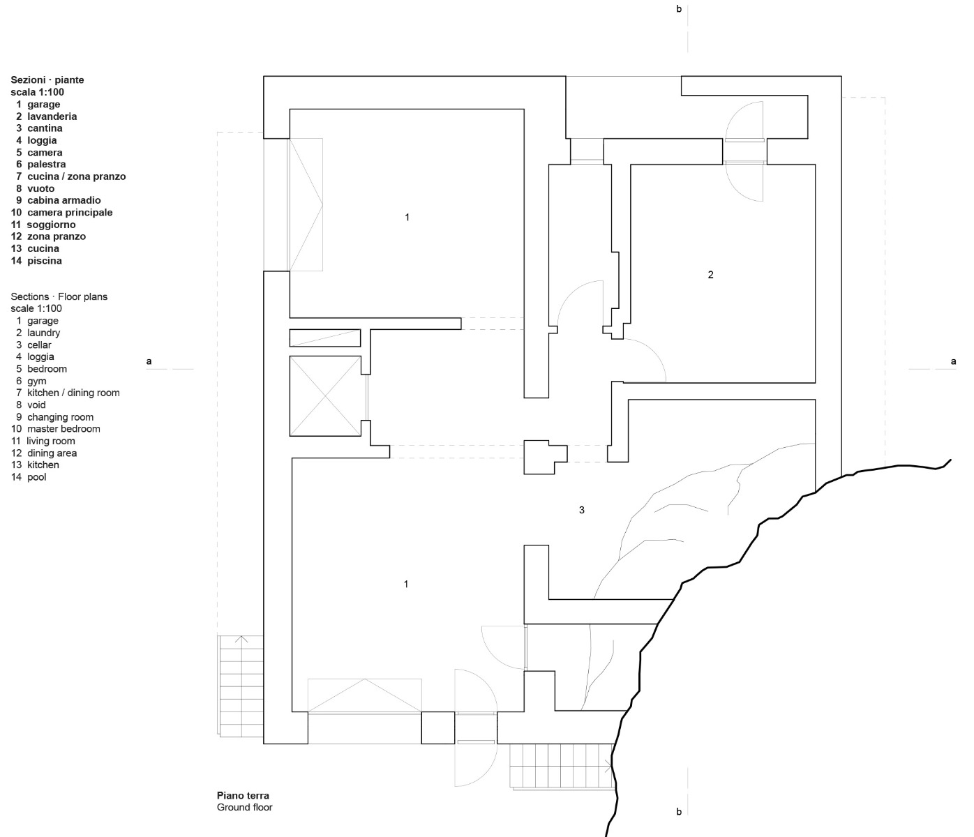
Das Gebäude teilt sich in bis zu drei Wohneinheiten, die über Außentreppen erschlossen werden. Bei Bedarf verbinden das innenliegende Treppenhaus und der Aufzug die Wohnungen miteinander. Mit zwei PKW-Stellplätzen, einer Waschküche und einem Felsenkeller fungiert das Erdgeschoss als Gemeinschaftsbereich.


© Aldo Amoretti
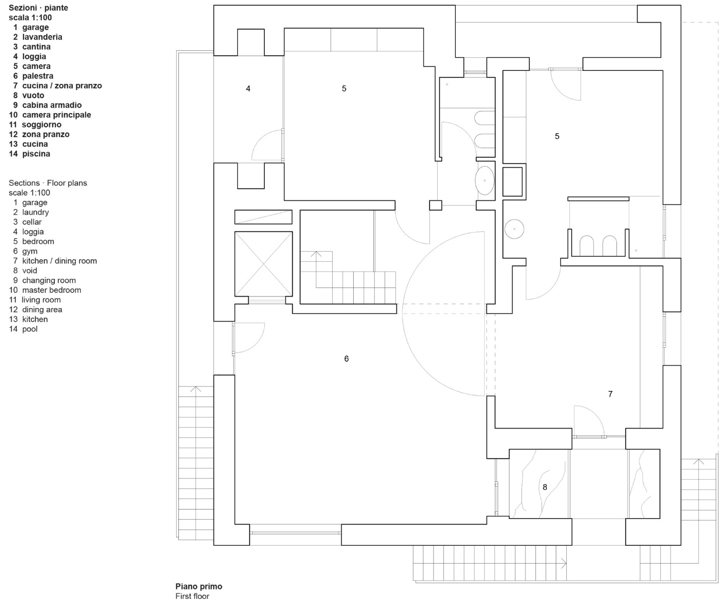
Im ersten Obergeschoss teilen sich zwei kleine Apartments einen Wohnraum. Eine hölzerne Trennwand ermöglicht die flexible Zuordnung des Wohnbereichs zu je einer der Wohnungen oder die Zusammenschließung zu einer geschossgroßen Einheit. Das Hauptapartment nimmt das zweite Obergeschoss und die Dachebene ein.


© Aldo Amoretti


© Aldo Amoretti
In den privaten Bereichen zeigen sich die Wände in Sichtbeton. Der grobe Putz der Außenfassade wiederholt sich an den Innenwänden der gemeinschaftlich genutzten Räume. Die Böden aus geschliffenem Beton werden von Abschnitten aus Parkett unterbrochen. Maßgefertigte Möbel sowie Türen und Fensterrahmen aus Holz mildern die strenge Architektursprache.


© Aldo Amoretti
Eine Besonderheit ist die von Baumwipfeln umgebene Dachterrasse mit Blick auf den Moränenhügel der Serra d’Ivrea am Fuß der Alpen. Sie wird über die große Wohnung im zweiten Obergeschoss erschlossen und verfügt über einen Swimmingpool. Für diese Annehmlichkeit wurden eigens die tragenden Wände verstärkt.
Architektur: Archisbang
Bauherr: privat
Standort: Ivrea (IT)
Tragwerksplanung: Marco Cuccureddu
Bauunternehmen: Perino Costruzioni




























