Newly-designed cultural centre
Site Verrier de Meisenthal by SO-IL and Freaks
© Iwan Baan
In 2015, the New York office SO-IL and the Paris-based studio Freaks won a competition to remodel an 18th-century glass factory. Hidden in the idyllic landscape of the Northern Vosges Natural Park, Site Verrier de Meisenthal has now joined the limelight as a publicly financed active cultural centre.


© SO-IL, Freaks Arch
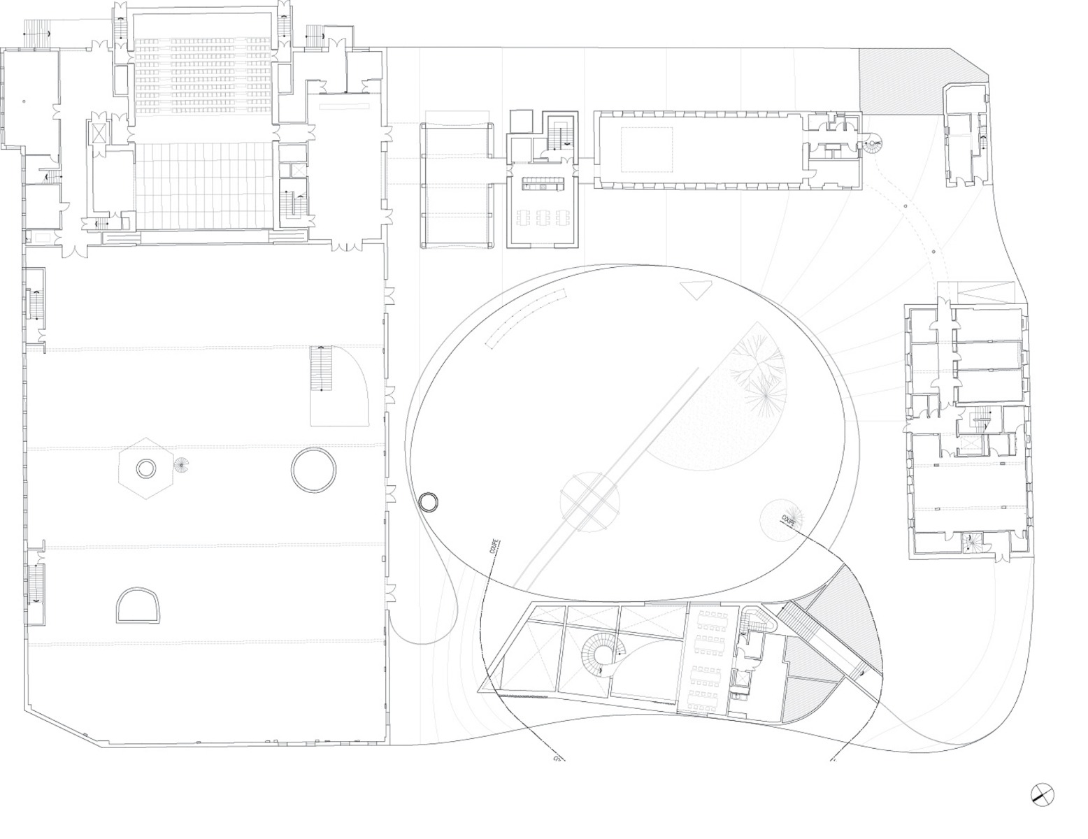
The production premises of the glassworks are used by three separate but interconnected facilities concerned with glass: the Musée du Verre et du cristal glass museum that traces the history of glass at the site, the Centre International d'Art Verrier (CIV), an international glass art centre where traditional craftsmanship meets contemporary practices, and the Cadhame (Halle verrière), a multidisciplinary cultural space for art installations and concerts at varying floor levels.
A site-placed concrete surface given an undulating form in allusion to the production of glass plays the role of roof, ceiling and wall while it also surrounds a public plaza and links the ground floor levels of the buildings.


© Iwan Baan
As the existing buildings are heritage-listed, interventions were kept to a minimum and supplemented with structures that contrast the old brickwork – as in the case of the office building that embraces one of the factory's chimneys.


© Iwan Baan
Moreover, building functions and supply facilities at the existing buildings have been redesigned and enlarged to accommodate more extensive programmes. Along with a 500-seat black box theatre that can be adapted to provide standing room for 700 or turned into a concert hall for an audience of 3000, a new entrance situation for the factory hall now leads through a previously unused basement. In connection with usable roof areas for smaller concerts and events, the aspect of public participation and plurality at the complex has thus been strengthened still further.
Architecture: SO-IL, Freaks Architecture
Client: Communauté de communes du Pays de Bitche
Location: Meisenthal (FR)
Structural engineering: MHI
Acoustics: Peutz
Scenography: dUCKS
Building contractor: C2Bi



















