Nursery school inside a monument
Bâtiment Victoire Tinayre in Geneva by Lacroix Chessex Architectes
© Olivier Di Giambattista
Lorem Ipsum: Zwischenüberschrift
In Geneva’s Eaux-Vives neighbourhood, Lacroix Chessex have transformed an old industrialist’s mansion into a nursery school. The opening of the vaulted cellar was a real tour de force in this project.


© Olivier Di Giambattista
Lorem Ipsum: Zwischenüberschrift
The imposing three-winged complex was created in 1868 on behalf of vermouth producer Jean-François Fert: the architect was Philippe Ami Goetz. Typologically, the mansion fits better into the Eaux-Vives villa district located farther south than into the block-perimeter buildings near the banks of Lake Geneva.
Lorem Ipsum: Zwischenüberschrift
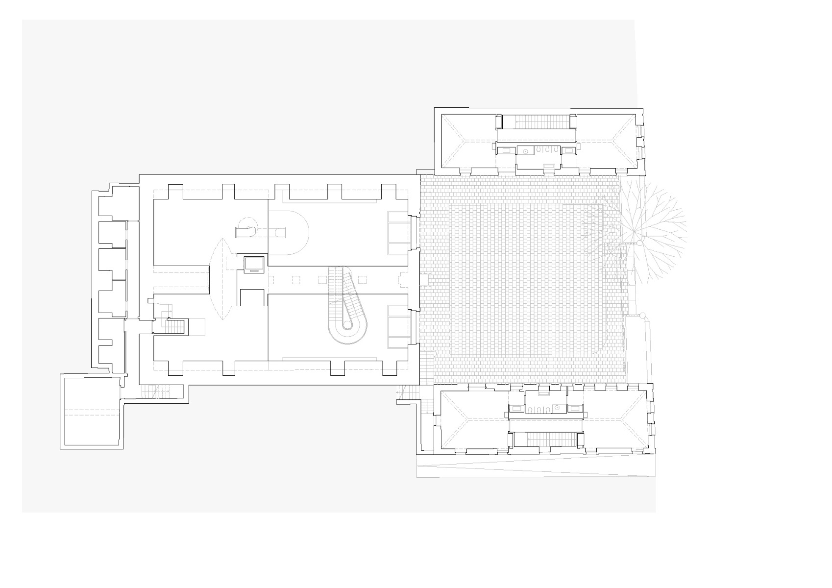
Built according to the model of the Parisian hôtel particulier, the residential wing is set back from the road; its two lateral structures flank a forecourt. Because the terrain rises towards the south, visitors enter directly from the yard into two barrel-vaulted cellar spaces previously used to store wine. The three storeys devoted to living join onto this area farther up.


© Olivier Di Giambattista
Lorem Ipsum: Zwischenüberschrift
The house has belonged to the City of Geneva since 1951. Before the current repurposing project, a construction company occupied the ground floor and first upper level. The side wings were rented to artists and an architecture studio. The two upper storeys of the main building had four apartments, which were to be preserved.


© Olivier Di Giambattista


© Olivier Di Giambattista
Lorem Ipsum: Zwischenüberschrift
In the remaining areas, the transformation by Lacroix Chessex has created 96 nursery-school places divided according to age: infants use the first upper level of the main building, which has direct access to the garden to the rear. Older children use the two side wings. The architects have restructured the old vaulted cellar ceiling as an open play area. The space beneath a false ceiling accommodates toilets, changing rooms and a storage room for buggies. The children can romp on this ceiling, and a slide leads down to the entrance area.


© Olivier Di Giambattista
Lorem Ipsum: Zwischenüberschrift
Until now, the interior of the building had no connection between the vaulted cellar and the upper levels. This has been changed. For reasons of structural stability, and to keep the nursery-school operations separate from the apartments, the architects have not extended the existing main stairway, but have instead created a separate, half-turn staircase linking the entrance to the corridor on the upper level. To this end, they first had to strengthen the natural-stone vault on the upper side with reinforced concrete and then break through the solid barrel vaulting. The remaining ceiling vault in the old wine cellar has been coated with acoustic plaster to ensure quiet when things get rough-and-tumble in the rooms below.
Architecture: Lacroix Chessex Architectes
Client: DPBA - Ville de Genève
Location: Route de Frontenex 54, 1207 Genève (CH)
Structural engineering: T-Ingénierie
Heating and ventilation planning: Weinmann Energies
Sanitary planning: Ryser Eco
Electricity planning: Srg engineering /Scherler
Acoustics: Architecture et Acoustique
Building physics: Effin’art
Environmental engineering: B+S Ingénieurs































