Shopping in a house of mirrors
Retail Space by Dongqi Design in Shanghai
@ Raitt Liu
The unique concept developed by Dongqi Design for a former factory in Shanghai merges past and future to create an unforgettable shopping experience. The industrial past of the building in the heart of the Chinese city was the source of inspiration for the architects in renovating the three-storey edifice in cooperation with Xcommons and transforming it into a shop with the name "XC273".


@ Raitt Liu
For the planning duo, this involved exposing the original structures in all areas and combining them with new elements; sales rooms for products from the fields of lifestyle, fashion and art are the result.
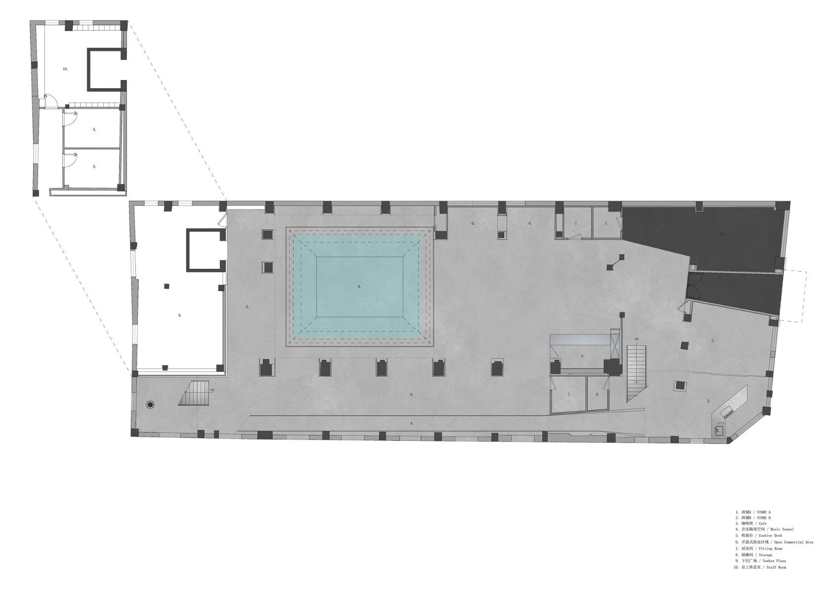
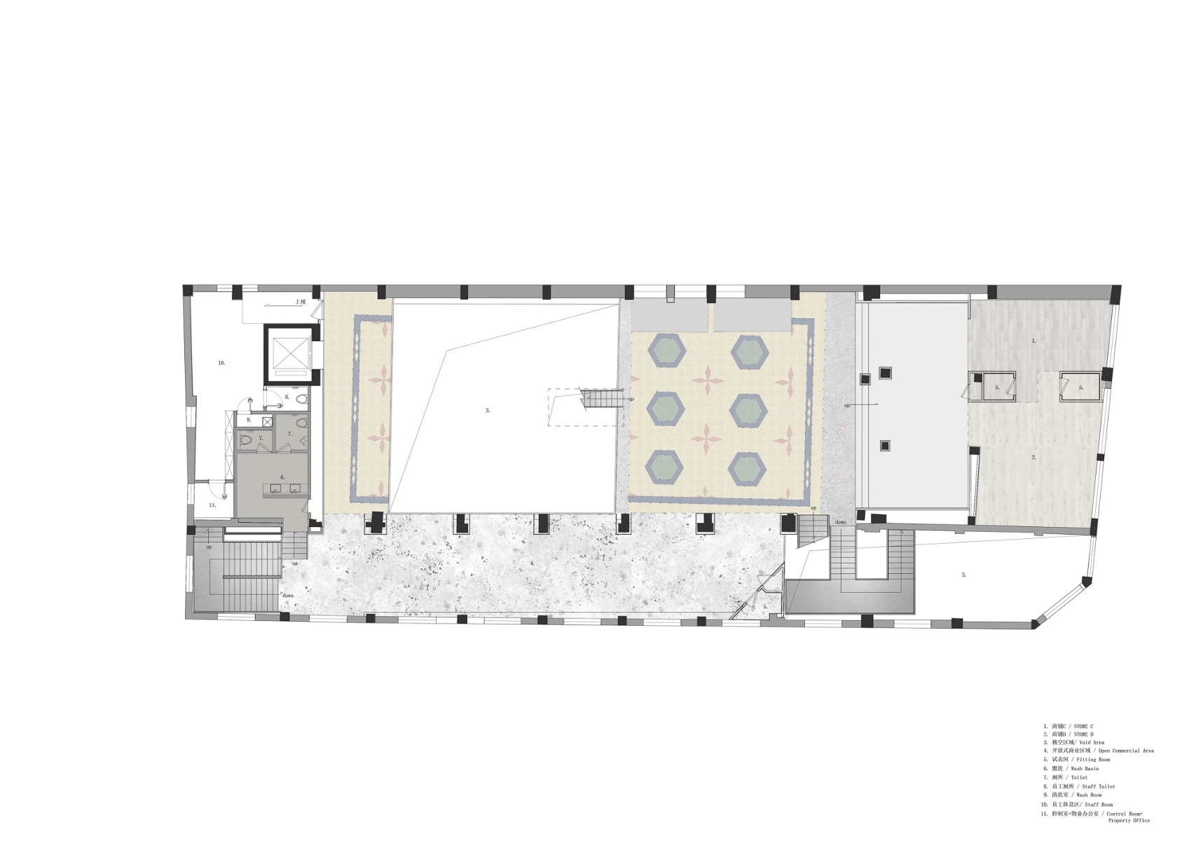
All access areas are organized around three voids in a continuous circulation system that guides customers and visitors through the rooms.


@ Raitt Liu
Along with a tunnel-like passageway with special acoustics, the voids enable varies sightlines between the individual storeys. Raw concrete surfaces, columns and cross beams are complemented by mirrored walls and ceilings in the gallery areas and showrooms. A role is also played by customized lighting solutions and materials such as stone, wood and metal in exciting contrasts.


@ Raitt Liu


@ Raitt Liu
A large atrium with a flat water pool seamlessly integrated into the floor and reflecting both the room and its users is the shop's focal point, whereby an open staircase connecting the two upper storeys seems to float above the water. The terrazzo flooring on the second floor is a testimony to the past; the wooden rafters under the roof provide a special eye-catcher.


@ Raitt Liu


@ Raitt Liu
In the attic, a mix of white surfaces, mirrors and glass provides a plain backdrop for merchandise and other items. A separate VIP area completely in black is the final feature, rounding off sales spaces offering a timeless and singular retail experience between old and new.
Architecture: dongqi Design
Client: Privat
Location: No.12, Lane 273, Jiaozhou Rd, Shanghai (CN)
Structural engineering: Shanghai Sanyao Structural Consulting & Design






















