Kompakte Raumschachtelung
Deutsche Schule in Brooklyn von Studio Parallel
Deutsche Schule in Brooklyn, © Bernadett Pava
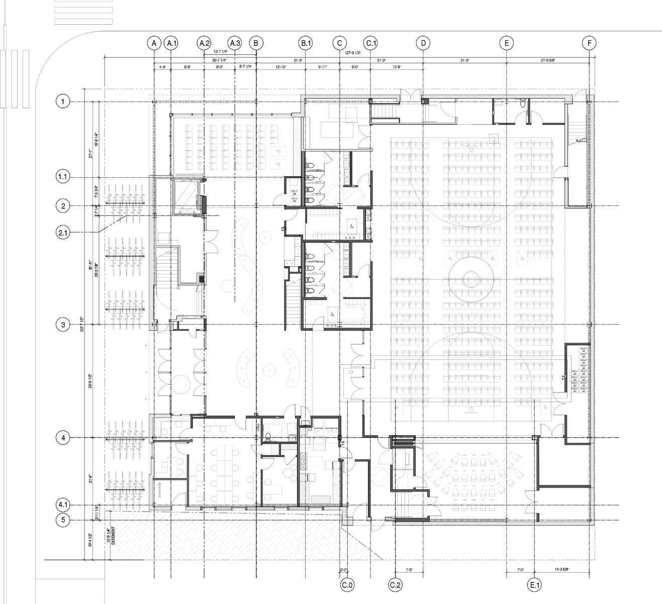
Viele Nutzungen auf kleiner Fläche unterzubringen hatte Studio Parallel bei New Yorks erster deutsch-englischer Schule im Stadtteil Brooklyn. Die beiden Fassadenfarben ziehen sich als Orientierungshilfe durch das ganze Haus. Die Deutsche Schule Brooklyn ist für rund 440 Schüler und Schülerinnen vom Kindergartenalter bis zum 12. Schuljahr konzipiert, die ihre Schullaufbahn üblicherweise mit einem internationalen Abitur abschließen.


Im Innenraum sind die tragenden Stahlträger und -stützen, die vorgefertigten Betonplatten und die Haustechnik sichtbar. © Bernadett Pava
Maximale Ausnutzung
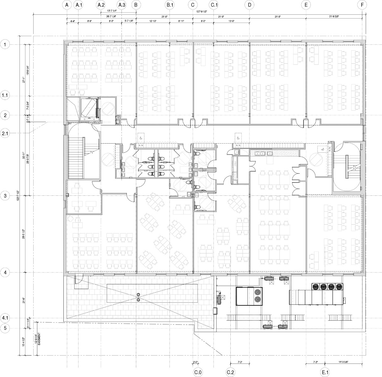
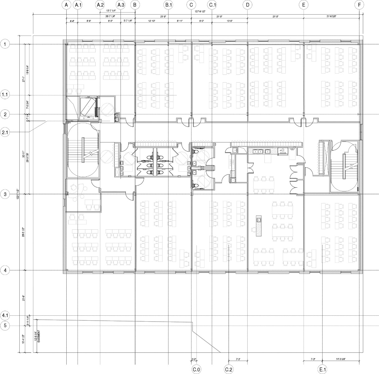
Das begrenzte Baubudget und das vorgegebene Raumprogramm erforderten die maximale Ausnutzung der bebaubaren Fläche. Der resultierende kubische Baukörper wurde anschließend verformt, um vielfältige Innen- und Außenräume zu schaffen, das Bauvolumen weiter zu komprimieren und visuelles Interesse zu erzeugen.
Multifunktionale Räume
Praktisch alle Räume sind auf eine Mehrfachnutzung ausgelegt: Die Turnhalle im Erdgeschoss ist als Aula nutzbar, ihre Bühne lässt sich als Musikzimmer abtrennen, das Multimedia-Klassenzimmer ist auch ein Präsentationsraum, die Bibliothek im ersten Geschoss dient bei Bedarf auch als Pausenzone und Besprechungsbereich, das Dach wird zu einem Spiel- und Sportplatz, die Lobby im Erdgeschoss zum Aufenthaltsraum mit Café und der Kunstraum zu einem Maker Space.


Der Spiel- und Sportplatz befindet sich auf dem Dach. © Bernadett Pava
Stahlträger, Betonfertigteile und markante Akzentfarben
In den Innenräumen ließen die Architekten die tragenden Stahlträger und -stützen, die vorgefertigten Betonplatten und die Haustechnik sichtbar. Einen Kontrast zum weißen Raumhintergrund bilden zwei Akzentfarben, die sich durch das ganze Haus ziehen: Die blaue Grundfarbe der Fassade wiederholt sich als Akzentfarbe in der Turnhalle, während sich die gelbe Akzentfarbe der Gebäudehülle durch die Lobby, das vierstöckige Haupttreppenhaus und die Bibliothek im ersten Obergeschoss zieht.


Akzentfarben ziehen sich durch die gesamte Innenraumgestaltung. © Bernadett Pava
In ähnlicher Weise verwendeten die Architekten in den Fluren und Klassenzimmern Akzentfarben, um die Stockwerke zu differenzieren und die Orientierung zu erleichtern.
Architektur: Studio Parallel Architecture + Design
Bauherr: Deutsche Schule Brooklyn
Standort: 760 Sterling Place, Brooklyn NY 11216 (US)
Bauunternehmen: Newgrange Construction
Bruttofläche: 3600 m²
Kosten: 18 Mio. $

























