Compact nested spaces
German School in Brooklyn by Studio Parallel
German School in Brooklyn, © Bernadett Pava
The two colours on the facade run through the entire building as an aid to orientation at the German School Brooklyn, conceived to serve approximately 440 pupils from kindergarten level to 12th grade completed with the International Baccalaureate.


© Bernadett Pava
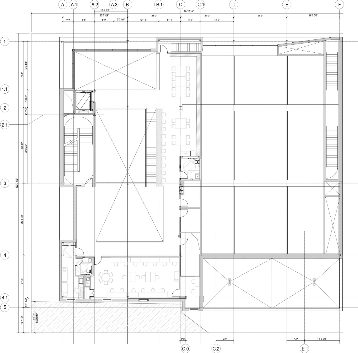
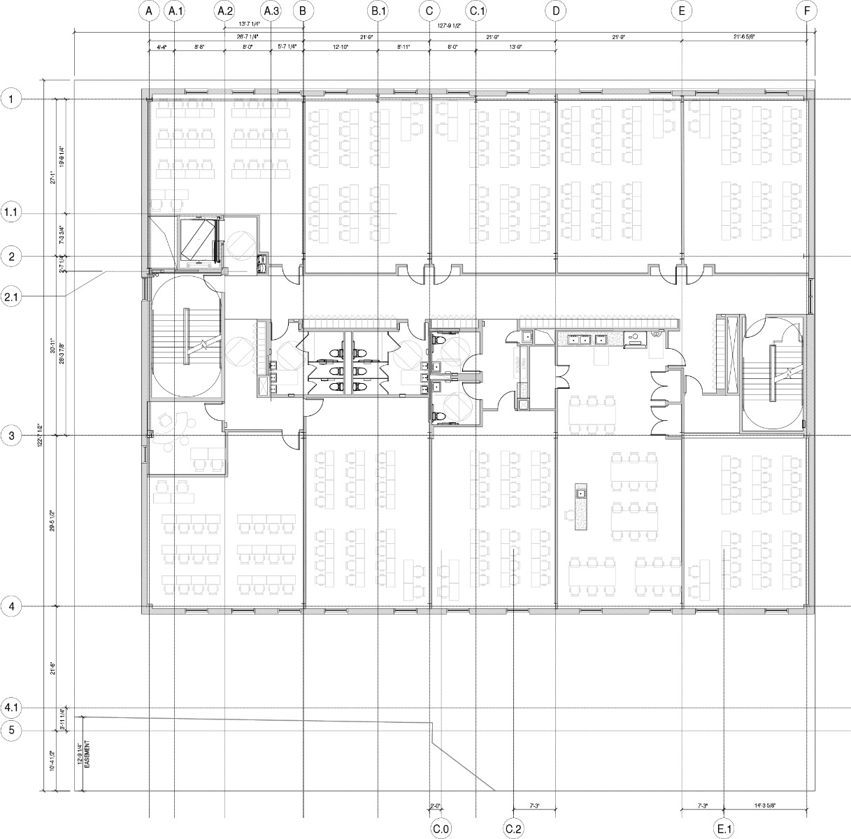
The tight budget and the specified room programme made it necessary to put the buildable area to maximum use. The resulting cuboid structure was then modified in shape to further compress the volume and add visual interest.
Multi-purpose rooms
Practically all the rooms are designed for various purposes. For example, while the gymnasium on the ground floor can also be used as an assembly room, its stage can be partitioned off to create a music room, plus the multimedia classroom is suitable for presentations and the library on the first floor can serve as a break zone and meeting space when required. Moreover, the rooftop offers a schoolyard and playing field, the lobby on the ground floor does double duty as a lounge with café and the art room can be used as a maker space.


© Bernadett Pava
Steel girders, precast concrete parts and striking accent colours
The architects left the load-bearing steel girders and columns, precast concrete parts and service installations visible in the interior. Two accent colours running through the entire building form a contrast to the predominant white of the indoor spaces. The blue basic colour of the facade is used for accentuation in the gym, while the yellow accent colour on the exterior extends through the lobby, the four-storey main staircase and the library on the first floor.


© Bernadett Pava
To differentiate the storeys and facilitate orientation, the architects deployed accent colours in similar fashion in the corridors and classrooms.
Architecture: Studio Parallel Architecture + Design
Client: Deutsche Schule Brooklyn
Location: 760 Sterling Place, Brooklyn NY 11216 (US)
Contractor: Newgrange Construction
Gross area: 3600 m²
Costs: 18 Mio. $

























