Bullaugenblick in die Natur
Doppelhaus in Starnberg von Buero Wagner
Nur eine kleine, grasbewachsene Vorgartenzone trennt die beiden Häuser in Starnberg von der Straße. © Kim Fohmann
Das Siedlungsgebiet am nordwestlichen Rand von Starnberg, in dem die beiden Häuser stehen, stammt bereits aus den 1950er-Jahren. Die Parzellen hier sind großzügig, die Bebauung locker, aber die Bausubstanz oft in die Jahre gekommen. Vor einigen Jahren startete die Gemeinde ein Projekt zur Nachverdichtung in dem Gebiet, das aber später wieder aufgegeben wurde. Das Häuserpaar, welche das Buero Wagner aus München für drei Generationen derselben Familie errichtet haben, nutzt den vorhandenen Grund und Boden dennoch weit effizienter als sein Vorgängerbau. Dieser stand mitten auf dem Grundstück und war in einem schlechten Zustand, weshalb die Architekten beschlossen, ihn rückzubauen. Die beiden neuen Häuser trennt hingegen nur einen kleine Vorgartenzone von der Straße. Zwei Garagen verbinden sie im Erdgeschoss zu einem baulichen Kontinuum.


Im Erdgeschoss öffnet sich ein Raumkontinuum, das durch Höhenversprünge in mehrere Abschnitte zoniert wird. © Kim Fohmann
Außen dunkles Holz, innen viel Sichtbeton
Auch sonst haben die Häuser viel gemeinsam: die verkohlte Holzhülle etwa oder die markanten Bullaugenfenster, die aus den Obergeschossen einen Blick in die Baumwipfel ermöglichen. Beide haben die gleiche, 90 m² große Grundfläche, sind unterkellert und haben zwei oberirdische Geschosse. Hinzu kommt die Materialpalette der Innenräume: Keller und das teils ins Erdreich eingegrabene Erdgeschoss bestehen aus Sichtbeton, das Obergeschoss wurde aus Massivholz gefertigt und zeigt dies im Inneren auch.


Im Erdgeschoss dominieren sandgestrahlter Sichtbeton und roher Stahl. © Kim Fohmann


Im Obergeschoss dominieren hingegen weiß gestrichene Holzwände.© Kim Fohmann
Durchgehender Großraum im Erdgeschoss
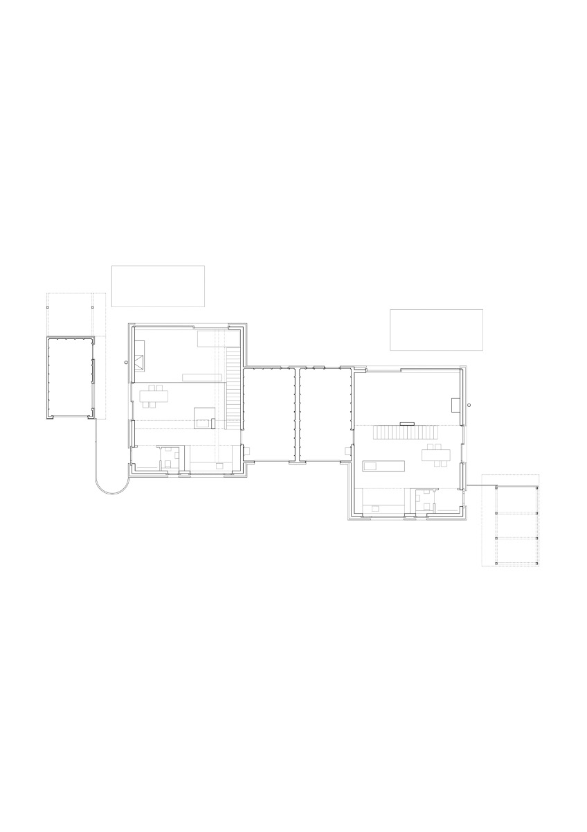
Im Erdgeschoss öffnet sich in jedem Haus ein Raumkontinuum, aus dem lediglich ein eingestellter Kubus mit den Sanitärräumen ausgespart ist. Leichte Höhenversprünge zonieren den Raum in eine offene Küche an der Straße und einen Wohnbereich auf der Gartenseite. Wände und Decken sind aus sandgestrahltem Sichtbeton gefertigt, die Küchenarbeitsplatte im Haus des Vaters an der einzigen, zentralen Betonstütze befestigt. Trittstufen und Einbaumöbel bestehen aus Eiche, der größte Teil des Fußbodens dagegen aus monolithischem Sichtbeton ohne Fußbodenaufbau. Die Treppenstufen und den Kamin ließen die Architekten aus rohem, geöltem Stahl anfertigen. Eine Luftwärmepumpe in Kombination mit einer Photovoltaikanlage und einer Betonkernaktivierung versorgt die beiden Häuser mit Wärme.
Architektur: Buero Wagner
Bauherr: privat
Standort: Starnberg (DE)
Tragwerksplanung: Ingenieurbüro für Baustatik und Konstruktion Karl Wagner
Landschaftsarchitektur: Landschaftsarchitektur Meyer-Fey
TGA-Planung: Gipser Haustechnik
Energieplanung: E2WO



















