Durch das Außenzimmer in den Garten: Kindergarten von Bernardo Bader
Foto: Adolf Bereuter
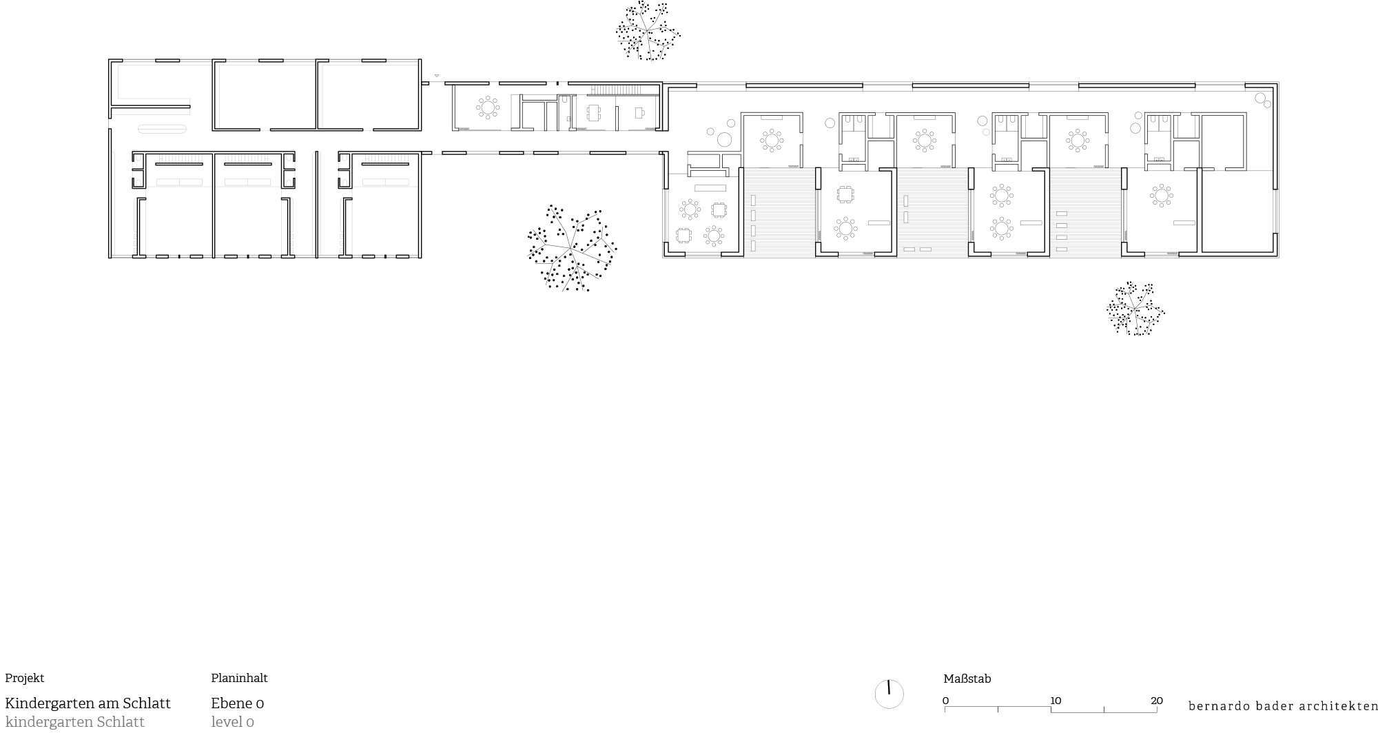
Geschosshohe Fenster und eine in kräftigem Rot gestrichene Fassade bestimmen das Erscheinungsbild des zweigeschossigen Holzbaus, der vor gut dreißig Jahren nach Plänen von Burkhalter Sumi Architekten in der Vorarlberger Gemeinde Lustenau eröffnet wurde. Letztes Jahr im September bezogen drei neue Gruppen den Kindergarten mit der Erweiterung von Bernardo Bader. Ebenfalls ein Holzbau, die Fassade jedoch mit Brettern aus sichtbelassender Weißtanne verschalt, knüpft der Anbau in eigenständiger Manier an prägende architektonische Elemente und die Raumstruktur des Bestands an. Der eingeschossige Neubau führt die Nordflucht des Bestands fort und dockt im Osten an den Eingangsbereich an. Im Foyer laden liegende Fenster mit tiefen Nischen die Kinder zum Sitzen ein und lenken den Blick der Kleinen nach draußen in den Hof, der neu zwischen den beiden Gebäudeteilen entstanden ist. Die administrativen Räume befinden sich an der Nordseite des Korridors, der nach Osten verspringt und sich zu einem großzügigen Spielflur erweitert.
Die Raumfolge der Aufenthaltsräume, die nach Süden ausgerichtet sind, beginnt mit dem Essraum und endet mit einem Bewegungsraum. Dazwischen reihen sich die Bereiche der drei neuen Einheiten. Jedes Gruppen- und Ausweichzimmer öffnet sich über Schiebetüren zu einem zusätzlichen Spiel- und Wohnbereich mit Matschgarderobe und eigenen Toiletten, dem sogenannten Außenzimmer. Sie werden von jeder Gruppe individuell genutzt und bilden einen Übergang zum gemeinschaftlich genutzten Spielbereich im Garten. Nach Süden und zum Himmel sind diese Räume offen, bei Bedarf spendet ein Sonnensegel Schatten. Mit einer Raumhöhe von 4,50 m sind die Aufenthaltsräume deutlich höher als im Bestand.
Zusammen mit den sichtbar gelassenen Deckenbalken aus heimischen Hölzern erhalten die Räume atelierartigen Charakter. Die Oberflächen der Wand- und Deckenverkleidungen und die Möbel sind aus unbehandelter Weißtanne. Mit Farbe sind die Planer zurückhaltend umgegangen. Bis auf das Rot der Fensterrahmen, die die Außenfarbe des Bestandbaus aufnehmen, finden sich im Neubau hauptsächlich Naturtöne wieder. Geheizt wird das Gebäude mit Erdwärme, eine Photovoltaikanlage liefert den Strom. Auf den begrünten Dächern findet sich die Erde des Aushubs wieder. So konnten Geld und Transportwege gespart werden.
Weitere Informationen:
Zimmerei: Kaspar Greber, Bezau




















