Feuerfestes Wohnen im Raster
Einfamilienhaus aus Beton von Mork-Ulnes Architects
© Bruce Damonte
Lorem Ipsum: Zwischenüberschrift
Mork-Ulnes Architects realisieren mit dem Frame House ein Einfamilienhaus in Kalifornien. Nachdem Waldbrände das Zuhause der Bauherren-Familie zerstörten, soll das neue Haus künftigen Katastrophen standhalten. Das kalifornisch-norwegische Büro hatte für den Auftraggeber 2016 ein Gästehaus aus Beton realisiert. Anders als das Haupthaus blieb dieses bei dem Feuer, welches ein Jahr später in der Kleinstadt Sonoma an der US-Westküste wütete, weitgehend unbeschadet.


© Bruce Damonte
Lorem Ipsum: Zwischenüberschrift
Im Zuge dessen wünschte sich die Familie ein an die potenziellen Gefahren angepasstes Heim und beauftragte die Architekten erneut. Diese entwickelten mit Fokus auf Brandschutz-Kriterien ein dreidimensionales Raster aus Beton.
Lorem Ipsum: Zwischenüberschrift
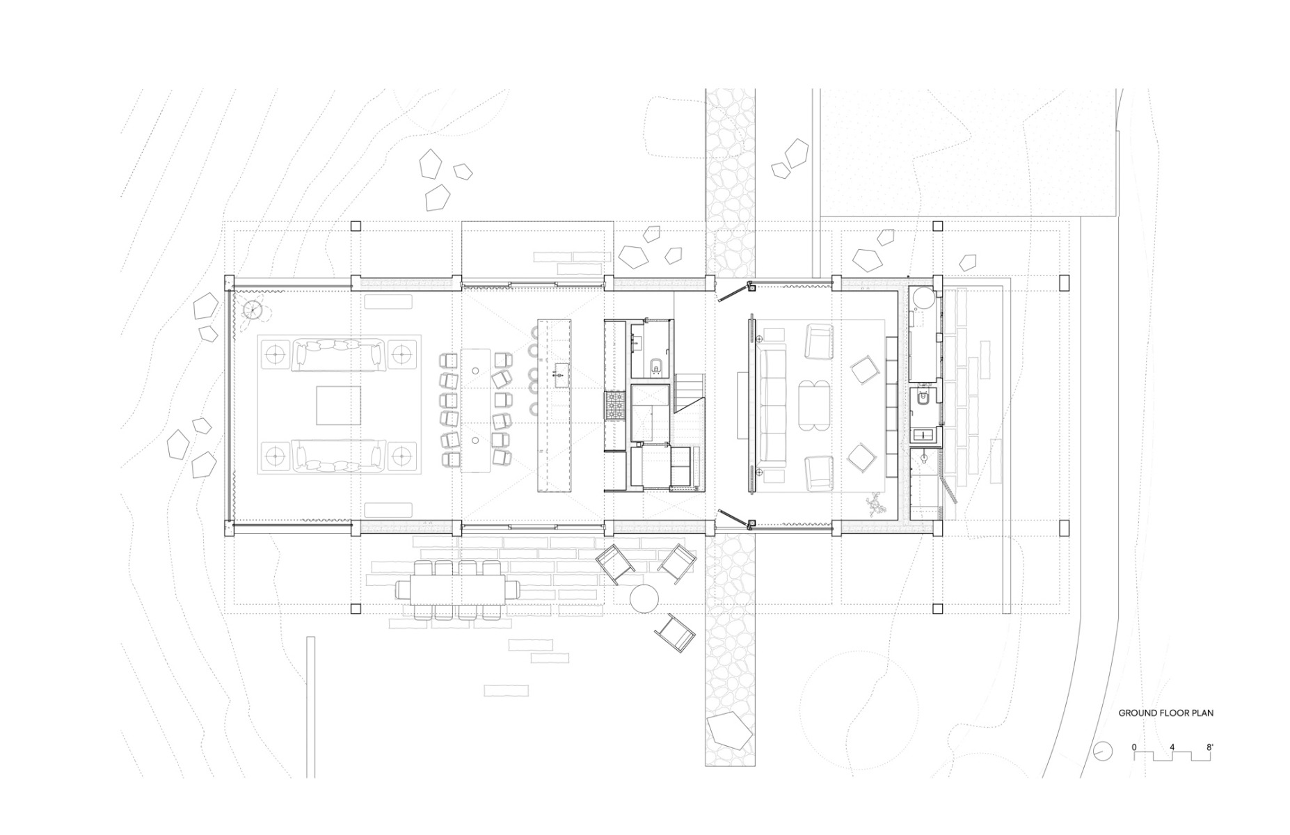
Auf zwei Geschossen spannen mächtige Rahmen Innen- und Außenräume auf und bilden das konstruktive und gestalterische Rückgrat des Entwurfs. Die einzelnen Module orientieren sich mit variierenden Breiten an den Funktionen und sind entweder mit Holz oder Glas gefüllt.


© Bruce Damonte
Lorem Ipsum: Zwischenüberschrift
Im Obergeschoss kragt die Gitterstruktur an drei Seiten weit über den Sockel aus. Sie spannt schattige Außenbereiche auf und erweitert die großzügigen Wohnräume nach draußen zum Garten und Pool hin mit Blick über das Sonoma Valley. In der oberen Etage ordnen sich die privaten Schlafbereiche rund um einen mittigen Korridor an. Jedes Zimmer öffnet sich nach draußen, wo loggienartige Balkone den Bau in Längsrichtung flankieren. Ein zentraler Hohlraum verbindet beide Stockwerke und lässt das 370 m²-Einfamilienhaus noch großzügiger wirken.


© Bruce Damonte
Lorem Ipsum: Zwischenüberschrift
Die Gebäudehülle besteht mit Beton, Zement und Metall aus feuerfesten Materialien. Um den Bau trotzdem behutsam in die Umgebung einzufügen, sind die Fassaden in Zedernholz ausgeführt. Im Inneren prägen Einbauten und Verkleidungen aus Holz das Bild und sorgen für Wärme und Wohnlichkeit.


© Bruce Damonte
Lorem Ipsum: Zwischenüberschrift
Für das energetische System kombiniert das Planerteam passive und aktive Maßnahmen: Während Auskragungen und Vorsprünge das Frame House vor Überhitzung schützen, sichert Querlüftung ein angenehmes Raumklima. Photovoltaik-Paneele decken den Energiebedarf des Hauses und speisen die Sprinkleranlage, die das Haus im Notfall schützen soll. Auch hinsichtlich der Wasserversorgung ist der Bau mit Brunnen und Kläranlage völlig autark.
Architektur: Mork-Ulnes Architects
Bauherr: Privat
Standort: Sonoma County (US)
Tragwerksplanung: ZFA Structural Engineers
Landschaftsarchitektur: Surfacedesign
Lichtplanung: Tucci Lighting
Generalunternehmen: Nordby Signature Homes
Bauingenieur: Adobe Associates
Geotechnik: RGH Consultants
Innenarchitektur: The Office of Charles De Lisle




















