Radikale Reduktion
The Day After House in Madrid von Takk Architecture
© José Hevia
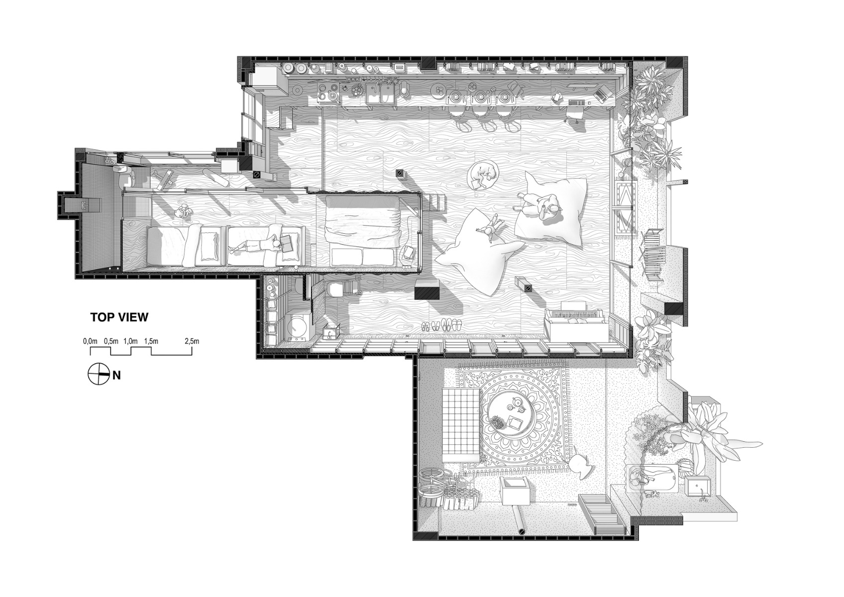
In Madrid verwandeln die Architekten Mireia Luzárraga und Alejandro Muiño von Takk Architecture die 110 m² große Eigentumswohnung einer dreiköpfigen Familie in ein Apartment mit Passivhaus-Standard. Dabei behandelt das Architekten-Team die einzelnen Räume des Apartments wie die Schichten einer Zwiebel. So kann die Funktion der Zimmer optimal auf die klimatischen und ökologischen Besonderheiten der Räume abgestimmt werden.


© José Hevia
Das Zentrum der Wohnung ist nach diesem Prinzip am besten isoliert und benötigt nur wenig Energie. Hier ist ein Gemeinschaftsraum für bis zu vier Personen eingerichtet, der überwiegend zum Schlafen genutzt wird. Um den Schlafplatz herum ist eine offene Küche mit einer 75 cm hohen Arbeitsplatte angesiedelt, sodass die Familie diesen Bereich individuell als Essbereich und Arbeitsbereich nutzen kann.
Gemeinsam bilden diese Räumlichkeiten die 60 m² große Winterwohnung der Familie. Die Architekten wählen für Decken und Wände zwei Materialien, die eine hohe Dämmleistung aufweisen: Holz und Naturkork. Zusätzlich sorgt ein neuer Holzofen für Wärme an besonders kalten Tagen.


© José Hevia
Die restlichen 50 m² sind als große Innenterasse angelegt und bilden das Sommerhaus. Hier entfernen die Architekten die Isolierung an den Wänden, Decken und Böden und verwenden stattdessen Zementmörtel. Bei besonders warmen Temperaturen lassen sich Regalwände und Glastüren öffnen. Pflanzen sorgen für frisches Klima.


© José Hevia


© José Hevia
Das Bad befindet sich in der Nähe der Fassade an einem gut beleuchteten und belüfteten Platz. Ein dünner Vorhang trennt den Bereich von den restlichen Räumlichkeiten ab.
Architektur: TAKK Architecture / Mireia Luzárraga + Alejandro Muiño
Standort: Madrid (ES)
Maurerarbeiten: Cristian Olazar Reformas
Holzschreinerei: Gabriel Roda-Bettone
Isolierung: Barna-Kork
Elektrizität: Jung
Beleuchtung: Legrand
























