Umbau und Erweiterung
Einfamilienhaus B-L von Graux & Baeyens
© Jeroen Verrecht
In Destelbergen bei Gent hat der Architekt Basile Graux ein Einfamilienhaus aus den 1960er-Jahren für sich und seine Familie umgebaut und erweitert. Zwar passte der in die Jahre gekommene Bungalow weder von der Größe noch vom Stil zu den Vorstellungen der Bauherren, doch begeisterten sie sich für das schöne, weitläufige Gartengrundstück, das geschützt in zweiter Reihe liegt und direkt an einen Schlosspark mit altem Baumbestand grenzt.


© Jeroen Verrecht
Erweiterung Richtung Garten
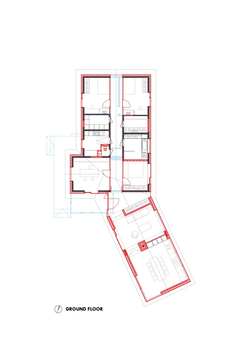
Um das gewünschte Raumprogramm unterzubringen, hat der Architekt dem eingeschossigen Massivbau einen schräg stehenden Anbau hinzugefügt, der den Bestand in Richtung Garten erweitert. Sein Grundgedanke war dabei, den Altbau wegen seiner eher niedrigen Decken und kleinen Fenstern zum Schlafen zu nutzen und in dem neuen Annex einen hellen, großzügigen Wohnbereich zu schaffen.
Dies gelingt zum einen durch großformatige Fenster und eine optimale Ausrichtung zur Sonne; zum anderen ermöglichen der offene Dachraum und das dem leicht abfallenden Gelände folgende Bodenniveau im Neubauteil eine größere Raumhöhe.


© Jeroen Verrecht
Einheitliche Verkleidung
Äußerlich wollte der Architekt einen Kontrast zwischen Alt und Neu vermeiden. Daher sind beide Gebäudeteile einheitlich mit einer dunklen Holzschalung verkleidet. Auch das Satteldach geht mit einer neuen Deckung nahtlos in den Neubau über. Lediglich der Mauerwerkssockel des Bestandsbaus aus Mauerwerk bleibt für das geschulte Auge als schmaler Streifen sichtbar. Er setzt sich in dem Anbau als Betonsockel fort und zeigt sich innen als spielerisches Gestaltungselement: Im Wohnzimmer wird er als Sitzgelegenheit genutzt, in der Küche als Arbeitsfläche.


© Jeroen Verrecht


© Jeroen Verrecht
95 % erhaltene Bausubstanz
Obwohl kaum mehr erkennbar, blieb die alte Bausubstanz zu 95 % erhalten. Lediglich einige Innenwände wurden modifiziert, um im Schlaftrakt einen klaren Grundriss mit Mittelflur zu erhalten. Sperrholz dient als großflächiges Verkleidungsmaterial der Flurwände, taucht aber auch an den verschiedenen Einbaumöbeln von Küche, Bad und Wohnzimmer wieder auf.


© Jeroen Verrecht
Zusammen mit hellgrauen Terrazzoböden, Lehmputz und Holzfenstern verleihen die hölzernen Oberflächen den Innenräumen einen wohnlichen Charakter, ohne aufdringlich zu wirken.
Architektur: Graux & Baeyens Architecten
Bauherr: privat
Standort: Destelbergen (BE)





















