Fließende Übergänge
Einfamilienhaus bei Tokio
© ATELIER VINCENT HECHT 2021
Lorem Ipsum: Zwischenüberschrift
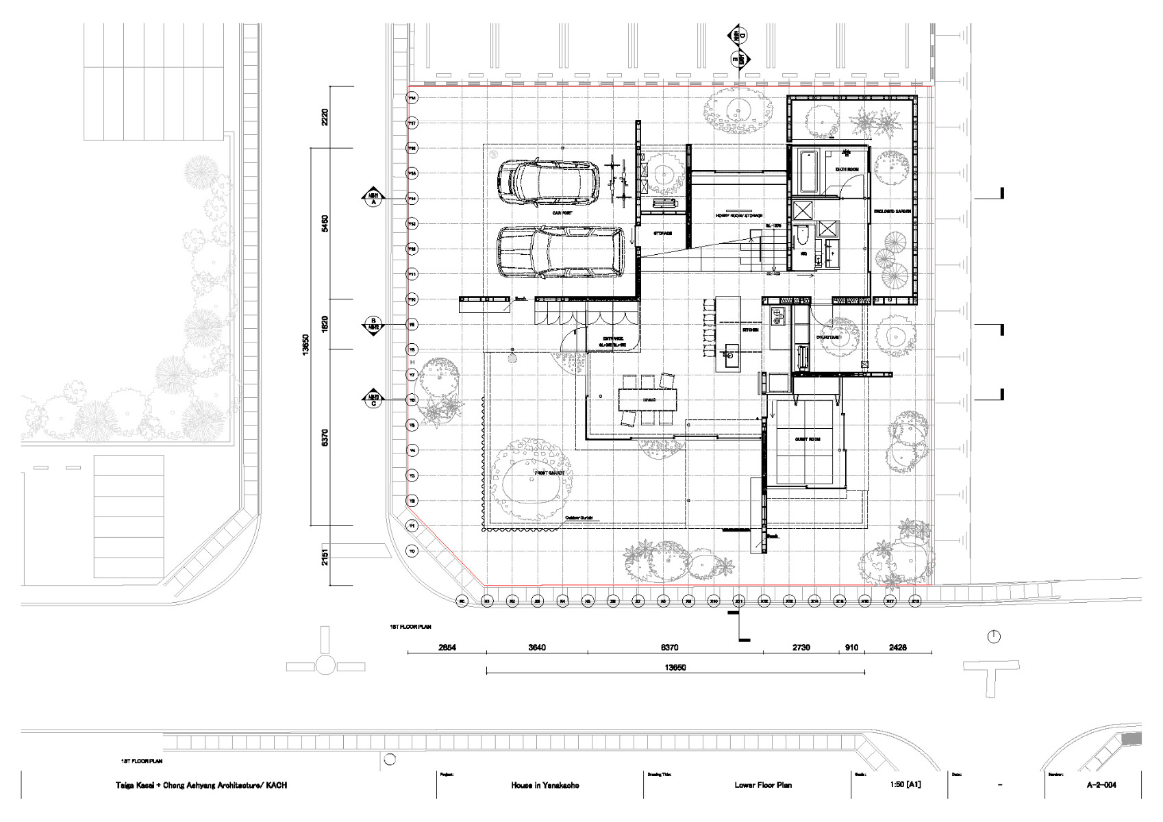
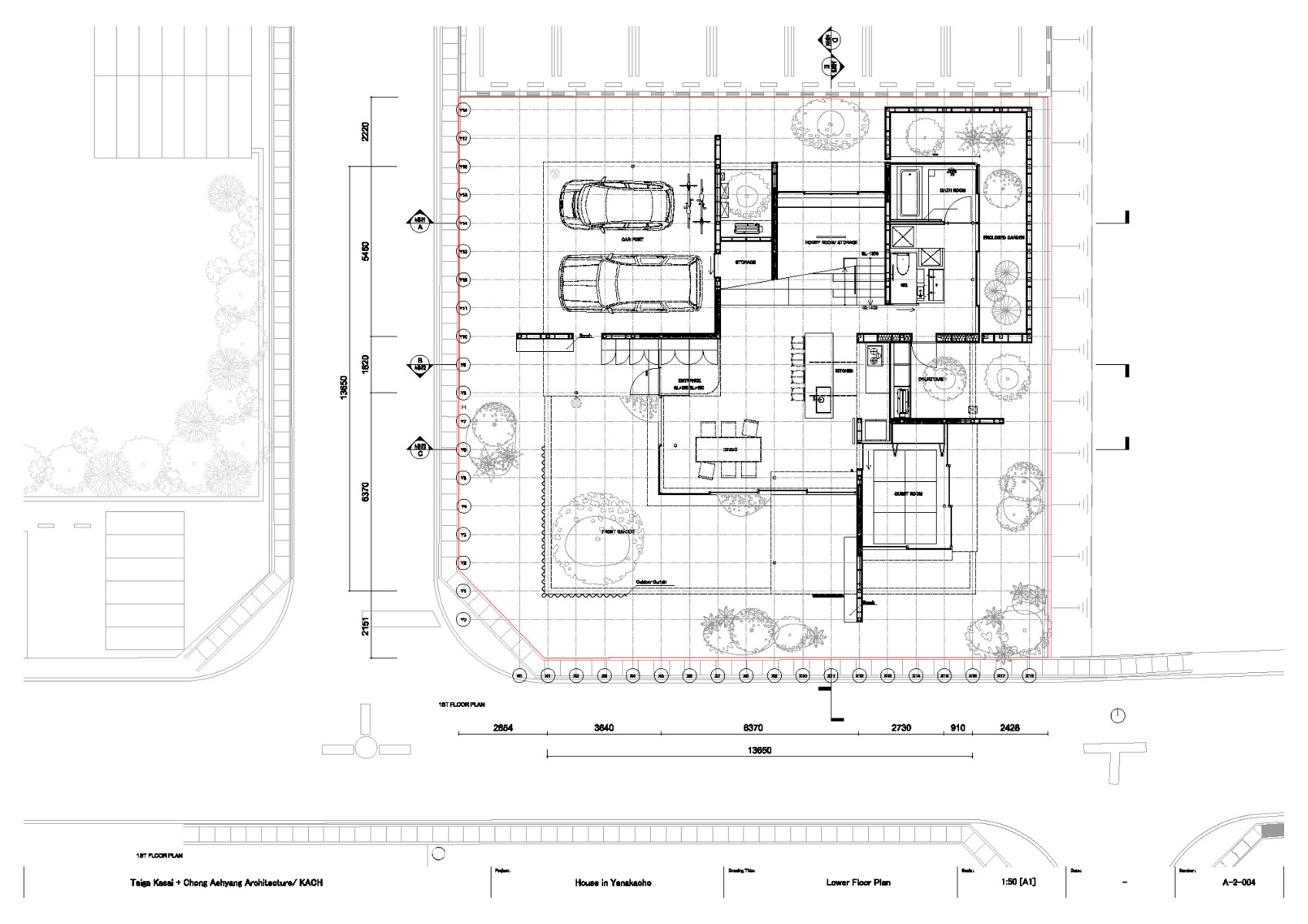
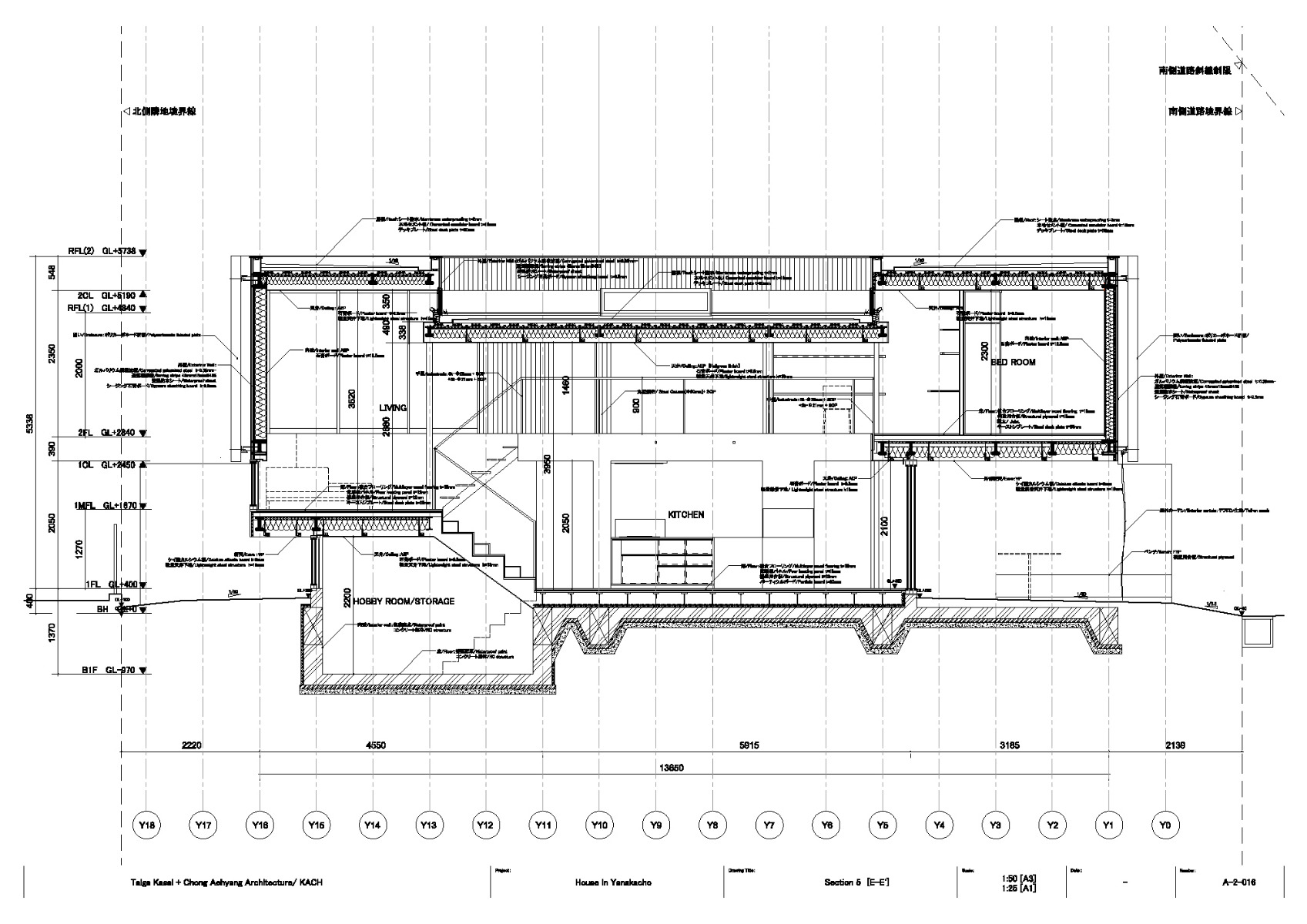
Die Gebäudehülle dieses Wohnhauses für eine vierköpfige Familie rund 100 km nordöstlich von Tokio – geplant von Taiga Kasai + Chong Aehyang Architecture / Kach – umschließt die Innenräume mit zwei fließend ineinander übergehenden Schichten. Die äußere Schicht besteht aus 3,3 m hohen transluzenten Polycarbonat-Elementen, die in ihrer Form an Trapezbleche erinnern. Sie bilden einen umlaufenden Rahmen aus, der in 2,5 m Höhe zu schweben scheint und zugleich integraler Bestandteil des Gebäudetragwerks ist.


© ATELIER VINCENT HECHT 2021
Lorem Ipsum: Zwischenüberschrift
Die lebhaft vor- und rückspringende innere Gebäudehülle ist großflächig verglast und begrenzt einen offenen Innenraum, der sich über zwei Geschosse erstreckt. Hier in der Gebäudemitte befindet sich die Gemeinschaftsfläche des Koch- und Essbereichs.
Lorem Ipsum: Zwischenüberschrift
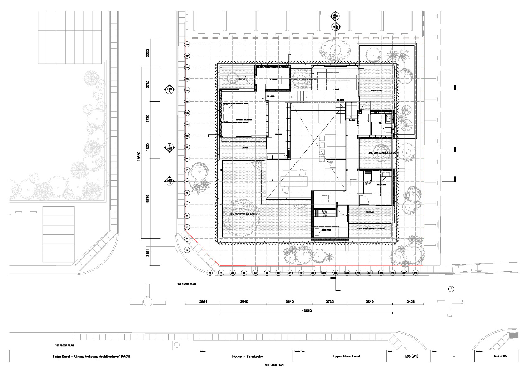
Die Verbindung zum Obergeschoss übernimmt eine breite Sitzstufentreppe, an deren oberem Ende ein offener Wohnbereich mit Bibliothek liegt. Von hier führt der Weg über eine U-förmige Galerie zu den Kinder- und Schlafzimmern. Sowohl der Wohnraum als auch die in Richtung der Straße jeweils geschlossenen Rückzugsbereiche sind für Passanten nicht direkt einsehbar.


© ATELIER VINCENT HECHT 2021
Lorem Ipsum: Zwischenüberschrift
Gebäudehülle und Wohnräume erscheinen in einer einheitlichen, reduzierten Materialsprache, die Innen und Außen miteinander verbindet. Prägend sind vor allem grau verputzte Wände, verzinktes Stahlblech, weiße Polycarbonat-Elemente, Fußböden, Fenster und Möbel aus Holz sowie weiß beschichtete Stahlbauteile.


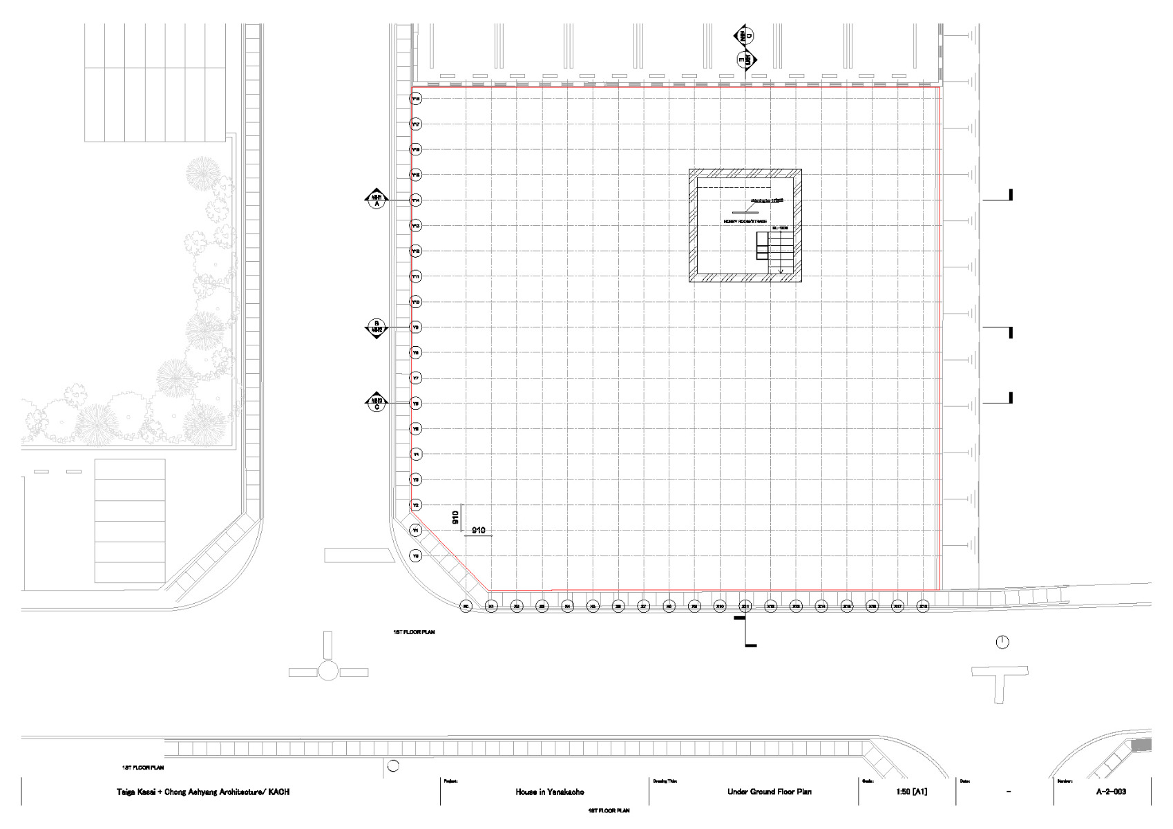
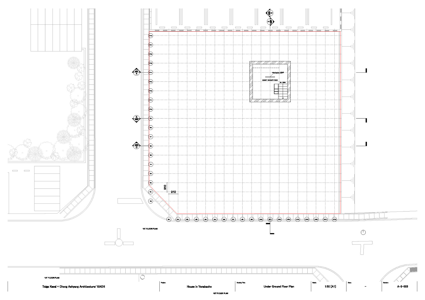
© Taiga Kasai + Chong Aehyang Architecture/ KACH
Lorem Ipsum: Zwischenüberschrift
Die Stahlbauteile sind im Außenbereich dunkler gehalten als im Innenraum, um diesen strahlender erscheinen zu lassen. Das Gebäudeinnere ist von denselben fließenden Übergängen gekennzeichnet wie die Gebäudehülle, sodass ein architektonisch stimmiges Raumkunstwerk entsteht.
Mehr dazu in Detail 12.2022 und in unserer Datenbank Detail Inspiration.
Architektur: Taiga Kasai + Chong Aehyang Architecture/ KACH
Bauherr: Privat
Standort: 370-1203/ Takasaki, Gunma (JP)
Tragwerksplanung: Yuko Mihara, Graph Studio
Bauleitung: Yasumatsu Takken
Textildesign: Himuro Design Studio




















