Der Name ist Programm
Enigma Museum für Kommunikation in Kopenhagen
Enigma – Museum für Kommunikation, © Giovanni Emilio Galanello
Das Enigma – Museum für Post, Telekommunikation und Kommunikation in Kopenhagen hat seine Türen nach einem Umzug wieder für Publikum geöffnet. Als neuer Ausstellungsort könnte das ehemalige Postgebäude aus königlichen Zeiten nicht besser zu den Inhalten des Museums passen. In prominenter Lage informiert Enigma auf vielseitige Weise über die Geschichte der Kommunikationstechnologien bis hin zur heutigen Zeit.


In prominenter Lage informiert Enigma über die Geschichte der Kommunikationstechnologien bis hin zur heutigen Zeit. © Adam Grønne
Umgestaltung
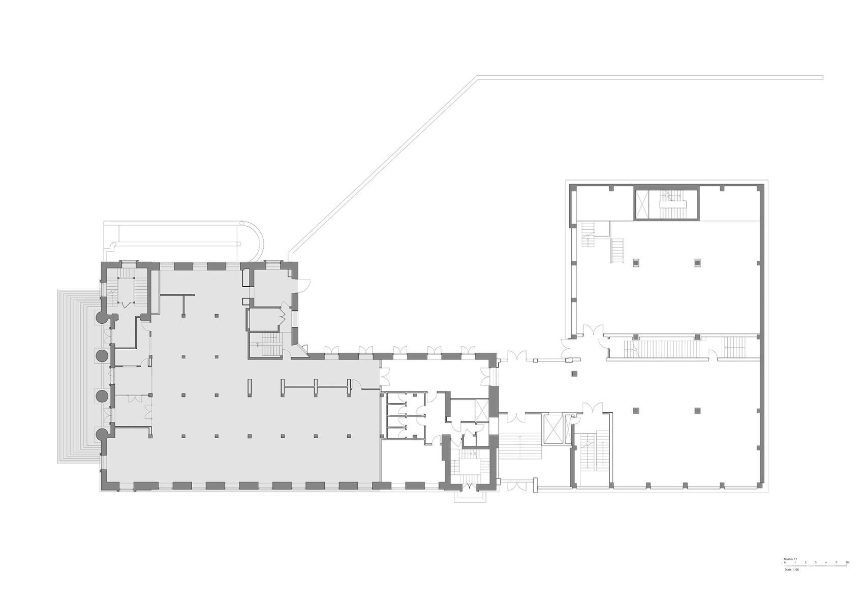
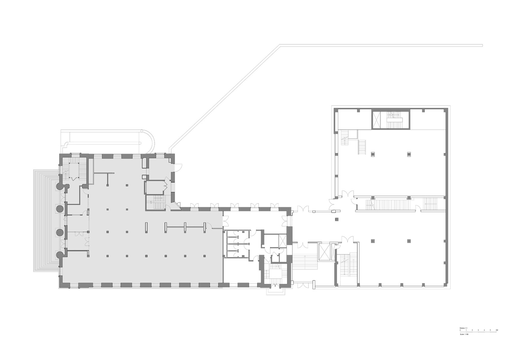
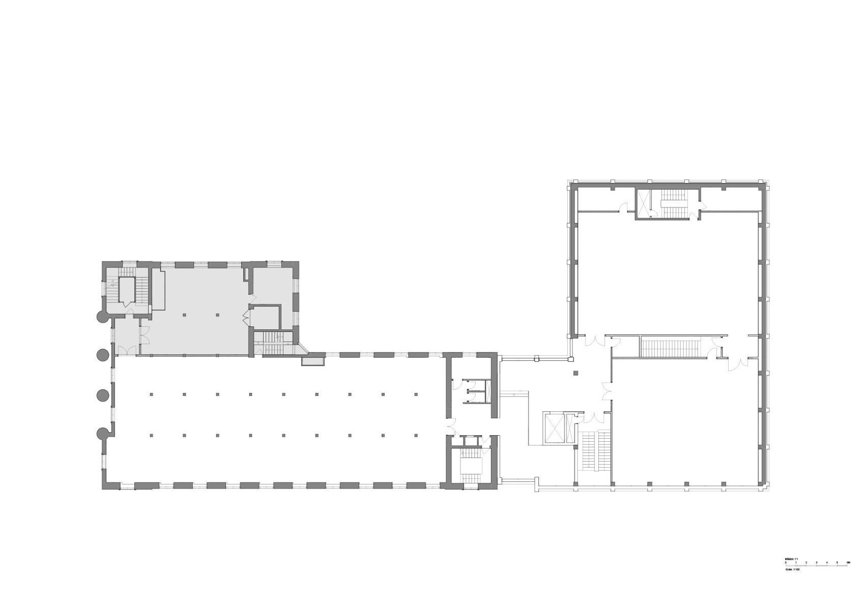
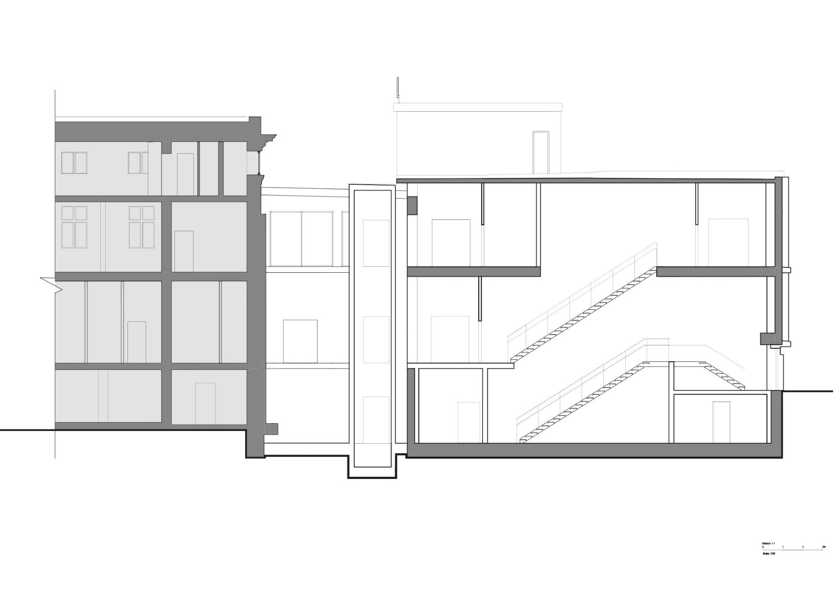
Das Postgebäude wurde im Jahr 1922 von dem königlichen Bauinspektor entworfen. Nun haben Zeso Architects den Bestand respektvoll wiederbelebt. Das Hauptgebäude ist renoviert, das etwa 50 Jahre ältere Nebengebäude mit einer neuen Fassade versehen worden. Die Umbaumaßnahmen haben größere Ausstellungsflächen für das tägliche Museumsgeschehen geschaffen. Darüber hinaus sind zusätzliche Räume für interaktive Gruppenaktivitäten entstanden.
Kommunikation in der Krise
Die von Atelier Brückner kuratierten aktuellen Ausstellungen betrachten die Entwicklung der Kommunikationsmittel. Im Hauptgebäude werden die Ursprünge der Kommunikation mit der gegenwärtigen Massenkommunikation in Verbindung gestellt. Besonders veranschaulicht wird hier die beschleunigte Entwicklung der Technologien in Krisenzeiten. Ausgewählte historische Technologien gliedern die abgedunkelten Ausstellungsräume. Eines der Schlüsselobjekte ist die Enigma-Maschine, der das Museum auch seinen Namen verdankt.


Ausstellung „Kommunikation in Krisenzeiten“, © Giovanni Emilio Galanello
Geschichte der Kommunikation
Das lichtdurchflutete Nebengebäude bildet einen Kontrast zum abgedunkelten Hauptgebäude. Mit „Ideen, die uns verbinden“ wurde ein Archiv zur Kommunikations- und Mediengeschichte geschaffen. Raumumlaufend werden in modularen Regalen die Themen Post, Telegrafie, Telefon, Funk, Radio, Fernsehen, Mobiltelefon und Internet präsentiert. Von der Gründung des dänischen Postdienstes im Jahr 1624 bis hin zu dem modernen Einsatz von Starlink-Satelliten in aktuellen Kriegsgeschehen, ist das Archiv in chronologischer Reihenfolge geordnet.


Ausstellung „Ideen, die uns verbinden“, © Giovanni Emilio Galanello
Flexibel wie unser heutiges Leben
Atelier Brückner entwickelt ein flexibles Ausstellungssystem, das in Inhalt und Gestaltung auf die Schnelllebigkeit der Kommunikationsmittel reagieren kann. Entlang der Decke erstreckt sich eine Gitterstruktur, die die Ausstellungen über mehrere Räume miteinander verbindet. Hängende Interpretationstafeln können flexibel eingesetzt werden. Zusätzlich bieten Vitrinen die Möglichkeit, Objekte und Artefakte beliebig auszutauschen. Szenografisch unterstützt ein modulares Beschriftungssystem die regelmäßige Aktualisierung der Inhalte.


Ausstellung „Kommunikation in Krisenzeiten“, © Giovanni Emilio Galanello
Interaktive Gestaltung
Um die Ausstellungsthemen greifbarer zu machen, sind digitale Stationen in den Ausstellungsräumen inszeniert. Besucher können hier ihre eigenen Einschätzungen zu spezifischen Fragestellungen, etwa wie lange ein Hacker braucht, um das vorher eingegebene Passwort zu entschlüsseln, abgeben. Die Antworten werden gesammelt und an einem LED-Ring in den Raum ausgestrahlt.
Architektur: Zeso Architects
Ausstellungsgestaltung: Atelier Brückner
Ausstellungsort: Øster Allé 3, Kopenhagen (DK)
Öffnungszeiten: Montag bis Sonntag, 10–17 Uhr
Weitere Informationen: enigma.dk





























