The name says it all
Enigma Museum of Communication in Copenhagen
Enigma – Museum of Communication, © Giovanni Emilio Galanello
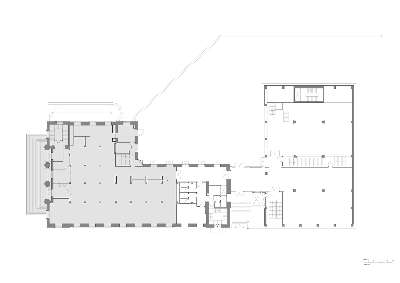
The Enigma – Museum for Post, Telecommunications and Communications, which is located in Copenhagen, has reopened its doors to the public after moving. The former post-office building from imperial times could hardly be a better choice for the content of the museum. Situated in a prominent location, Enigma uses many narrative forms to tell the story of communications technology up to the modern era.


© Adam Grønne
Redesign
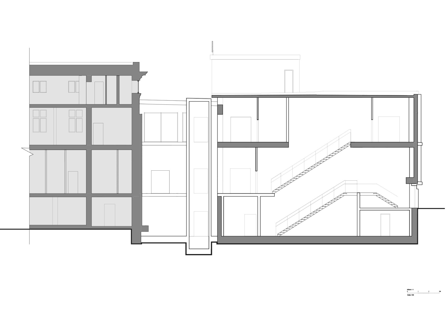
The post-office building was designed in 1922 by the Royal Building Inspector. Zeso Architects have now respectfully resurrected the existing structure. The main building has been renovated; its neighbour, which is around 50 years older, has been graced with a new facade. The renovation has created larger exhibition spaces for the museum’s daily activities. Moreover, additional spaces for interactive group events are now available as well.
Communication in times of crisis
The current exhibitions, which are curated by Atelier Brückner, examine the development of means of communication. In the main building, the origins of communication are connected with contemporary mass communication. The accelerated development of technology in times of crisis is a particular subject of focus here. Selected historical technologies structure the darkened exhibition spaces. One of the key exhibits is the Enigma machine: the museum’s namesake.


© Giovanni Emilio Galanello
History of communication
The light-flooded ancillary building forms a contrast to the darkened main structure. The Ideas that Connect Usproject has created an archive of the history of communication and the media. Pieces set on the modular shelving that lines the room presents the topics of postal services, telegraphy, telephony, broadcasting, radio, television, mobile telephones and the internet. From the establishment of the Danish postal system in 1624 to the modern use of Starlink satellites in today’s war zones, the archive is arranged chronologically.


© Giovanni Emilio Galanello
As flexible as life today
Atelier Brückner have developed a flexible exhibition system that can respond to the fast-paced nature of communication with respect to both content and design. Along the ceiling, a grid structure connects the exhibitions over several spaces. Hanging interpretation panels can be shown as needed. Furthermore, display cases make it possible to switch out objects and artefacts. A modular labelling system supports staging with regular updates to content.


© Giovanni Emilio Galanello
Interactive design
In order to make the museum subjects easier to grasp, digital stations have been set up in the exhibition rooms. Visitors can submit their own assessments of specific questions, such as how long a hacker would take to crack a password that has been typed in. The responses are compiled and then projected into the room with an LED ring.
Architecture: Zeso Architects
Exhibition design: Atelier Brückner
Exhibition venue: Øster Allé 3, Kopenhagen (DK)
Opening hours : Montag bis Sonntag, 10–17 Uhr
Further Information: enigma.dk





























