Essen im Oval: Restaurant Papi in Paris
Foto: Simone Bossi
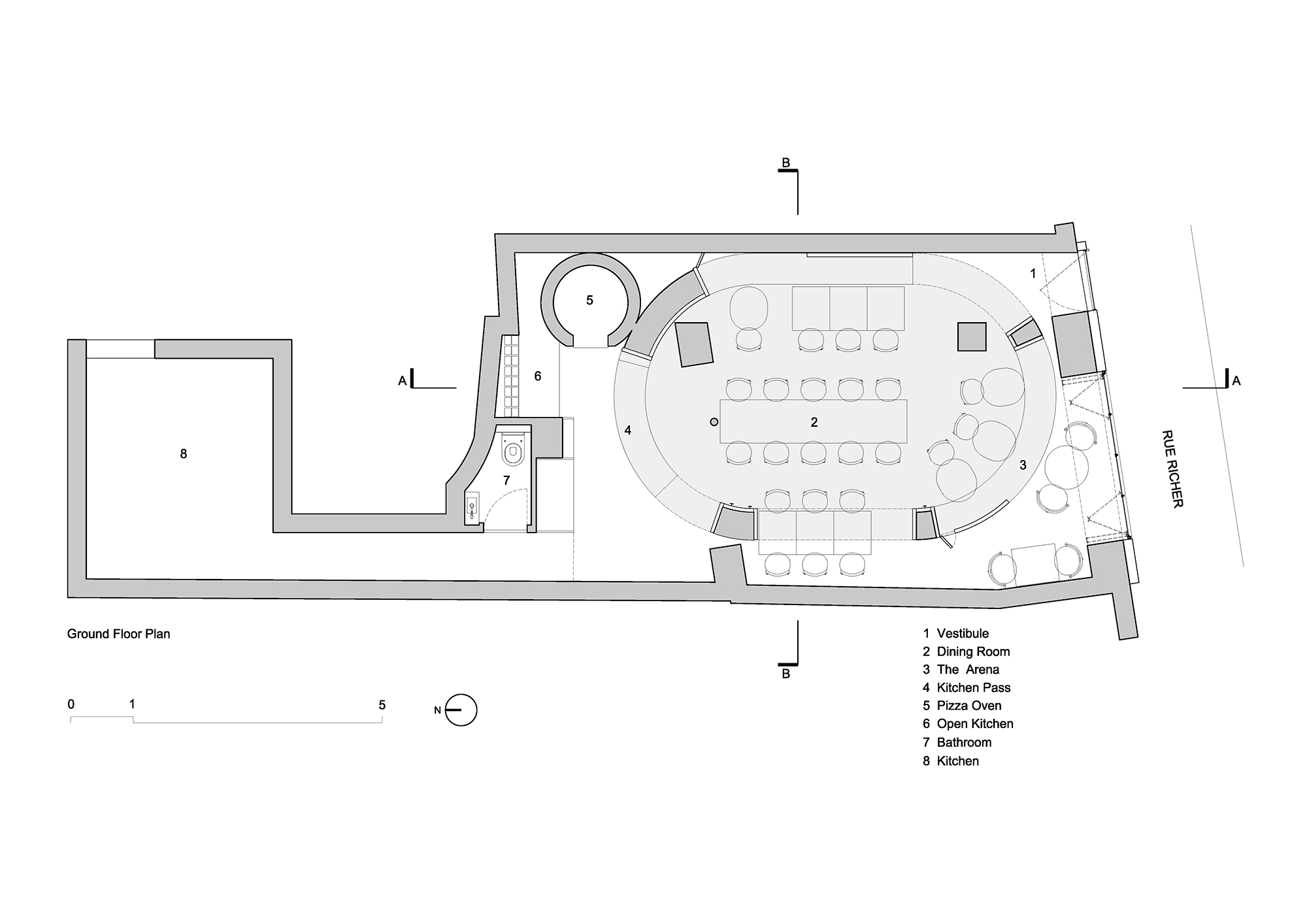
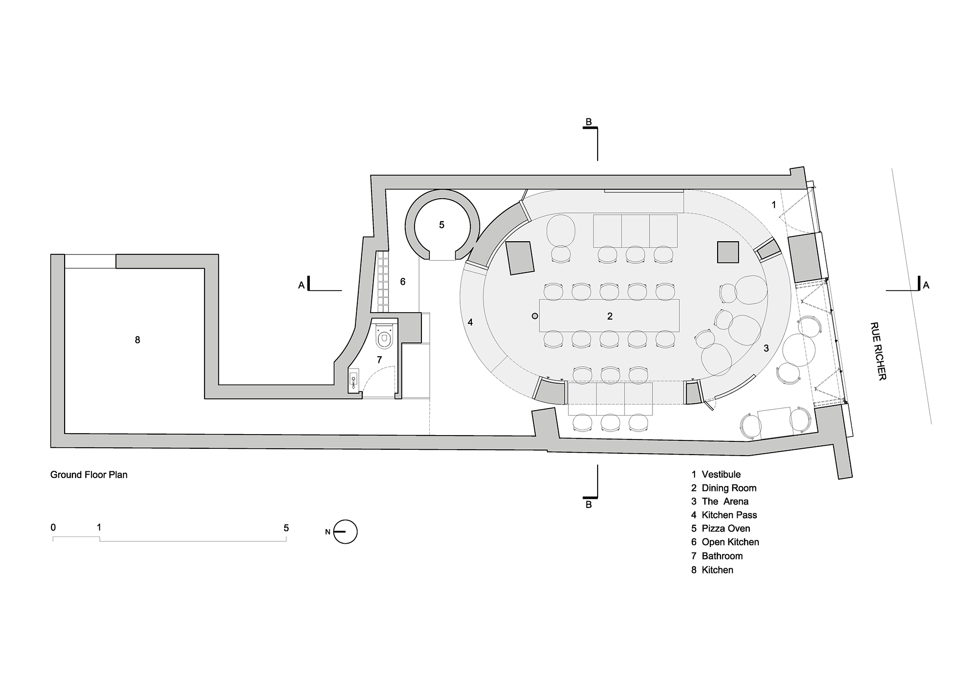
Das Restaurant Papi liegt im 9. Arrondissement von Paris, im Erdgeschoss eines typischen Haussmann-Gebäudes. Die Besonderheit des Projekts sind die vielen Schichten, die die Zeit in dem Bau aus dem späten 19. Jahrhundert hinterlassen hatte. Behutsam ließen die aus Shanghai stammenden Architekten sie abtragen und, wo möglich, sichtbar machen. So prägen nun Teile alter Kalkstein- und Ziegelmauern den Innenraum, außerdem sind eine Stahl- und eine Ziegelsäule in den Entwurf integriert. Ein genieteter Stahlsturz ziert die Fassade und ein Teil eines alten freigelegten Steinformteils markiert den Eingang. Jedes dieser Fragmente repräsentiert eine andere Periode in der Geschichte von Paris. Diesem historischen Hintergrund setzen Neri & Hu Holz, Glas und Keramik entgegen.
Trotz der geringen Nutzfläche von nur 52 m2 schaffen sie zwei Figuren im Raum: das längliche Volumen des Bestands, das alle funktionalen Anforderungen aufnimmt, wie Küche, Holzofen, Toiletten und Zubereitungstheke und ein ovaler Einbau, der in dieses Volumen gesetzt ist. In Sockel- und Deckenbereich ist er mit handgefertigten, konvex gekrümmten weißen Keramikfliesen verkleidet. Große Öffnungen, gerahmt mit dickem Birkensperrholz, werden zu Sitzbänken für die Gäste. Für die begrenzte Stellfläche haben Neri & Hu eigens gepolsterte Holzstühle entworfen, auf denen die Gäste nun die Speisen aus frischen, saisonalen und lokalen Zutaten genießen können. Es ist das zweite Restaurant des jungen aufstrebenden Gastronom Etienne Ryckeboer. Zusammen mit dem japanischen Koch Akira Sugiura kreiert er Gerichte, die beste Bewertungen erzielen.





















