Radikale Transformation
Fakultätsgebäude in Prag von Kuba & Pilař
© David Korsa
Lorem Ipsum: Zwischenüberschrift
Komplett umgekrempelt haben Kuba & Pilař eine Mensa der Karls-Universität Prag: Für die Nutzung als Fakultätsgebäude ersetzten sie den Gebäudekern durch ein geräumiges Atrium mit Licht von oben.


© David Korsa
Lorem Ipsum: Zwischenüberschrift
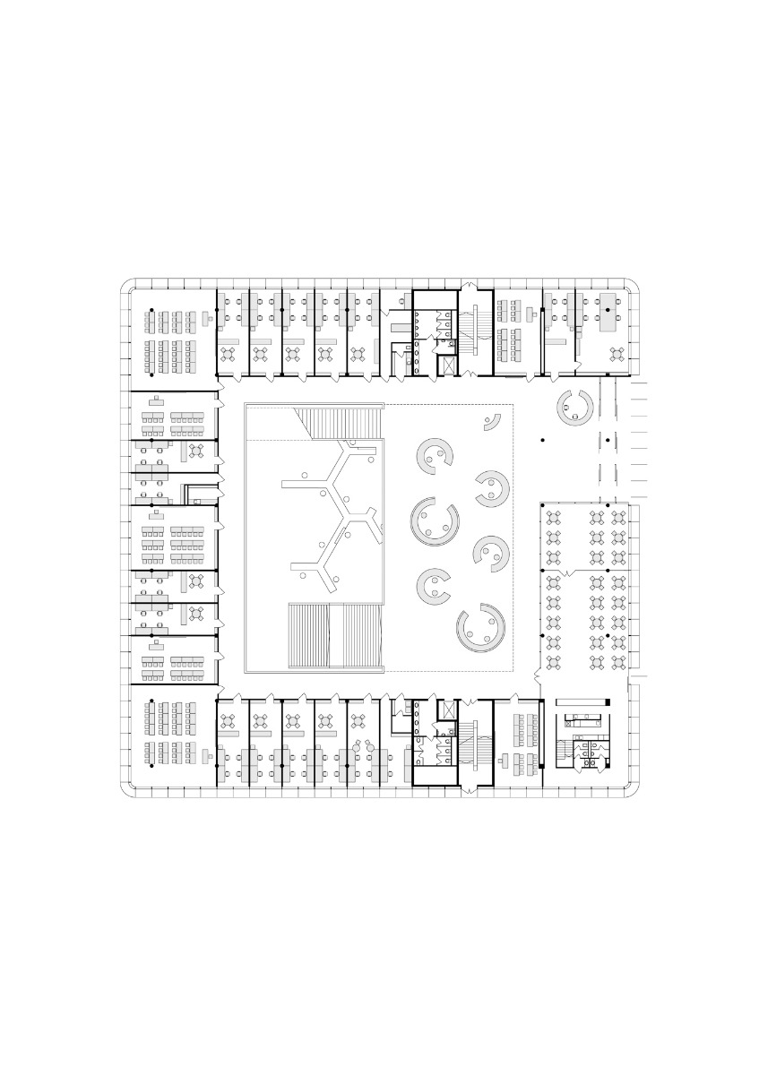
Der dreigeschossige Stahlbeton-Skelettbau am Nordufer der Moldau stammt aus den 80er-Jahren und war Teil eines nie vollendeten Teilcampus der Karls-Universität. Als Mensa geplant, wurde er dennoch nie vollständig als solche genutzt. Im Inneren des Quadratgrundrisses mit 55 m Kantenlänge umgaben offene Speisesäle einen geräumigen Gebäudekern mit Küchen, Sanitärräumen und Treppen.
Lorem Ipsum: Zwischenüberschrift
Bei ihrem Umbau behielten die Architekten das Tragskelett mit seinem 7,20-m-Raster zwar bei, kehrten die Anordnung offener und geschlossener Räume jedoch quasi um: Im Zentrum des Hauses verbindet nun ein dreigeschossiges, von oben belichtetes Atrium die drei Ebenen miteinander. Im mittleren Geschoss, das aufgrund der Lage des Gebäudes auf einer erhöhten Plattform zugleich die Eingangsebene ist, reihen sich ringsum Seminar- und Büroräume auf.


© David Korsa
Lorem Ipsum: Zwischenüberschrift
Ähnlich kleinteilig ist die Raumstruktur auf der obersten Ebene. Das unterhalb der Plattform gelegene Erdgeschoss beherbergt die größeren Raumvolumina wie Hörsäle, die Fakultätsbibliothek und das Dekanat.


© David Korsa


© David Korsa
Lorem Ipsum: Zwischenüberschrift
Im Atrium prägen vor allem viel Sichtbeton, ein Estrich mit dunkler PU-Beschichtung sowie Wand- und Deckenverkleidungen aus glasfaserverstärktem Beton und weißen HPL-Platten den reduzierten Raumeindruck.


© David Korsa
Lorem Ipsum: Zwischenüberschrift
Umso filigraner präsentiert sich der runderneuerte Bestandsbau dagegen von außen: Eine punktgehaltene Zweite-Haut-Fassade aus Glas soll hier den Lärm der nahe vorbeiführenden sechsspurigen Hauptverkehrsstraße abhalten, aber auch den dahinter liegenden Sonnenschutz vor Wind und Wetter schützen. Die gerundeten Gebäudeecken, ein Erkennungsmerkmal schon des Ursprungsbaus, griffen die Architekten bei der Sanierung in voll verglaster Form wieder auf.
Architektur: Kuba & Pilař architekti
Bauherr: Fakultät für Geisteswissenschaften, Univerzita Karlova
Standort: Pátkova 2137/5, 182 00 Praha (CZ)
Tragwerksplanung, TGA-Planung: AED Project




























