Fast wie im Museum: Flagshipstore von Landini Associates
Foto: Ross Honeysett
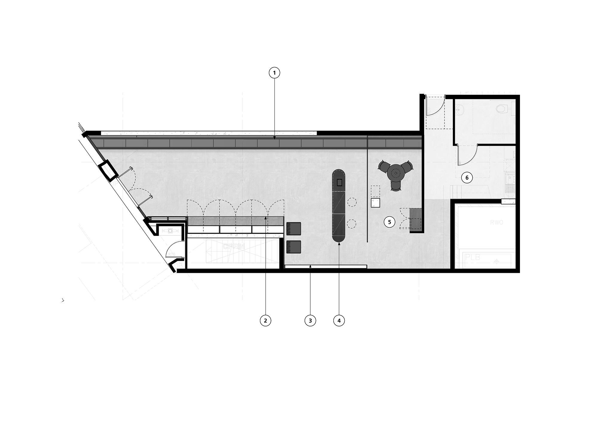
Die schlauchförmige Grundrissfläche von 80 m2 nutzen die Architekten optimal aus. Der Hauptraum mit Verkaufs- und Präsentationsflächen geht in einen privateren Bereich über. Eine Zwischenwand grenzt eine Sitzecke für individuelle Beratungsgespräche, sowie eine kleine Teeküche und das WC ab.
Den Kunden empfängt beim Betreten ein mystisches Ambiente. Minimalistisches Design und hochwertige Materialien bilden einen ruhigen Hintergrund für die Schmuckstücke. Mittels gezielter Beleuchtung werden die Exponate des Juweliergeschäfts museumsgleich inszeniert. Die Materialpalette reicht von schlicht-grauem Sichtbeton über dunklen Stahl und Milchglas bis hin zu warmen Holzoberflächen. Es entsteht eine spannungsvolle Kombination aus Leere und Geborgenheit.
Im Verkaufsbereich zieht sich linker Hand eine hüfthohe Konsole mit ausziehbaren Präsentationsflächen über die gesamte Raumtiefe. Darüber verläuft parallel ein Spiegelband. Die rechte Seite besteht aus einem Einbau mit schwarzen Milchglasfronten, der bis unter die dunkel gestaltete Decke reicht. Auf Augenhöhe werden in einer verglasten Vitrine die Produkte präsentiert. Vor der Rückwand, hinter der sich der abgetrennte Beratungsraum verbirgt, steht ein langer Verkaufstresen. Zu seiner Rechten schließt der geschützte Bereich des Flagshipstores an. Ihn prägt eine mächtige, raumhohe Holzverkleidung mit Schubladen im unteren Teil. Sitzgelegenheiten laden zum Entspannen ein und komplettieren den edlen Shop von Sarah & Sebastian in Mosman.










