Museum-like: Flagship store by Landini Associates
Foto: Ross Honeysett
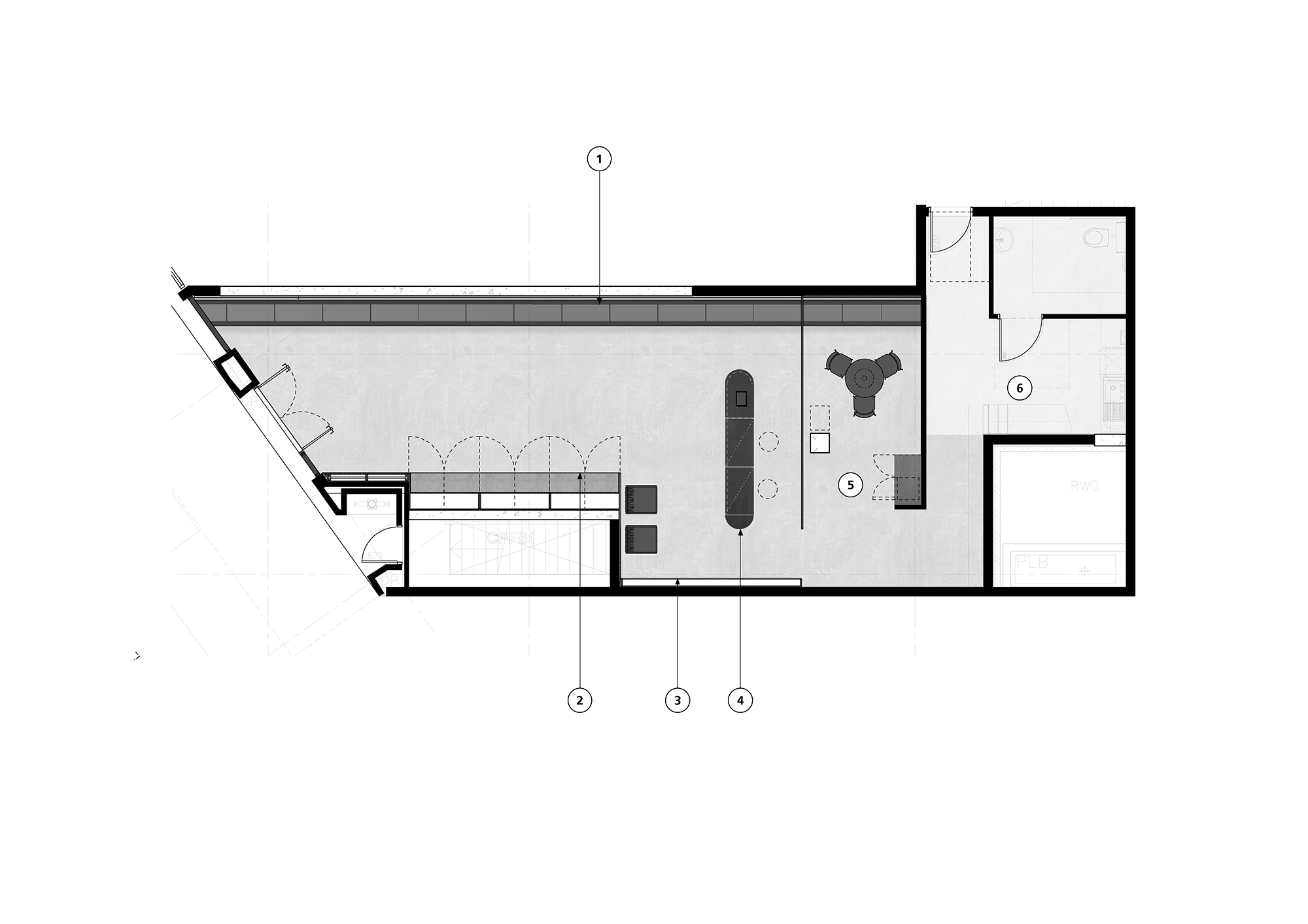
Landini Associates have made optimum use of the narrow, 80-square-metre floor area. The sales and display areas forming the main shop space end in a partition that divides them off from a more private area provided with seating for private consultation along with a small tea kitchen and the lavatory.
A mystic ambience awaits the customer entering the store, where a minimalist design and high-quality materials form an understated setting for the jewellery. Selective lighting accentuates the displays, as in a museum. The material palette includes plain grey concrete, dark steel and frosted glass as well as surfaces in the warm hues of wood for an intriguing combination of emptiness and intimacy.
On the left a hip-height console with pull-out display cases stretches the entire length of the sales area, and above it is accompanied by a parallel strip of mirroring. The right side of the main space is formed by a built-in unit with black frosted glass fronts reaching up to the dark-coloured ceiling. The products themselves can be seen at eye level in a linear glazed showcase. The partition concealing the separate consultation area is fronted by a long sales counter. This leads over at its right to the flagship store’s more private area, characterised by immense floor-to-ceiling wood panelling with drawers in the lower part. Seating encourages relaxation and rounds off Sarah & Sebastian’s upscale store in Mosman.










