Ferien im Garten: Einfamilienhaus in Genf
Foto: Comte/Meuwly
Wie sich die Zeiten ändern: 1910 wurde das vorgefertigte Holzhaus im Genfer Vorort Vernier als Wochenendresidenz außerhalb der Stadt errichtet. Die umliegende Wohnsiedlung hat zwar bis heute ihren suburbanen Charakter erhalten, das weitere Umfeld hat sich jedoch radikal gewandelt: Am rückwärtigen Ende des Gartens führt eine viergleisige Bahnlinie vorbei, hinter der eine große Shopping-Mall und ein riesiges Öltanklager beginnen. Die
nächste Autobahnausfahrt ist nur wenige Hundert Meter entfernt.
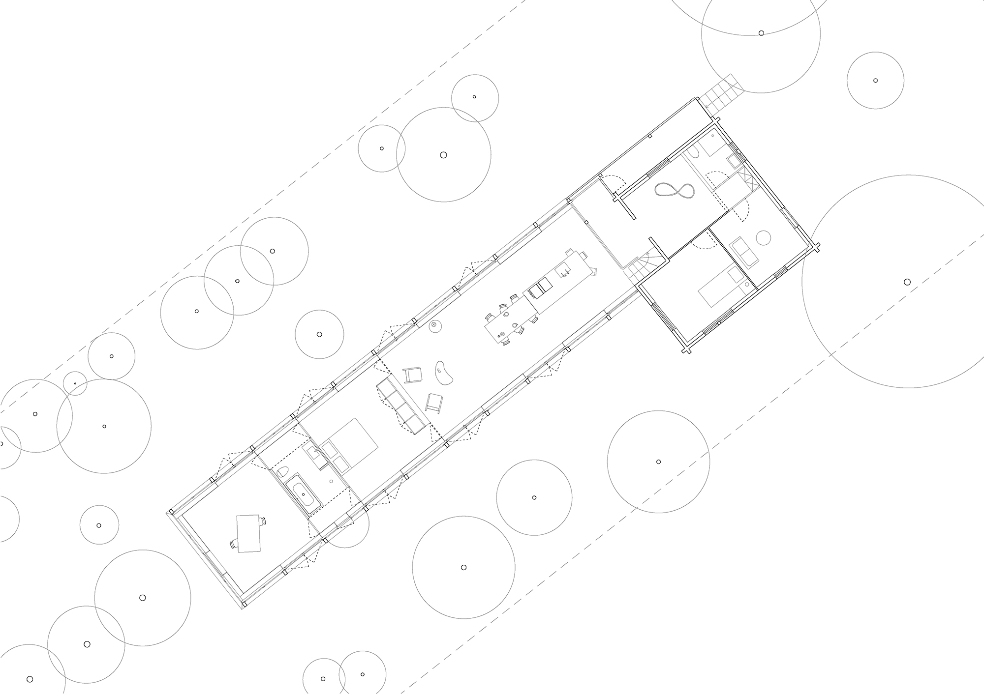
Seine Wochenenden will hier niemand mehr verbringen, doch als ständiger Wohnsitz war das Bestandsgebäude eindeutig zu klein. Comte/Meuwly verlängerten daher das bestehende Wohnzimmer um einen langgestreckten Anbau in den Garten hinaus. Darin sind Wohnraum, Schlafzimmer, Bad und Arbeitszimmer in Farnswort-Manier hintereinander gestaffelt. Äußerlich hat der Anbau hingegen dezidiert japanischen Einschlag: Ein außen liegendes, dunkel gestrichenes Holzskelett trägt das schlanke, weit auskragende Wellblechdach. Die dazwischen liegenden Wandflächen sind abwechselnd mit Glas und mit großformatigen Aluminium-Verbundblechen ausgefacht.















