Refugium für die Familie
Ferienhaus in der Normandie von Studio Guma
Das Bruchstein-Mauerwerk, das Fachwerk und die Fensterstürze aus Holz erzählen von der ruralen Vergangenheit des Gebäudes. © Maxime Delvaux
Ein schlichter Riegel
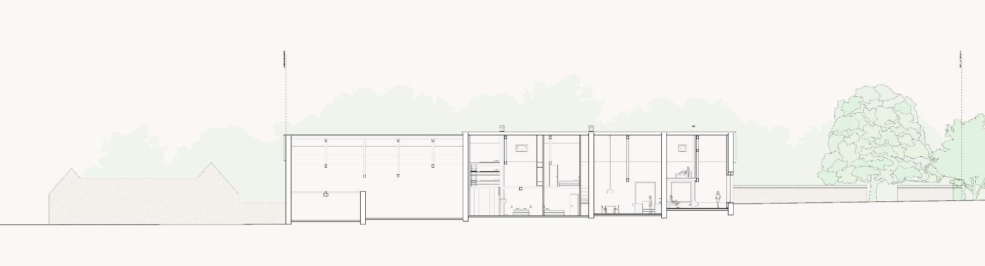
In der 300-Einwohner Gemeinde Hécourt im Eure-Tal, 80 km westlich von Paris, hat Studio Guma ein Bauernhaus und seine zwei Nebengebäude behutsam und mit minimalen Eingriffen zu einem Zweitwohnsitz umgebaut. Der Bestand besteht aus einem ehemaligen Bauernhaus, einer Remise und einem Stall, die sich unter einem durchlaufenden Satteldach aneinanderreihen. Von der Straße zurückversetzt liegt das Gebäude in einem langgestreckten Garten mit alten Buchen, Nuss- und Obstbäumen. Der schlichte Riegel mit einer Fassade aus Bruchstein folgt dem sanften Hang des Grundstücks, der vom Zugang nach hinten ansteigt. Die auftraggebende Familie wünschte sich einen Ort, an dem Verwandte und Freunde die Hektik der Stadt hinter sich lassen und sich mit der Natur verbinden können.


Aus dem ehemaligen Bauernhaus, einer Remise und einem Stall wurde ein Rückzugsort für Freunde und Familie. © Maxime Delvaux
Knotenpunkt ehemalige Remise
Im Erd- und Obergeschoss des ehemaligen Wohnhauses der Bauern befinden sich jeweils zwei Schlafräume und die dazugehörigen Bäder. Die Architekten haben die vorhandenen Balken, Schornsteine, Mauern und Fenster erhalten. An der Nordwestseite des privaten Bereichs gibt es keine Öffnungen, das Gebäude ist direkt an die Grundstücksgrenze zum Nachbarn gebaut. Alle Fenster orientieren sich zum Garten.
Im Norden schließen Küche und Esszimmer in der ehemaligen Remise an. Der helle und über die gesamte Gebäudehöhe offene Raum ist der Hauptaufenthaltsort der Familie. Hier kreuzen sich die Wege und Blickachsen zwischen Innen und Außen. Anstelle der alten Scheunentore öffnen sich zwei vollverglaste Schiebetüren nach Südosten auf die Terrasse. Ein großes Fenster auf der Nordwestseite gibt den Blick auf die gegenüberliegende Seite in den Garten frei.


Die offene Küche mit Essplatz ist der Hauptaufenthaltsraum. Hier kreuzen sich Wege und Blickachsen. © Maxime Delvaux
Stall wird zum Wohnzimmer
Über drei Stufen gelangen die Gäste vom Essbereich in das Wohnzimmer. Es ist im ehemaligen Stall untergebracht. Den Heuboden haben die Planenden zur Hälfte entfernt und den Rest als Galerie erhalten. Dieses Zwischengeschoss ist ein introvertierter Rückzugsort für ruhigere Aktivtäten wie etwa Lesen. Ohne direkte Öffnungen nach außen, wird es nur von oben beleuchtet. Im unteren Teil des Raumes bildet ein schwebender Kaminofen das Zentrum. Hier trifft sich die Familie und ihre Gäste zu Gesprächen und Diskussionen. Morgens und abends fangen zwei große Fenster – eines unter der Galerie und eines an der Giebelwand – das Licht der Dämmerung ein.


Im ehemaligen Stall liegt nun das Wohnzimmer. © Maxime Delvaux


Der ehemalige Heuboden im Wohnzimmer wurde halb entfernt, der Rest als Galerie erhalten. © Maxime Delvaux
Material-Kontrast und Farb-Harmonie
Architektur: Studio Guma
Bauherr: Maison Hécourt
Standort: Hécourt, Normandie (FR)




















