Arbeiten unter Sheddächern
Firmengebäude in Nordhorn von Westphal Architekten
Die gereihten Sheddächer verleihen dem Firmengebäude eine markante Silhouette. © Olaf Mahlstedt
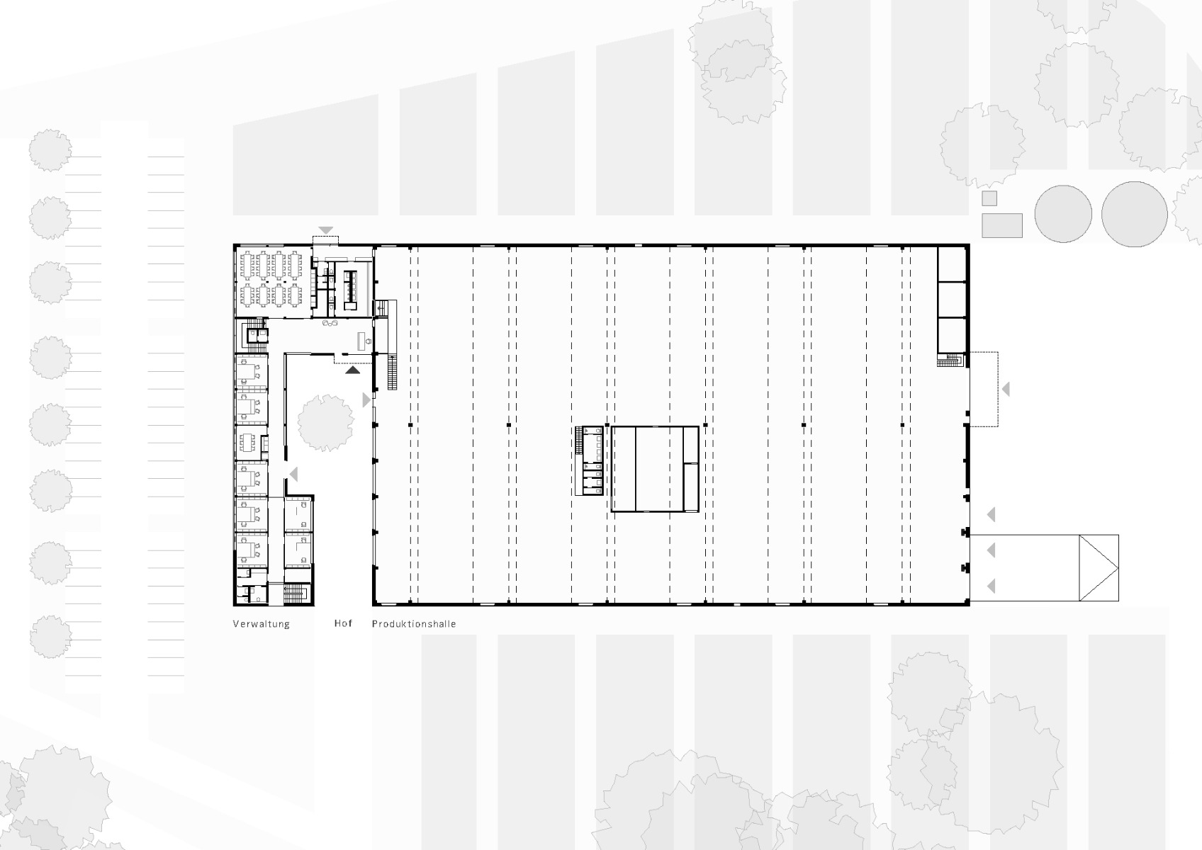
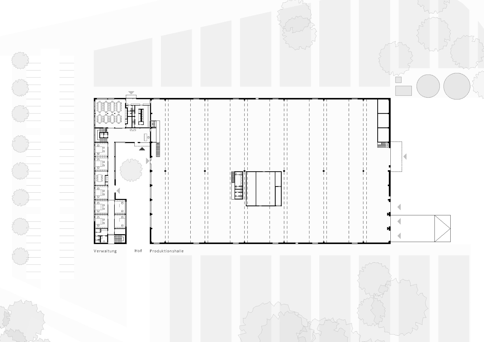
Für die Nordhorner Firma Rosink haben Westphal Architekten einen repräsentativen Unternehmenssitz entworfen. Die markanten Sheddächer der Produktionshalle verleihen dem Gebäude eine unverwechselbare Identität.


Der schmale Hof führt zum Eingang und trennt die beiden Bereiche Produktion und Verwaltung. © Olaf Mahlstedt
Unternehmen mit gestalterischem Anspruch
Die Firma Rosink Objekteinrichtungen liefert maßgefertigte Inneneinrichtungen für Büros, Geschäfte und Praxen und hat ihren Sitz in Nordhorn, das an der Grenze zu den Niederlanden liegt. Um ihrem Wachstum gerecht zu werden und die Produktion zu modernisieren, entschloss sich das Unternehmen, den alten Standort aufzugeben und ein neues Gebäude zu errichten, das die Firma angemessen repräsentiert. Dafür lud Rosink zehn Architekturbüros zu einem nichtoffenen Wettbewerb ein, aus dem Westphal Architekten als Sieger hervorgingen.
Klarheit in Form und Funktion
Der Entwurf des Bremer Architekturbüros besticht durch Klarheit in Form und Funktion. Produktionshalle und Verwaltungstrakt sind durch einen schmalen Innenhof getrennt. Zusammengehalten werden beide Funktionsbereiche durch eine einheitliche Fassadenverkleidung aus champagnerfarben eloxiertem Aluminium-Trapezblech, das dem Gebäude eine zurückhaltende Eleganz verleiht.


Das markante Gebäude liegt am Rand eines Gewerbegebiets. © Olaf Mahlstedt
Offen und transparent
Der Innenhof leitet die Mitarbeiter und Besucher zum Haupteingang in ein doppelgeschossiges Foyer, das als Scharnier zwischen Produktion und Verwaltung dient. Hier befinden sich auch zentrale Funktionen wie ein Besprechungsraum sowie ein großzügiger Aufenthalts- und Mehrzweckraum für die rund 65 Mitarbeiter. Im Bürotrakt sorgen Glaswände einerseits für viel Licht, aber andererseits auch für Offenheit und Transparenz.


Die Form des Sheddachs zeichnet sich in der Fassade ab. © Olaf Mahlstedt


Die zweigeschossige Eingangshalle bildet ein Scharnier zwischen Verwaltungstrakt und Produktionshalle. © Olaf Mahlstedt
Markante Sheddächer
Die Produktionshalle erhält ebenfalls viel Licht über die Sheddächer, aber auch über seitliche Fenster, die der Form der Sheds folgen. Die markante Silhouette ist von der angrenzenden Bundesstraße gut sichtbar. Der nicht verglaste, nach Süden ausgerichtete Teil der Sheddächer ist mit Photovoltaikelementen belegt. Das weitspannende Tragwerk mit nur sechs Stützen im Innenraum erlaubt eine langfristige Nutzungsflexibilität, sodass verschiedene Produktionsszenarien oder auch eine spätere Umnutzung möglich sind. Technisch ist das Gebäude auf dem neuesten Stand. Mit neuen Maschinen und einer vollständig digitalen Anlagensteuerung konnte das mittelständische Unternehmen seine Herstellungszeiten deutlich verkürzen. Die Beheizung des Gebäudes erfolgt ausschließlich durch die Verwertung der produktionseigenen Holzabfallstoffe.
Architektur: Westphal Architekten
Bauherr: Rosink Objekteinrichtungen
Standort: Nordhorn (DE)
Tragwerksplanung, TGA-Planung: Lindschulte Ingenieurgesellschaft
Freiraumplanung: Anke Deeken, Büro für Architektur Stadt- und Freiraumplanung Lichtplanung
Brandschutzplanung: Böcker Ingenieure
Schallschutzplanung: Zech Ingenieurgesellschaft












