Working under shed roofs
Company Building in Nordhorn by Westphal Architekten
The rows of shed roofs give the building a striking silhouette. © Olaf Mahlstedt
Westphal Architekten have designed a prestigious headquarters for the Nordhorn-based company Rosink. The striking shed roofs of the production hall give the building an unmistakable identity.


The narrow courtyard leads to the entrance and separates the two areas of production and administration. © Olaf Mahlstedt
A company with creative ambitions
Rosink Objekteinrichtungen, based in Nordhorn, on the border with the Netherlands, supplies customised interior furnishings for offices, shops and medical practices. In order to accommodate its growth and modernise its production, the company decided to leave its old location and build a new building that would adequately represent the company. To this end, Rosink invited ten architectural firms to participate in a restricted competition, which was won by Westphal Architekten.
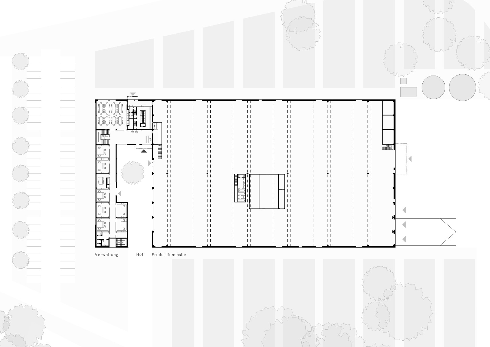
Clarity of form and function
The Bremen-based firm's design is characterised by clarity of form and function. The production hall and the administration wing are separated by a narrow inner courtyard. The two functional areas are held together by a uniform facade cladding of champagne anodised aluminium trapezoidal sheeting, which lends the building an understated elegance.


The striking building is located on the edge of an industrial estate. © Olaf Mahlstedt
Open and transparent
The courtyard leads employees and visitors to the main entrance in a two-storey foyer that acts as a hinge between production and administration. Central functions such as a meeting room and a spacious lounge and multi-purpose room for around 65 employees are also located here. In the office wing, glass walls provide plenty of light but also openness and transparency.


The form of the shed roof is reflected in the facade. © Olaf Mahlstedt


The two-storey entrance hall forms a hinge between the administrative wing and the production hall. © Olaf Mahlstedt
Striking shed roofs
The production hall is also flooded with light through the shed roofs and side windows that follow the shape of the sheds. The striking silhouette is clearly visible from the adjacent main road. The non-glazed, south-facing part of the shed roofs is covered with photovoltaic elements. The wide-span support structure, with only six internal columns, allows for long-term flexibility of use, allowing for different production scenarios or future conversions. Technically, the building is state of the art. With new machinery and a fully digitalised control system, the medium-sized company has been able to significantly reduce its production times. The building is heated exclusively with the company's own wood waste.
Architecture: Westphal Architekten
Client: Rosink Objekteinrichtungen
Location: Nordhorn (DE)
Structural engineering, building services engineering: Lindschulte Ingenieurgesellschaft
Open space planning: Anke Deeken, Büro für Architektur Stadt- und Freiraumplanung Lichtplanung
Fire prevention planning: Böcker Ingenieure
Sound insulation planning: Zech Ingenieurgesellschaft












