Flexibel und maßgeschneidert: Renovierung eines Apartments in Madrid
Foto: José Hevía
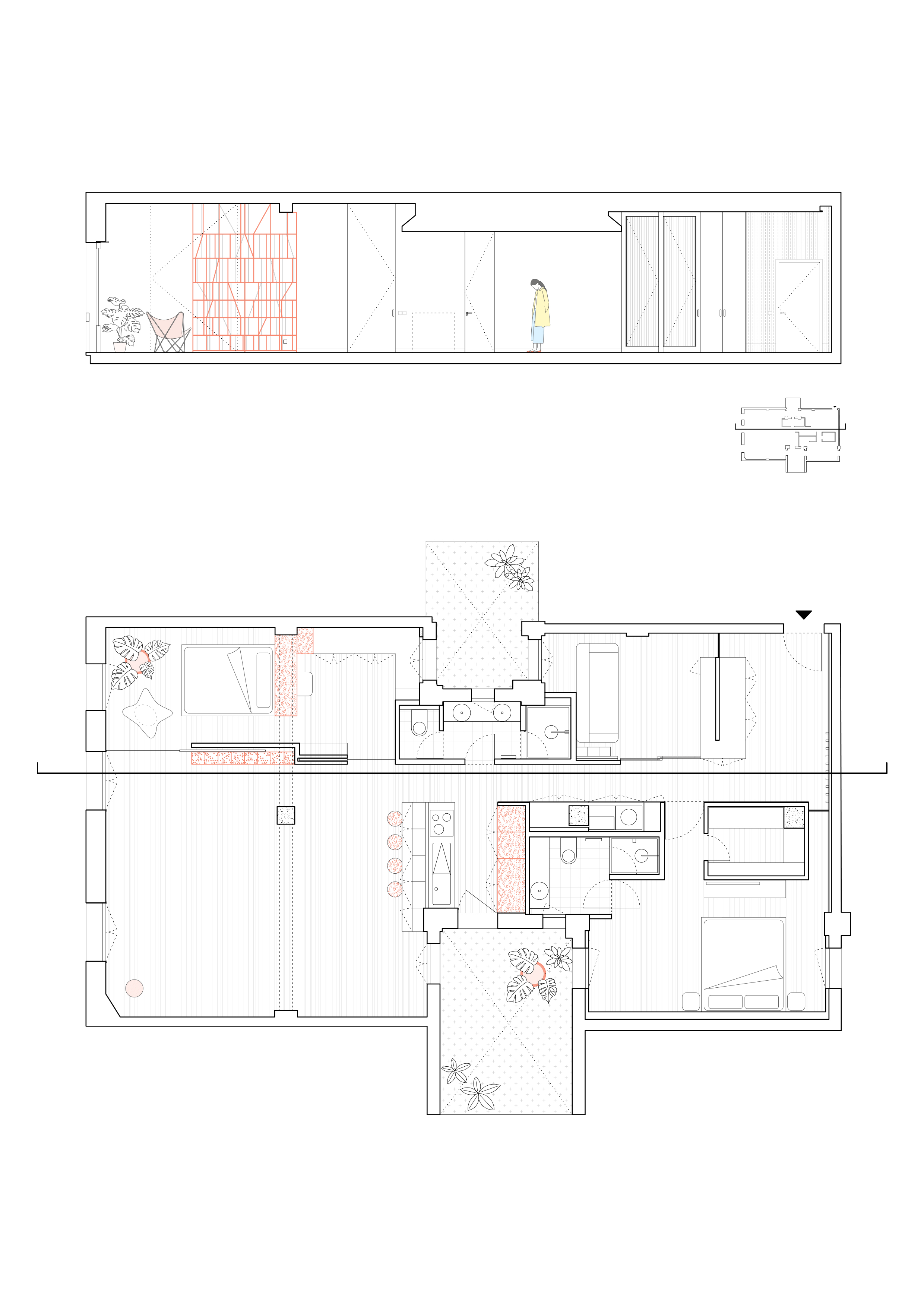
Beim Betreten des 140 m2 Apartments im Zentrum Madrids gelangt man in einen Vorraum, der in den zentralen Korridor übergeht und von einem runden Oberlicht erhellt wird. Linker Hand schließt ein Bereich mit Schlafzimmer, Bad und Ankleide an. Zur Rechten befinden sich ein weiteres Zimmer und eine Nasszelle, bevor sich der Flur zum Herzstück der Casa P82 hin öffnet: dem multifunktionalen Hauptraum. Dieser ist nach Norden hin orientiert. Es kann gekocht, gegessen, gelebt, geschlafen und gearbeitet werden. Den großen Raum strukturieren Lucas y Hernández-Gil lediglich durch ein leichtes Wandmodul und ein farbiges Regal in der Mitte des Zimmers. Schiebetüren trennen den Schlaf-, Arbeitsbereich bei Bedarf ab.
Die Materialpalette der Casa P82 beruht auf natürlichen, hochwertigen Materialien. Helle Eiche kleidet Boden- und Wandflächen und findet sich auch in den maßgefertigten Einbauten wieder. Die Bäder sind in Marmor ausgeführt. Vereinzelte rohe Sichtbetonelemente schaffen einen Kontrast zu den weißen Trennwänden und transluzenten Polycarbonatplatten.
»Genuine«, der Farbtupfer in der Casa P82, ist das Werk von Kresta Design, der hauseigenen Designlinie von Lucas y Hernández-Gil. Das Regal setzt sich aus feinen Blechen und Rohren zusammen, die in korallenfarbigem Lack emailliert sind. Inspiriert von Werken von Paul Klee, verleiht es dem sonst schlichten Apartment eine expressive, individuelle Note.


















